Eger, Belváros
-
Kínálati ár: 49 900 000 Ft
Kalkulált ár: 137 466 Є -
80 m2
Alapterület
-
2
Szobaszám
- Alapterület 80 m2
- Telekterület -
- Szobaszám 2
- Web www.ingatlantajolo.hu/9273950
- Négyzetméter ár 623 750 Ft/m2
- Értékesítés típusa Eladó / Kínál
- Kategória Lakás
- Típus Téglalakás
- Emelet 1.
- Állapot Átlagos
- Fűtés Gáz (konvektor)
- CSOK igénybe vehető nincs megadva
- Kilátás nincs megadva
- Tájolás nincs megadva
- Ingatlan komfort nincs megadva
- Parkolási lehetőség nincs megadva
- Építőanyag nincs megadva
- Bútorozott nincs megadva
- Akadálymentesített nincs megadva
- Erkély, terasz nincs megadva
- Kert kapcsolat nincs megadva
- Klíma nincs megadva
- Szigetelt nincs megadva
- Havi rezsiköltség nincs megadva
- Lakásbiztosítás nincs megadva
- Kábelszolgáltató nincs megadva
- Elektromos autó töltés nincs megadva
Energetikai besorolás:
Ez a hirdetés megfelelhet a FIX 3%-os programnak. Tudj meg többet a részletekről itt.
Az ingatlan leírása
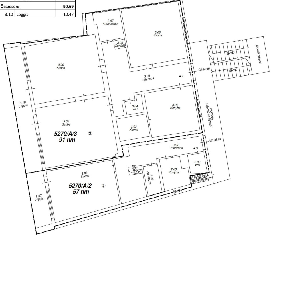
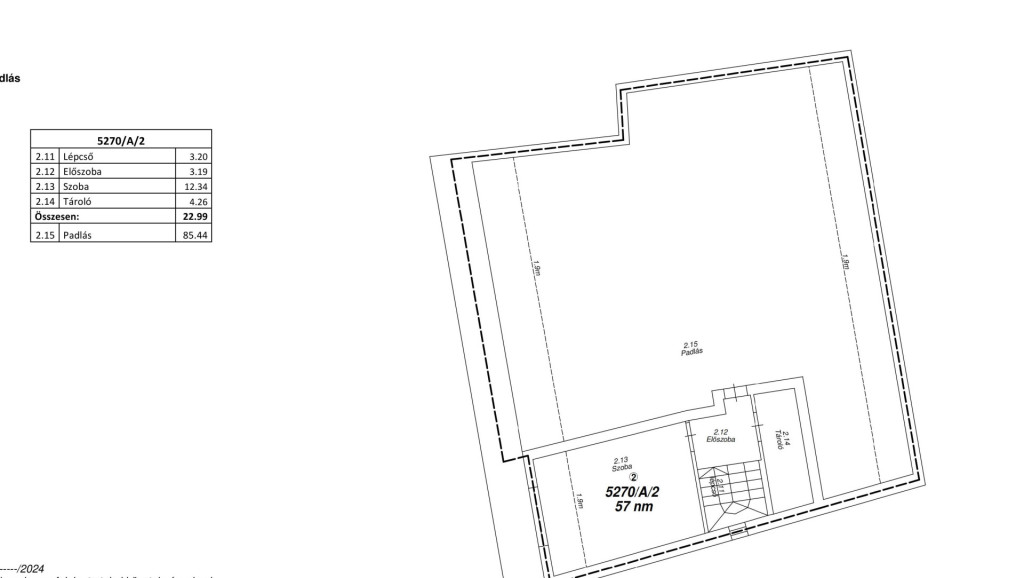
Egerben a Servita úton 3 szobás, jó állapotú első emeleti belső kétszintes lakás + 85nm beépíthető padlás garázzsal együtt eladó!- 3 lakásos ház első emeleti lakása
- helyiségei: 3 szoba, konyha, kamra, előtér, fürdőszoba, WC. A tető beépíthető, ahol még 3 szobás lakást lehet kialakítani. Csak ehhez a lakáshoz tartozik.
- a szobák parkettásak, a többi járólapos
- fűtése konvektor
- a lakáshoz tartozik egy 20nm-es garázs, a vételárban benne van
- a történelmi belvárosban található,
- kiváló befektetés apartnamozásra, de lakhatás céljára is
- hirdetésem felkeltette érdeklődését hívjon a számon!