Debrecen
-
Kínálati ár: 62 300 000 Ft
Kalkulált ár: 174 510 Є -
40 m2
Alapterület
-
1
Szobaszám
- Alapterület 40 m2
- Telekterület -
- Szobaszám 1
- Web www.ingatlantajolo.hu/9284462
- Négyzetméter ár 1 557 500 Ft/m2
- Értékesítés típusa Eladó / Kínál
- Kategória Lakás
- Típus Téglalakás
- Állapot Új építésű
- Fűtés Egyéb fűtés
- Szintek száma 4
- Építés éve 2026
- CSOK igénybe vehető nem
- Kilátás nincs megadva
- Tájolás Délnyugat
- Ingatlan komfort Összkomfortos
- Parkolási lehetőség Terem garázs
- Építőanyag Tégla
- Bútorozott nincs megadva
- Akadálymentesített nincs megadva
- Erkély, terasz nincs megadva
- Kert kapcsolat nincs megadva
- Klíma igen
- Szigetelt nem
- Havi rezsiköltség nincs megadva
- Lakásbiztosítás nincs megadva
- Kábelszolgáltató nincs megadva
- Elektromos autó töltés nincs megadva
Energetikai besorolás:
Az ingatlan leírása
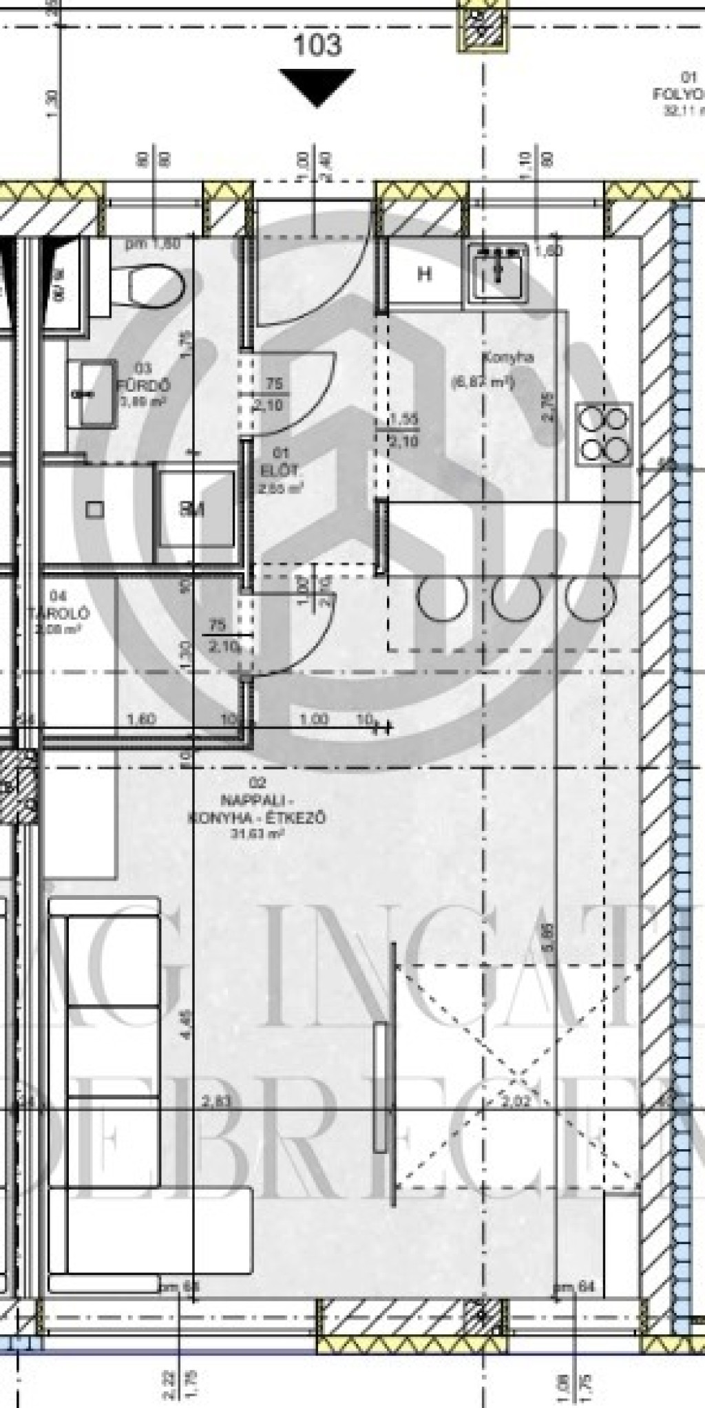
Eladó új építésű, garzon lakás Debrecen, Belvárosban Kölcsey központhoz közelében, magas műszaki tartalommal.Eladó 1. emeleti lakás 40,25 nm-es, nappali-étkező- amerikai konyhás.
Magas műszaki tartalom:
* Porotherm tégla falazat 15 cm szigeteléssel.
* 3 rétegű üvegezésű nyílászárók, rejtett redőnytokos redőnyök.
* Hőszivattyús fűtés, minden helyiségben padlófűtés.
* Hütő-fűtő klíma: hőszivattyús rendszerű magasfali fan coil.
* Beltéri ajtók kiválasztása igény szerint.
* Burkolatok kialakítását a vevő választása alapján végzi a kivitelező.
* Pinceszinten kialakított, korszerű mélygarázs.
* Saját teremgarázs parkolóhely igény szerint vásárolható: 10 M ft Ft.
További lakások elérhetőek:
* Garzon, nappali + 1 és nappali + 2 szobás lakások.
* Loggiás kialakítás.
* Lakásméretek: 40–66 m²
Ajánlataimért kérem keressen elérhetőségeimen.
Az ingatlan pár perc sétára található a Nagytemplomtól és az 1-es és 2-es villamos megállóitól
A+ energetikai besorolással épül.
Vételár: 62,3 M Ft
Érdeklődés, megtekintés egyeztetés alapján:
További információk: