Debrecen, Belváros, Belváros
-
Kínálati ár: 225 000 000 Ft
Kalkulált ár: 626 741 Є -
97 m2
Alapterület
-
4
Szobaszám
- Alapterület 97 m2
- Telekterület -
- Szobaszám 4
- Web www.ingatlantajolo.hu/9264463
- Négyzetméter ár 2 319 588 Ft/m2
- Értékesítés típusa Eladó / Kínál
- Kategória Lakás
- Típus Téglalakás
- Emelet földszint
- Állapot Felújított
- Fűtés Gáz (cirkó)
- Építés éve 1920
- CSOK igénybe vehető nem
- Kilátás nincs megadva
- Tájolás nincs megadva
- Ingatlan komfort nincs megadva
- Parkolási lehetőség nincs megadva
- Építőanyag nincs megadva
- Bútorozott nincs megadva
- Akadálymentesített nincs megadva
- Erkély, terasz nincs megadva
- Kert kapcsolat nincs megadva
- Klíma nem
- Szigetelt nem
- Havi rezsiköltség nincs megadva
- Lakásbiztosítás nincs megadva
- Kábelszolgáltató nincs megadva
- Elektromos autó töltés nincs megadva
Energetikai besorolás:
Az ingatlan leírása
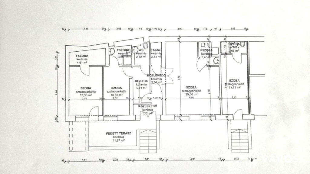
Kedves Befektető!Jelenleg 4 apartman (10-25 m2) üzemel az ingatlanban, de a folytatás már a Te fantáziádra van bízva: a kialakítás és a lokáció miatt többféle hasznosítási irány is reális (további kiadás, átalakítás 1 nagy lakássá vagy akár 2 lakássá, lakás + vállalkozás kombináció stb.).
Ami adott: 1920-as években épült tégla falazatú, masszív épületben:
-Földszint: 97 m² lakótér
-gázcirkó fűtés,
-klímák,
-11 m2 terasz,
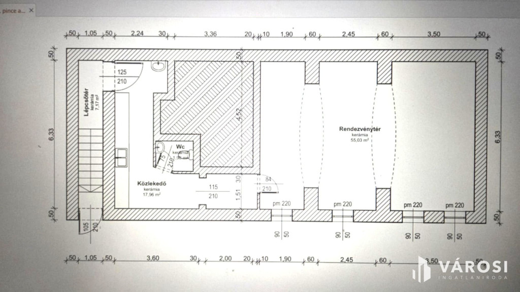
-Pince: 84 m² , eredetileg rendezvénytérnek tervezett helyiség (jelenleg más funkcióval használva)
Udvarban:
-3 garázs
- fedett tároló
-Kocsibeállók (több autó számára)
-Belvárosi ritkaság: parkolás + tárolási/üzemeltetési lehetőségek egy helyen
-Lokáció: valóban kiemelkedő – Debrecen belvárosában, a pláza szomszédságában, minden szolgáltatás pár percre, kiváló közlekedéssel. További információk, vagy megtekintés: Kresznóczki Ágnes Városi Ingatlaniroda Kattintson ide a hirdető iroda weboldalának megtekintéséhez!