Debrecen, Belváros, Belváros
-
Kínálati ár: 81 033 000 Ft
Kalkulált ár: 206 191 Є -
50 m2
Alapterület
-
2
Szobaszám
- Alapterület 50 m2
- Telekterület -
- Szobaszám 2
- Web www.ingatlantajolo.hu/9101379
- Négyzetméter ár 1 620 660 Ft/m2
- Értékesítés típusa Eladó / Kínál
- Kategória Lakás
- Típus Téglalakás
- Emelet 1.
- Építés éve 2025
- CSOK igénybe vehető nem
- Kilátás nincs megadva
- Tájolás nincs megadva
- Ingatlan komfort nincs megadva
- Parkolási lehetőség nincs megadva
- Építőanyag nincs megadva
- Bútorozott nincs megadva
- Akadálymentesített nincs megadva
- Erkély, terasz nincs megadva
- Kert kapcsolat nincs megadva
- Klíma nem
- Szigetelt nem
- Havi rezsiköltség nincs megadva
- Lakásbiztosítás nincs megadva
- Kábelszolgáltató nincs megadva
- Elektromos autó töltés nincs megadva
Energetikai besorolás:
Az ingatlan leírása
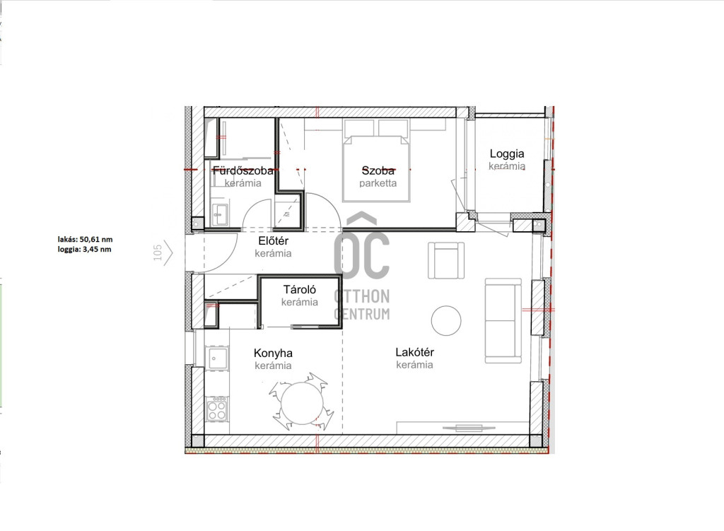
Debrecen abszolút Belvárosában, a Nagytemplomhoz közeli részén kerül kivitelezésre ez az egyedi tervezésű, 17 lakásos, liftes társasház.Válasszon a piacon legkeresettebb méretű,még elérhető 35-51 nm-es, loggiás, nappali +1 vagy 2 szobás lakáskínálatból!
A 4 emeletes társasház két utcáról is megközelíthető, a lakások kiváló elrendezésűek.
Gépkocsi beállók ( 10 Mft/db) a földszinten és a -1 szinten találhatók.
Ez az 1. emeleti lakás 50,74 nm-es, nappali-étkező-konyha +1 szobás, 3,68 nm-es loggiával. Nappali+ 2 szobássá alakítható.
Műszaki adatok:
- teherhordó falak Porotherm 30 N+F
- belső térelválasztó falak gipszkartonból
- hőszigetelése 15 cm THERMODAM rendszer, 1,5 cm nemes vakolattal
- házközponti hőszivattyús fűtés, minden helyiségben padlófűtés
- lakásonként egyedi hőmennyiség mérő
- hűtés: hőszivattyús rendszerrel, vagy AUX hőszivattyús 2,7 kw-os klímával
- műanyag nyílászárók 3 rétegű hőszigetelt üvegezéssel
- beépített elektromos, távirányítós redőnyök
- 90X200-as üvegfalú zuhanyózó
A belvárosban található ingatlan pár perc sétára van a Nagytemplomtól, a Piactól és a Bevásárló központoktól.
Projekt bemutatása
--