Budapest XIV. kerület, Alsórákos, Alsórákos
-
Kínálati ár: 129 000 000 Ft
Kalkulált ár: 354 396 Є -
83 m2
Alapterület
-
3
Szobaszám
- Alapterület 83 m2
- Telekterület -
- Szobaszám 3
- Web www.ingatlantajolo.hu/9285461
- Négyzetméter ár 1 554 217 Ft/m2
- Értékesítés típusa Eladó / Kínál
- Kategória Lakás
- Típus Téglalakás
- Állapot Új építésű
- CSOK igénybe vehető nem
- Kilátás nincs megadva
- Tájolás nincs megadva
- Ingatlan komfort nincs megadva
- Parkolási lehetőség nincs megadva
- Építőanyag nincs megadva
- Bútorozott nincs megadva
- Akadálymentesített nincs megadva
- Erkély, terasz nincs megadva
- Kert kapcsolat nincs megadva
- Klíma nem
- Szigetelt nem
- Havi rezsiköltség nincs megadva
- Lakásbiztosítás nincs megadva
- Kábelszolgáltató nincs megadva
- Elektromos autó töltés nincs megadva
Energetikai besorolás:
Az ingatlan leírása
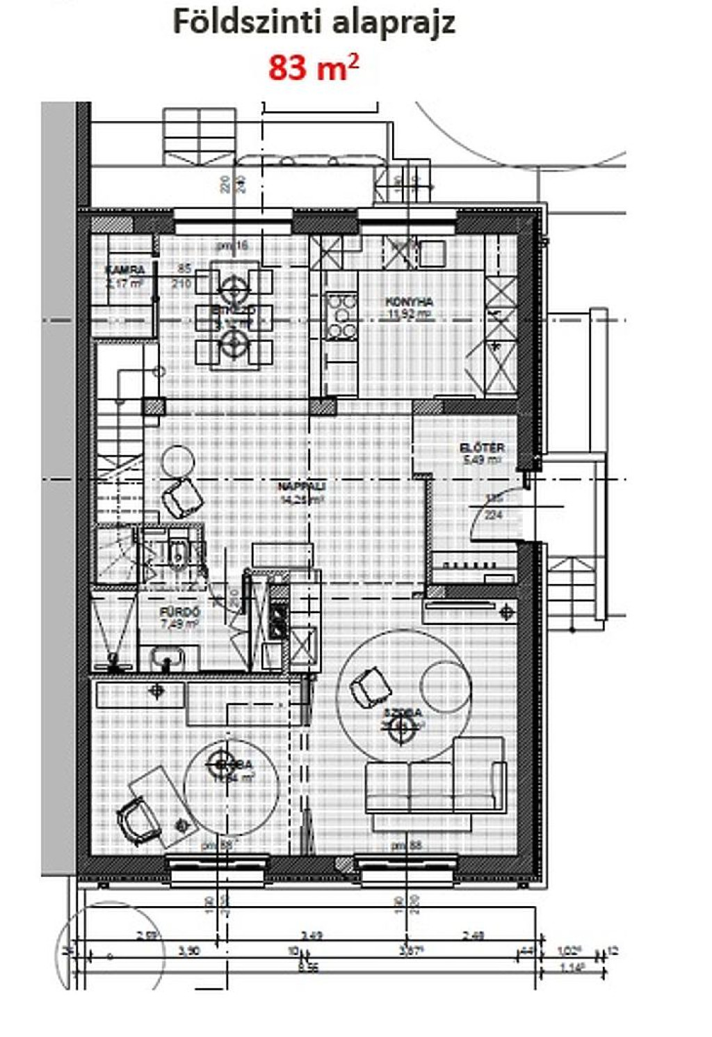
ÚJ ÉPÍTÉSŰ KERTKAPCSOLATOS OTTHON – HŐSZIVATTYÚ – ZUGLÓ CSENDES RÉSZÉNZugló egyik legkedveltebb, családi házas részén kínálunk megvételre egy 83 nm-es, új építésű, földszinti lakást, amelyhez egy 30 nm-es, 2,4 m belmagasságú szuterén helyiség is tartozik.
A lakás külön, kívülről megközelíthető, kétlakásos, modern épületben valósul meg, hőszivattyús fűtéssel, korszerű műszaki tartalommal.
Letisztult, időtálló megjelenés, minőségi kivitelezés, alacsony fenntartási költségek.
Átadás: 6 hónapon belül.
Az ingatlan aktuális állapotától függően, a vevőnek van lehetősége a belső terek elrendezésén és a burkolatokon változtatni.
A képek illusztrációk.
Alaprajz tájékoztató jellegű.