Budapest XIII. kerület, Újlipótváros, Újlipótváros
-
Kínálati ár: 99 900 000 Ft
Kalkulált ár: 254 198 Є -
70 m2
Alapterület
-
2 + 1 fél
Szobaszám
- Alapterület 70 m2
- Telekterület -
- Szobaszám 2 + 1 fél
- Web www.ingatlantajolo.hu/9285727
- Négyzetméter ár 1 427 143 Ft/m2
- Értékesítés típusa Eladó / Kínál
- Kategória Lakás
- Típus Téglalakás
- Emelet 3.
- Állapot Felújítandó
- Fűtés Gáz (konvektor)
- Szintek száma 5
- Építés éve 1930
- CSOK igénybe vehető nincs megadva
- Kilátás nincs megadva
- Tájolás nincs megadva
- Ingatlan komfort nincs megadva
- Parkolási lehetőség nincs megadva
- Építőanyag nincs megadva
- Bútorozott nincs megadva
- Akadálymentesített nincs megadva
- Erkély, terasz nincs megadva
- Kert kapcsolat nincs megadva
- Klíma nincs megadva
- Szigetelt nincs megadva
- Havi rezsiköltség nincs megadva
- Lakásbiztosítás nincs megadva
- Kábelszolgáltató nincs megadva
- Elektromos autó töltés nincs megadva
Energetikai besorolás:
Ez a hirdetés megfelelhet a FIX 3%-os programnak. Tudj meg többet a részletekről itt.
Az ingatlan leírása
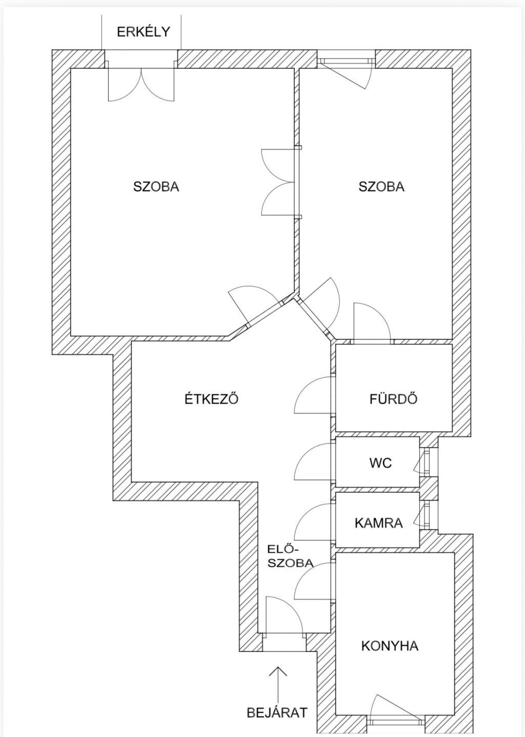
Eladásra kínálunk a város szívében, a XIII. kerület Balzac utcában egy 70 m2-es NAGYPOLGÁRI lakást.Jellemzői:
- tágas, világos
- felújítandó
- utcára és belső zöld kertre is néző
- konvektoros fűtésű
- 2 szoba és hallos
- külön wc és külön fürdőszoba
- kiválóan alakítható belső terek
- 3.emeleti
- erkélyes (3 nm)
A házról:
- folyamatosan karbantartott
- rendezett
- jó állapotú
- LIFTES
Az ingatlan a Budapest egyik legkedveltebb városrészében található.
Közlekedése is kiváló: M3-as metró, trolik, 4-6 os villamos pár percre.
Iskolák és óvodák és kis kézműves üzletek mind a közelben találhatóak .
Néhány perc séta a Szent István Park, a LEHEL piac és a WESTEND bevásárló központ is.
Szívből ajánlom mindenkinek, aki egy különösen SZÍNVONALAS környéken egy igazán jó lakást szeretne magának, és nem ijed meg a felújítástól.
Ezernyi lehetőséget rejt magában az ingatlan!
Remélem felkeltettem az érdeklődését, keressen bizalommal !
Hétvégén is meg lehet tekinteni az ingatlant!
Ne hagyja ki ezt a remek alkalmat, hogy saját elképzelései szerint formálja meg új otthonát!