Debrecen, Libakert, Libakert
-
Kínálati ár: 58 900 000 Ft
Kalkulált ár: 162 707 Є -
55 m2
Alapterület
-
2
Szobaszám
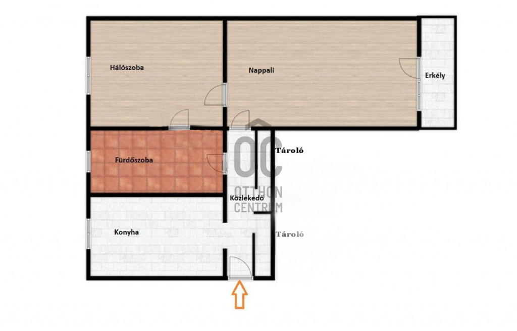
- Alapterület 55 m2
- Telekterület -
- Szobaszám 2
- Web www.ingatlantajolo.hu/9321766
- Négyzetméter ár 1 070 909 Ft/m2
- Értékesítés típusa Eladó / Kínál
- Kategória Lakás
- Típus Társasházi lakás
- Fűtés Gáz (konvektor)
- Építés éve 1980
- CSOK igénybe vehető nem
- Kilátás nincs megadva
- Tájolás nincs megadva
- Ingatlan komfort nincs megadva
- Parkolási lehetőség nincs megadva
- Építőanyag nincs megadva
- Bútorozott nincs megadva
- Akadálymentesített nincs megadva
- Erkély, terasz nincs megadva
- Kert kapcsolat nincs megadva
- Klíma nem
- Szigetelt nem
- Havi rezsiköltség nincs megadva
- Lakásbiztosítás nincs megadva
- Kábelszolgáltató nincs megadva
- Elektromos autó töltés nincs megadva
Energetikai besorolás:
Ez a hirdetés megfelelhet a FIX 3%-os programnak. Tudj meg többet a részletekről itt.
Az ingatlan leírása
Debrecen kedvelt, csendes városrészén, a Viola utcában eladó egy jó állapotú, csúsztatott zsalus technológiával épült, 55 m²-es társasházi lakásAz ingatlan két tágas, jól bútorozható szobával rendelkezik, így praktikus és élhető elrendezést kínál.
Főbb jellemzők:
✨ 55 m² alapterület
Két nagy méretű, világos szoba
Jó állapotú konyha
Fürdőszoba
Praktikus elosztás, jól kihasználható terek
Önállóan használt tároló tartozik a lakáshoz
Csendes, rendezett környezet
Kiváló tömegközlekedés és infrastruktúra (üzletek, egyetemek, szolgáltatások a közelben)
A közös költség tartalmaz társasházi felújítási alapot
Elhelyezkedése és adottságai miatt befektetési célra is kiváló választás, a környéken erős bérleti kereslet jellemző.
További információért vagy megtekintésért kérem, vegye fel velem a kapcsolatot!