Miskolc
-
Kínálati ár: 35 000 000 Ft
Kalkulált ár: 89 059 Є -
54 m2
Alapterület
-
1 + 2 fél
Szobaszám
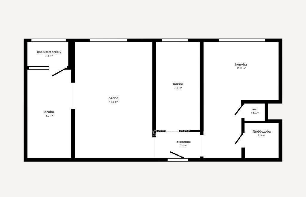
- Alapterület 54 m2
- Telekterület -
- Szobaszám 1 + 2 fél
- Web www.ingatlantajolo.hu/9304971
- Négyzetméter ár 648 148 Ft/m2
- Értékesítés típusa Eladó / Kínál
- Kategória Lakás
- Típus Panellakás
- Emelet 1.
- Állapot Átlagos
- Építés éve 1980
- CSOK igénybe vehető nem
- Kilátás nincs megadva
- Tájolás nincs megadva
- Ingatlan komfort nincs megadva
- Parkolási lehetőség nincs megadva
- Építőanyag nincs megadva
- Bútorozott nincs megadva
- Akadálymentesített nincs megadva
- Erkély, terasz nincs megadva
- Kert kapcsolat nincs megadva
- Klíma nem
- Szigetelt nem
- Havi rezsiköltség nincs megadva
- Lakásbiztosítás nincs megadva
- Kábelszolgáltató nincs megadva
- Elektromos autó töltés nincs megadva
Energetikai besorolás:
Ez a hirdetés megfelelhet a FIX 3%-os programnak. Tudj meg többet a részletekről itt.
Az ingatlan leírása
Nagyszerű lehetőség CSAK IGÉNYESEKNEK, akik értékelik a minőséget! Miskolc, Avas, a város rendkívül kedvelt részén, 56 m2-es, 2,5 szobás, első emeleti, felújított rendkívül jó elosztású , erkélyes lakás eladó! Ez egy kiváló lehetőség mind magánszemélynek (akár nagycsaládosoknak), mind befektető számára. A magas minőségű hő -és hangszigetelt műanyag nyílászárók redőnnyel felszereltek, a lakás klímás. A szobákban nagy kopásállóságú laminált padló, a többi helyiségben hideg burkolat található ( amely csúcs minőségben lett burkolva, nagyon alapos szakember által). Lokációját tekintve tökéletes elhelyezkedésű az ingatlan. A lakás folyamatosan karbantartott. Az ingatlan közvetlen közelében megtalálható az egyetemváros, iskola, óvoda, bölcsőde, bevásárlási lehetőség, posta, orvosi rendelő, buszmegálló, benzinkút. A lépcsőház tiszta, rendezett, a lakóközösség kiváló, barátságos. OTP banki hátterünknek köszönhetően finanszírozási kérdéseben is állunk rendelkezésre nagyon kedvezményes konstrukciókkal. Ezt látnia kell! Ez egy kivételes és ritka lehetőség mind magánszemély, mind befektető számára, ilyen ingatlan nagyon ritkán elérhető és most alkalmi áron megvásárolható. Jöjjön el, és tekintse meg, garantáltan nem fog csalódni!OTP Banki hátterünknek köszönhetően finanszírozási igényekben (pl. Otthon Start Hitelprogram, Babaváró, Falusi CSOK, CSOK Plusz, Lakáshitel, Személyi kölcsön stb.), illetve biztosítások tekintetében is díjmentesen, soron kívüli ügyintézéssel segítem ügyfeleim!
Kérem tekintse meg, virtuális sétámat is.
Hívása során hivatkozzon az M309261 referenciaszámra!
35000000 Ft