Budapest XIII. kerület, Vizafogó, Vizafogó
-
Kínálati ár: 83 900 000 Ft
Kalkulált ár: 235 014 Є -
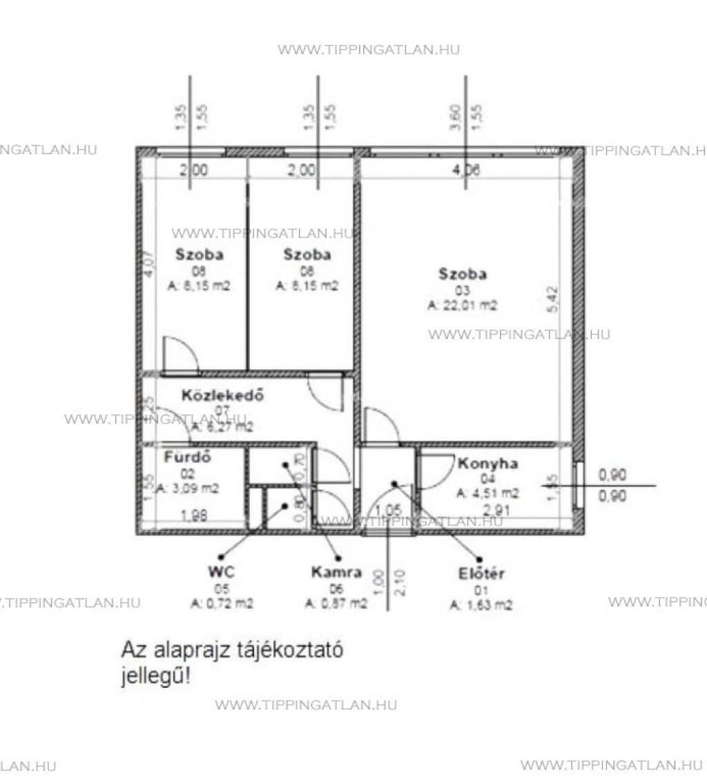
57 m2
Alapterület
-
1 + 2 fél
Szobaszám
- Alapterület 57 m2
- Telekterület -
- Szobaszám 1 + 2 fél
- Web www.ingatlantajolo.hu/9267754
- Négyzetméter ár 1 471 930 Ft/m2
- Értékesítés típusa Eladó / Kínál
- Kategória Lakás
- Típus Panellakás
- Emelet 6.
- Állapot Felújított
- Fűtés Távfűtés
- CSOK igénybe vehető nem
- Kilátás nincs megadva
- Tájolás nincs megadva
- Ingatlan komfort nincs megadva
- Parkolási lehetőség nincs megadva
- Építőanyag nincs megadva
- Bútorozott nincs megadva
- Akadálymentesített nincs megadva
- Erkély, terasz nincs megadva
- Kert kapcsolat nincs megadva
- Klíma nem
- Szigetelt nem
- Havi rezsiköltség nincs megadva
- Lakásbiztosítás nincs megadva
- Kábelszolgáltató nincs megadva
- Elektromos autó töltés nincs megadva
Energetikai besorolás:
Ez a hirdetés megfelelhet a FIX 3%-os programnak. Tudj meg többet a részletekről itt.
Az ingatlan leírása
GÖNCZ ÁRPÁD VÁROSKÖZPONTNÁL NAPPALI + 2 HÁLÓSZOBÁS BÚTOROZOTT, FELÚJÍTOTT LAKÁS!
PANELPROGRAMOS , AKADÁLY MENTES TÁRSASHÁZ PARKOS KÖRNYEZETBEN!
XIII. kerület Göncz Árpád városközpontnál ajánlom figyelmébe ezt a teljeskörűen felújított 57 nm-es igen jó elosztású otthont.
A Dán tipusu akadálymentes társasház két éve átesett a panelprogramon. Lépcsőháza tiszta rendezett. A lakók kényelmét kettő lift is szolgálja.
A pár éve felújított VI. emeleti otthon egy közös előtérből nyíló zárható folyosóról tudunk bejutni. A lakásba belépve az előszobába érkezünk. Innen nyílnak a lakó és mellékhelyiségek. Az ablakos világos konyha modern beépített konyhabútorral. Beépített sütővel,gázos főzőlappal,mosogatógéppel,kombinált hűtővel,mikróval és bőven van munka felület is. A konyha új ablakán szunyoghálóval védekezhetünk a váratlan vendégektől.
A lakás felújítása során az elektromos hálózat a vízvezeték csere is megtörtént. A hideg és meleg burkolatok ízléses minőségi anyagok felhasználásával készült.
A fürdőszoba és a mellékhelyiség külön helyiségben vannak.
A nappaliban és a hálószobákban új hang és hőszigetelt nyílászárót kaptak szúnyoghálóval.
A nappaliba klíma is felszerelésre került.
A közös költség: 13.500,-Ft/hó a rezsi összesen: 30-32.000,-Ft/hó
A lakás vételára a képen látható bútorzattal együtt értendő.
Az ingatlan per és teher mentes, gyorsan birtokba vehető.
A lakás környezete biztonságos kiváló ellátottsággal. A közelben iskola, ovi, orvosi rendelő, kisebb és nagyobb üzletek. Sportolási lehetőségek pl. a közeli uszodában.
A közlekedés is kitűnő: 3-as METRÓ, 1-es villamos és sok buszjárattal Buda és Pest kerületei gyorsan elérhetők.
Érdeklődés esetén kérem hívjon bizalommal!