Budapest X. kerület, Kőbánya, Kőbánya
Ez a hirdetés lehet, hogy már nem aktuális. A hirdetés nem aktív.
Hasonló ingatlanokat találtunk itt: Eladó panellakás Budapest X. kerület
Hasonló ingatlanokat találtunk itt: Eladó panellakás Budapest X. kerület
-
35 m2
Alapterület
-
1 + 1 fél
Szobaszám
- Alapterület 35 m2
- Telekterület -
- Szobaszám 1 + 1 fél
- Web www.ingatlantajolo.hu/8438629
- Négyzetméter ár 851 429 Ft/m2
- Értékesítés típusa Eladó / Kínál
- Kategória Lakás
- Típus Panellakás
- Emelet 10.
- Állapot Átlagos
- Fűtés Házközponti fűtés egyedi méréssel
- Építés éve 1970
- CSOK igénybe vehető nem
- Kilátás nincs megadva
- Tájolás nincs megadva
- Ingatlan komfort nincs megadva
- Parkolási lehetőség nincs megadva
- Építőanyag nincs megadva
- Bútorozott nincs megadva
- Akadálymentesített nincs megadva
- Erkély, terasz nincs megadva
- Kert kapcsolat nincs megadva
- Klíma nem
- Szigetelt nem
- Havi rezsiköltség nincs megadva
- Lakásbiztosítás nincs megadva
- Kábelszolgáltató nincs megadva
- Elektromos autó töltés nincs megadva
Energetikai besorolás:
A+++
A++
A+
A
B
C
D
E
F
G
H
I
Az ingatlan leírása
Referens: HJv/97971Budapest X. kerületében AZONNAL költözhető per-és tehermentes 35 m2 alapterületű 1,5 szoba összkomfortos 10. emeleti liftes, hőszigetelt homlokzatú panel lakást ELADÓ 32,498.000,-Ft.összegért.
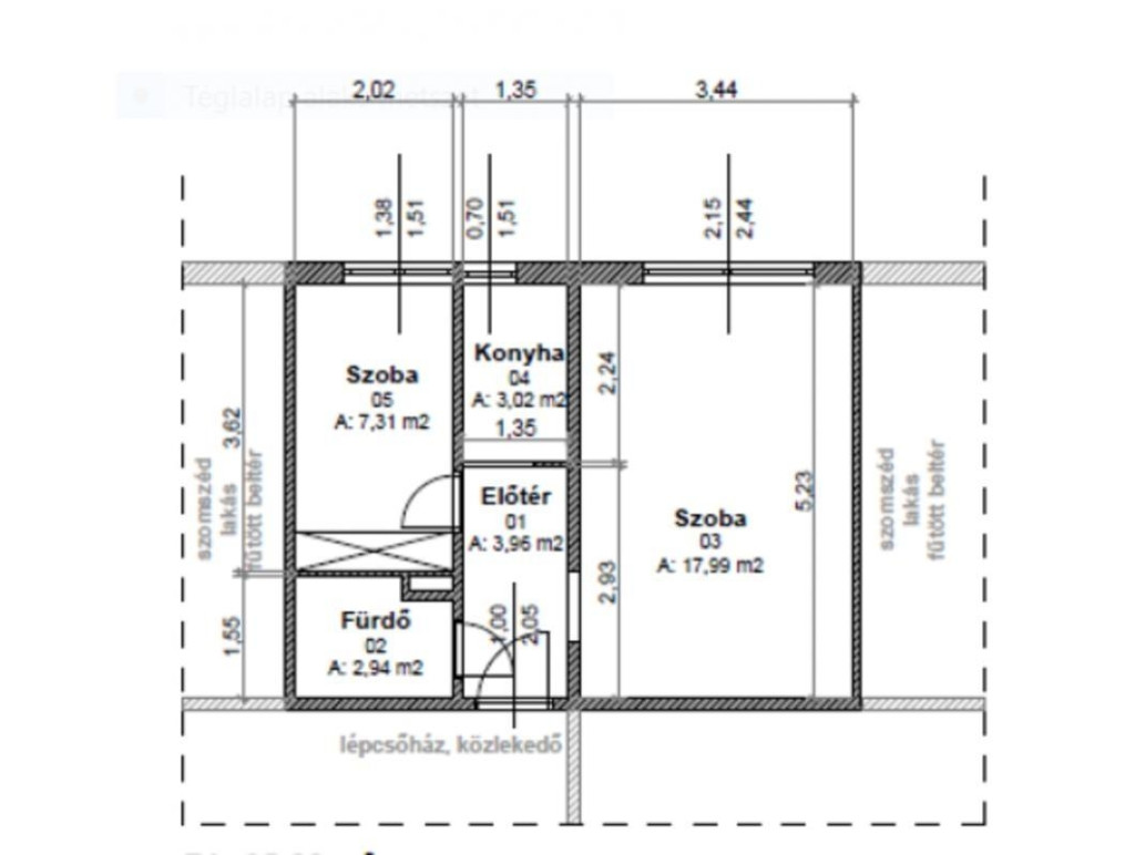
Az alaprajzon is látható, jó beosztású ingatlan világos, napos, kellemes otthona lakóinak.
A kilátás ill. környezet: parkra néző, játszótérrel.
Az ingatlan helyiségei és méretei: előszoba 4,0 m2, konyha 3,0 m2, fürdőszoba 3 m2, szobák: 7,3 m2 és 18 m2. A szobák az előszobáról nyílnak, külön bejáratúak. A konyhában normál ablak van.
Aljzatok: hidegburkolat és laminált parketta.
A külső nyílászárók korszerű műanyag szerkezetűek, hang- és hőszigetelt kivitelben, szúnyoghálóval és redőnnyel szereltek.
A bejárati ajtó biztonsági fokozatú.
FŰTÉS: házközponti rendszer, mérőórákkal szerelt, új radiátorokkal.
FÜRDŐSZOBA: alapvetően felújított, tusoló kabinnal felszerelt, a mosógép részére a kiállás rendelkezésre áll. A kényelmet törölközőszárítós radiátor biztosítja.
KÖRNYEZET – INFRASTRUKTÚRA:
Az Ecseri úti M3 Metro a közelben van, de a ház közelében a villamos és busz megállói.
Az infrastruktúra teljes körű – a lakók kényelme adott: orvosi, iskola-óvoda a közelben, számos üzlet, bank, posta stb.
PARKOLÁS: a társasház előtt-mellett a közterületen.
Várjuk komoly Érdeklődők jelentkezését a hét minden napján 9 – 18 óra között. Hívjon bizalommal!