Vácrátót
-
Kínálati ár: 82 500 000 Ft
Kalkulált ár: 227 273 Є -
78 m2
Alapterület
-
413 m2
Telekterület
-
4
Szobaszám
- Alapterület 78 m2
- Telekterület 413 m2
- Szobaszám 4
- Web www.ingatlantajolo.hu/9242665
- Négyzetméter ár 1 057 692 Ft/m2
- Értékesítés típusa Eladó / Kínál
- Kategória Ház- házrész
- Típus Ikerház
- Állapot Új építésű
- Építés éve 2026
- Belső szintek nincs megadva
- Tetőtér beépíthető nincs megadva
- CSOK igénybe vehető nincs megadva
- Kilátás nincs megadva
- Tájolás nincs megadva
- Ingatlan komfort nincs megadva
- Parkolási lehetőség nincs megadva
- Építőanyag nincs megadva
- Bútorozott nincs megadva
- Akadálymentesített nincs megadva
- Erkély, terasz nincs megadva
- Klíma nincs megadva
- Szigetelt nincs megadva
- Havi rezsiköltség nincs megadva
- Lakásbiztosítás nincs megadva
- Kábelszolgáltató nincs megadva
- Elektromos autó töltés nincs megadva
Energetikai besorolás:
Ez a hirdetés megfelelhet a FIX 3%-os programnak. Tudj meg többet a részletekről itt.
Az ingatlan leírása
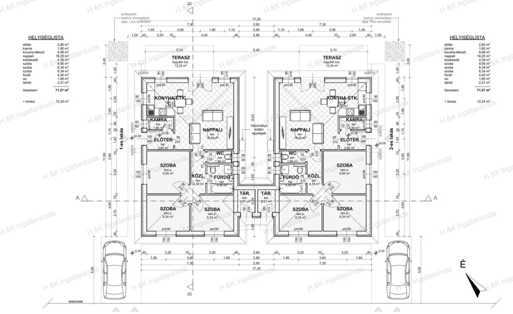
ÚJ ÉPÍTÉSŰ, ENERGIATAKARÉKOS, csak a tárolókkal érintkező ikerház mindkét fele eladó Vácrátóton!CÉGES ÉPÍTKEZÉS, a 2024-től aktuális állami támogatások valamint kedvezményes, kamattámogatott hitelek felvehetőek – akár a 3%-os OTTHON START hitel, CSOK PLUS, babaváró is igényelhető, az ügyintézésben díjmentesen segítünk!
Az építő munkájára jellemző a megbízhatóság és igényesség, leinformálható, referencia házai megtekinthetők.
A belső kialakítás jelenleg még a vevő igényei szerint módosítható!
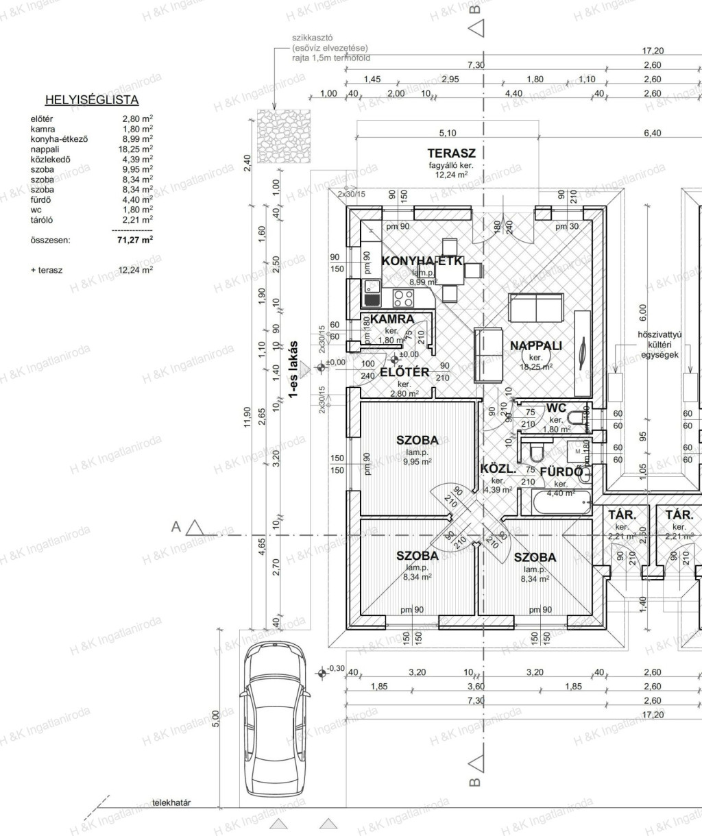
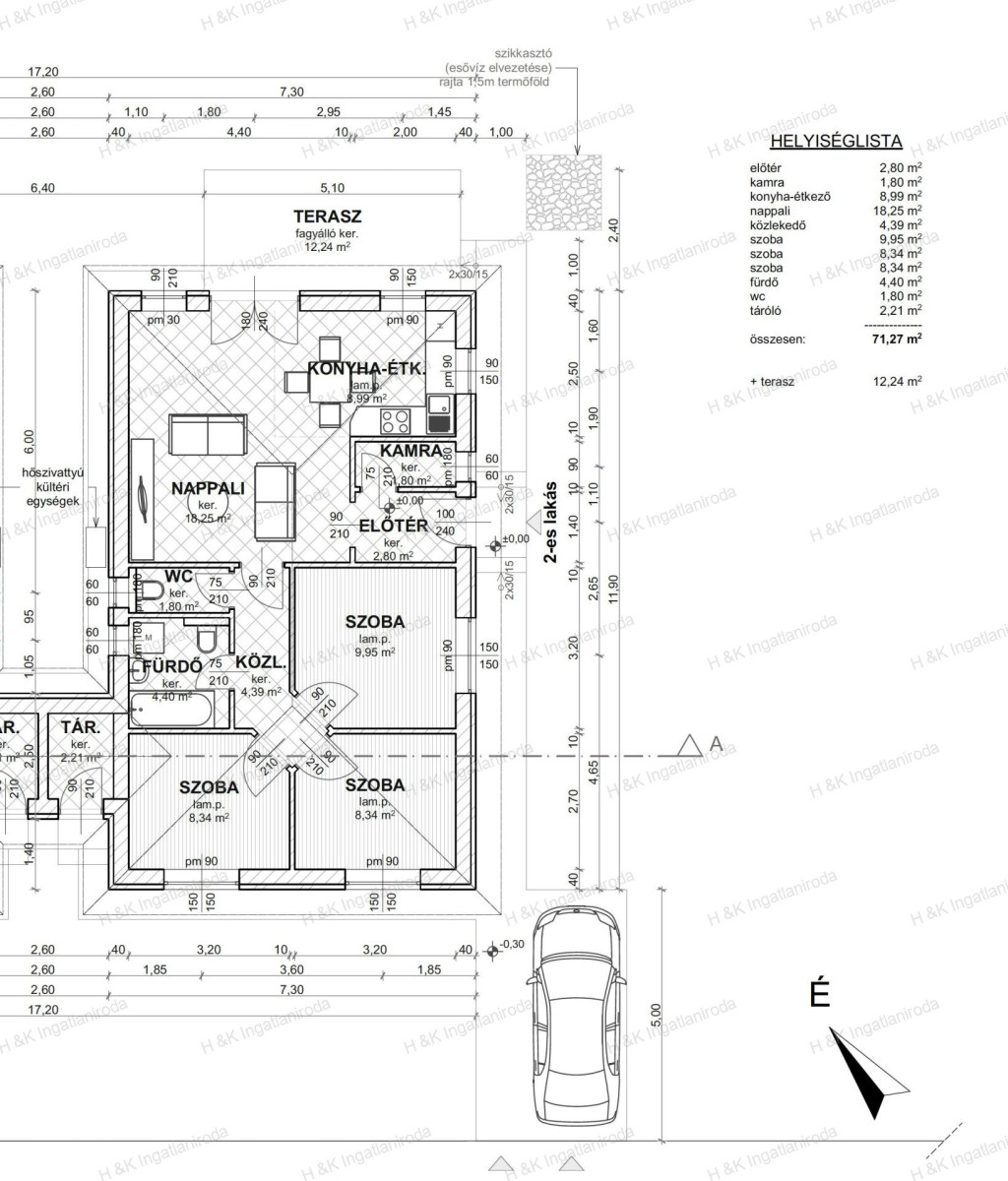
A lakások nettó területe 71,27 nm + terasz, amerikai konyhás nappali + 3 szobás, zárt gépkocsi beállóval, 413 nm-es telekrészekkel.
A ház a mai kor igényeinek megfelelően, minőségi anyagokból energiatakarékos technológiával készül.
Rövid műszaki tartalom: a főfalak 30-as Porotherm téglából, 12 cm-es hőszigeteléssel épülnek, beton födémmel. A tető antracit színű beton cserépfedést kap.
3 rétegű, hőszigetelt üvegezésű, fehér színű nyílászárók, melyek igény esetén – értékegyeztetéssel – redőnnyel, szúnyoghálóval felszerelhetők.
A lakások fűtése és meleg víz ellátása hőszivattyúval történik, padlófűtéses hő leadással.
A nappaliban klíma is elhelyezésre kerül.
Az ingatlan kulcsrakész állapotban kerül átadásra, konyhabútor nélkül.
Belső nyílászárók és a burkolatok választhatók, a belső műszaki tartalomban megjelölt összegig a vételár részét képezik.
A képek látványtervek, melyek a lehetséges kialakítást és hangulatot szemléltetik. A tényleges megvalósítás az alaprajz és műszaki tartalom szerint történik, az ingatlan a valóságban bútorozatlan.
Ára: 82.500.000.- Ft/lakás
Azonosító: 4641