Máriakálnok
-
Kínálati ár: 83 990 000 Ft
Kalkulált ár: 213 715 Є -
111 m2
Alapterület
-
345 m2
Telekterület
-
4
Szobaszám
- Alapterület 111 m2
- Telekterület 345 m2
- Szobaszám 4
- Web www.ingatlantajolo.hu/9273490
- Négyzetméter ár 756 667 Ft/m2
- Értékesítés típusa Eladó / Kínál
- Kategória Ház- házrész
- Típus Ikerház
- Állapot Új építésű
- Építés éve 2026
- Belső szintek nincs megadva
- Tetőtér beépíthető nincs megadva
- CSOK igénybe vehető nincs megadva
- Kilátás nincs megadva
- Tájolás nincs megadva
- Ingatlan komfort nincs megadva
- Parkolási lehetőség nincs megadva
- Építőanyag nincs megadva
- Bútorozott nincs megadva
- Akadálymentesített nincs megadva
- Erkély, terasz nincs megadva
- Klíma nincs megadva
- Szigetelt nincs megadva
- Havi rezsiköltség nincs megadva
- Lakásbiztosítás nincs megadva
- Kábelszolgáltató nincs megadva
- Elektromos autó töltés nincs megadva
Energetikai besorolás:
Ez a hirdetés megfelelhet a FIX 3%-os programnak. Tudj meg többet a részletekről itt.
Az ingatlan leírása
Egyedülálló TERMÁLVIZES fűtés és meleg víz ellátás. Az Aranyossziget-Villaparkban található házaknál termálvízzel táplált fűtés biztosított. Nincs szükség kazánra, gázkazánra, hőszivattyúra, stb.
Új fejlesztésű, innovatív ikerház itt, a Centrál-Ingatlan kínálatában.
-Mosonmagyaróvár közvetlen közelében, közigazgatásilag Máriakálnokhoz tartozó Aranyossziget-Villaparkban, zárt sorú beépítésű, új építésű ikerházat kínálunk.
Fontos megjegyezni az extrákat: termálvizes (olcsó) fűtés, rejtett redőnytok és lefutó sin beépítés, 2db klíma előkészítés, hőszivattyús meleg vízellátás, padlófűtés, házzal egybeépített garázs, csodálatos Mosoni-Duna melletti, védett környezet.
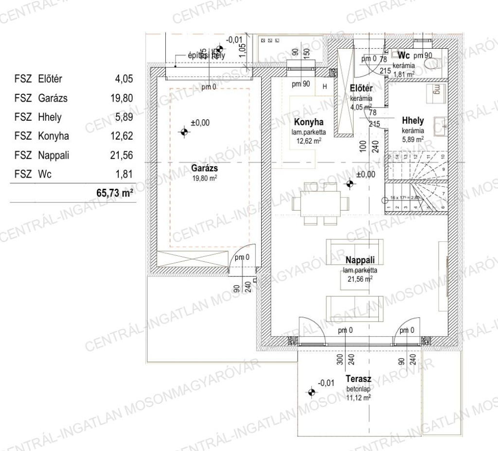
- A 111.13m2 alapterületű ház lakóterülete 91.33m2 + garázs 19.8m2. A házhoz tartozó terasz 11.12m2, amely igény szerint bővíthető.
-A földszinten tágas nappali-étkező-konyha, wc, előtér, háztartási helyiség (akár zuhanyzóval) és garázs található. Az emeleten 3db, jó méretű hálószoba, fürdő wc-vel, gardrób, közlekedő található.
-A kis forgalmú, utcában épülő házhoz tartozó telekrész 345m2-es. Van hely további kocsibeállónak, füves területnek és virágoskertnek is.
-A ház formája modern, letisztult stílusú tervezés eredménye. A belső elosztás is rendkívül ideális. A ház déli fekvésű, a legjobb hogy sok napsütés jusson a házba.
-A nappaliból egy 11.12m2-es (bővíthető) teraszra tudunk kilépni, amely szintén déli fekvésű. Igény esetén pergolával vagy tetővel befedhető.
-A műszaki tartalom magas. Kiváló anyagok felhasználásával, profi kivitelezésben készül minden. A házat tapasztalt, sok referenciával rendelkező, stabil vállalkozás készíti saját beruházásban.
-Külső nyílászárók: modern, műanyag tokszerkezetű, 3 rétegű üvegezéssel készülnek. Az ablakok és a teraszajtó beépített redőnytokok és lefutó sínek lesznek beépítve (redőnypalást nélkül), villanykiállással a motoros mozgatáshoz.
-A fűtés termálvizes rendszerről, hőcserélővel történik, az összes helyiségben padlófűtéssel. Hőszivattyús bojler biztosítja a meleg víz ellátást is. A termálvizes fűtés a házakban kiváló választás, mert rendkívül olcsó, üzembiztos fűtési mód. Nincs kazán karbantartás, kazáncsere, meghibásodás, nincs energiaár függőség. A termálvizet a területen lévő termálkút biztosítja.
-A vételár tartalmazza a szintenkénti klíma előkészítést, igény esetén a klíma is felszerelésre kerül.
-A ház 15 cm-es homlokzati szigeteléssel készül, továbbá a homlokzati vasbeton szerkezetekre + 5 cm szigetelés kerül. A felület nemes vakolat záróréteget kap.
-A feltüntetett ár fűtéskész állapotra vonatkozik. Tartalmazza a telek árát, teljes külső befejezést, tereprendezést, belső fűtéskész állapotot (betonozott aljzat, vakolt falak, két szint között betonfödém, víz-, csatorna-, villanykiállások).
-A kulcsrakész befejezésre is van lehetőség, választható anyagok felhasználásával, minőségi befejező munkákkal.
-Az építész alaprajz szerinti méretek „nyers” méretek, vakolatlan falak közötti távolságot jelentik.
Az Aranyossziget-Villapark közigazgatásilag Máriakálnokhoz tartozik, de Mosonmagyaróvár közvetlen határán fekszik, így inkább a város részének tekinthető. A villapark a Mosoni-Duna patkó alakú kanyarulatában, 150 hektáros erdő közepén került kialakításra, ahol megtalálható lesz egy szép látványtó és játszótér is. Garantáltan a családosok kedvence lesz.
A nálunk vásárlóknak a lakások befejezéséhez, bútorozásához egyedi kedvezményeket biztosítunk kiemelt partnereinknél!
Remek választás, kiváló energetikai besorolás, alacsony rezsi, kiváló lokáció, minőségi kivitelezés. Tervezett átadás lekötéstől függően 2026. III-IV. negyedév.
Vásárolna és szükség lenne hitelre is? Kollégám díjmentes, bank független hitel-ügyintézéssel áll rendelkezésére.
A megadott elérhetőségeken várom jelentkezését!