Győrszemere, Nagyszentpál
-
Kínálati ár: 95 900 000 Ft
Kalkulált ár: 244 020 Є -
91 m2
Alapterület
-
450 m2
Telekterület
-
4
Szobaszám
- Alapterület 91 m2
- Telekterület 450 m2
- Szobaszám 4
- Web www.ingatlantajolo.hu/9250315
- Négyzetméter ár 1 053 846 Ft/m2
- Értékesítés típusa Eladó / Kínál
- Kategória Ház- házrész
- Típus Ikerház
- Állapot Újszerű állapotú
- Fűtés Gáz (cirkó)
- Belső szintek nincs megadva
- Tetőtér beépíthető nem
- CSOK igénybe vehető nem
- Kilátás nincs megadva
- Tájolás nincs megadva
- Ingatlan komfort nincs megadva
- Parkolási lehetőség nincs megadva
- Építőanyag nincs megadva
- Bútorozott nincs megadva
- Akadálymentesített nincs megadva
- Erkély, terasz nincs megadva
- Klíma nem
- Szigetelt nem
- Havi rezsiköltség nincs megadva
- Lakásbiztosítás nincs megadva
- Kábelszolgáltató nincs megadva
- Elektromos autó töltés nincs megadva
Energetikai besorolás:
Ez a hirdetés megfelelhet a FIX 3%-os programnak. Tudj meg többet a részletekről itt.
Az ingatlan leírása
Győr-Moson-Sopron megye, Győrszemere-Nagyszentpál, eladó ikerház.Találja meg új otthonát Győrszemere-Nagyszentpál csendes, nyugodt új kialakítású utcájában! Ebbe az újszerű, modern, igényes kivitelezésű ikerházba csak költöznie kell! Győrtől pár perces autóút távolságra található.
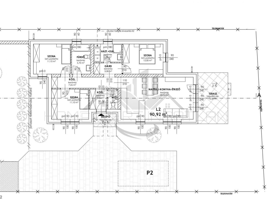
Egy 2024-ben épült ikerház hátsó lakását kínálom eladásra: ne. 90,92 nm alapterület + 15 nm-es terasz, nappali, konyha, étkező + 3 szoba, 450 nm-es telekhányad (a telek teljes területe 805 nm). Nincs közös fal a két ingatlan között. A két ház egymástól teljesen elszeparált, használati megosztás rögzíti a telekhasználatot.
Műszaki tartalom:
• Tégla falazat, ’30-as Porotherm téglából
• Külső falakon 15 cm-es hőszigetelés
• Műanyag, redőnyözött nyílászárók
• Beton födém
• Cserép héjazat
• Gázkazán padlófűtéssel, fürdőszobában törölközőszárítós radiátorral
Helyiségek: nappali, konyha, étkező, közlekedő, 3 külön nyíló szoba, fürdőszoba (fürdőkáddal és WC-vel), külön WC, háztartási helyiség (zuhanyzóval), 15 nm terasz, kerti faház tároló. Térkövezett kocsibeálló az udvarban, 2 autó is elfér.
Az egyedileg készített konyhabútor gépesített. Beépített szekrények biztosítják a praktikus pakolást. A teraszajtón a redőny elektromos. A teraszon az árnyékolást napvitorla biztosítja. A ház kiváló térelosztással rendelkezik.
A parkosított udvar körbekerített. A rezsi nagyon minimális, az épület energetikai besorolása „C”-s
Ajánlom mindazoknak, akik kellemes környezetben szeretnének élni!
Ha felkeltette érdeklődését, hívjon bizalommal, és időpont egyeztetés után már mutatom is az ingatlant! Irányár: 95.900.000 Ft.
Teljes körű ügyintézéssel állok rendelkezésére.
A Homexpert ingatlaniroda további szolgáltatásai:
Jogi képviselet-ügyvédi háttér, díjmentes banksemleges hitel- CSOK és biztosítási ügyintézés, energetikai tanúsítvány készítése.
Teljes kínálatunkat megtekintheti a Homexpert Ingatlan weboldalán.
Ha ingatlant szeretne eladni, akkor is keressen elérhetőségeim bármelyikén!