Erdőkertes
-
Kínálati ár: 109 500 000 Ft
Kalkulált ár: 305 014 Є -
119 m2
Alapterület
-
586 m2
Telekterület
-
5
Szobaszám
- Alapterület 119 m2
- Telekterület 586 m2
- Szobaszám 5
- Web www.ingatlantajolo.hu/9164700
- Négyzetméter ár 920 168 Ft/m2
- Értékesítés típusa Eladó / Kínál
- Kategória Ház- házrész
- Típus Ikerház
- Állapot Új építésű
- Fűtés Egyéb fűtés
- Szintek száma 1
- Építés éve 2025
- Belső szintek 1
- Tetőtér beépíthető nem
- CSOK igénybe vehető igen
- Kilátás Kertre néző
- Tájolás nincs megadva
- Ingatlan komfort Duplakomfortos
- Parkolási lehetőség Udvari beálló
- Építőanyag Tégla
- Bútorozott nincs megadva
- Akadálymentesített nincs megadva
- Erkély, terasz Terasz
- Klíma igen
- Szigetelt nem
- Havi rezsiköltség nincs megadva
- Lakásbiztosítás nincs megadva
- Kábelszolgáltató nincs megadva
- Elektromos autó töltés nincs megadva
Energetikai besorolás:
Ez a hirdetés megfelelhet a FIX 3%-os programnak. Tudj meg többet a részletekről itt.
Az ingatlan leírása
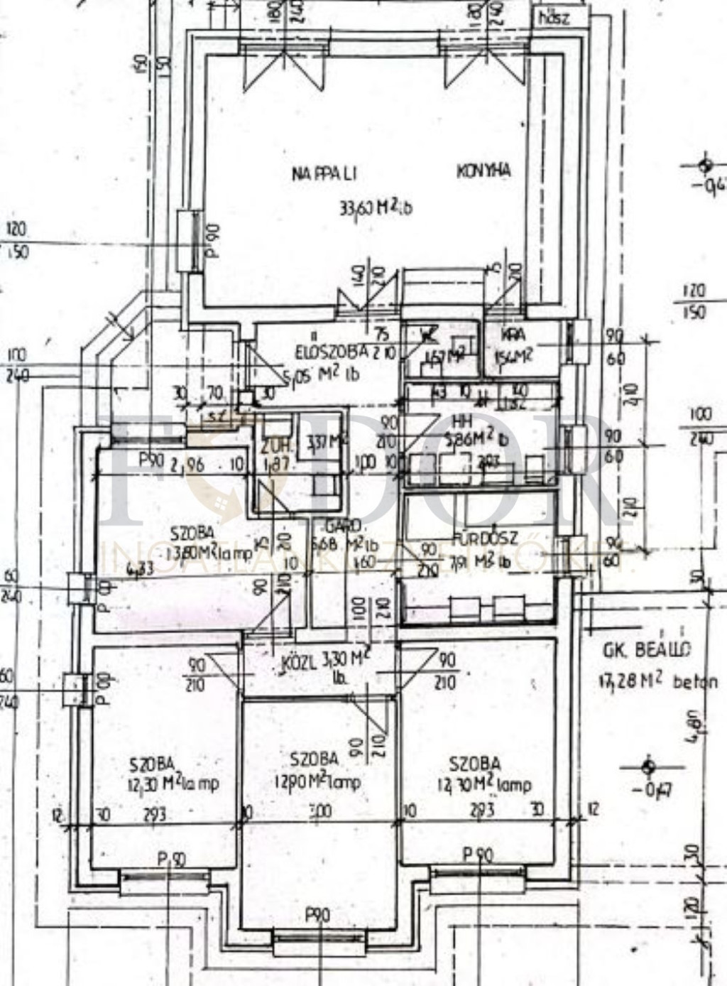
Kivételes lehetőség Erdőkertes szívében – csak a Fodor Ingatlanközvetítő Kft. kínálatában!Ahol a nyugalom és a minőség találkozik, ott kezdődik az igazi otthon.
Erdőkertes (Háromház) egyik legkedveltebb, csendes mellékutcájában, kínálunk eladásra egy új építés, földszintes, duplakomfortos, modern ikerházat, melyet minden részletében az otthon melege, a kényelem és az energiahatékonyság jegyében terveztek.
Az ingatlan nemcsak ház, hanem életérzés – az a hely, ahol a reggeli kávét a felkelőnap simogatásában ihatja, ahol a gyerekek önfeledten játszhatnak a saját kertjükben, és ahol minden este a nyugalom öleli körül a családot.
Két különálló, napfényes otthon:
- 119 m²-es, 1 lakás (baloldal), + fedett gépkocsi beálló, hozzá tartozó telek terület 580 m² – 109.500.000 Ft
- 119 m²-es, 2 lakás (jobboldali), + fedett gépkocsi beálló, hozzá tartozó telek terület 586 m² – 109.500.000 Ft
2025-ös elvárásoknak megfelelően:
- Környezetbarát hőszivattyús fűtés H-tarifás villanyórával
- Minden helyiségben padlófűtés, fürdőszobában törölközőszárítós radiátor
- 4 hálószoba, 2 fürdőszoba, tágas, napfényes amerikai konyhás nappali
Minőség kívül-belül:
- Prémiumszigetelés, 3 rétegű nyílászárók megbeszélés szerint elektromos redőnnyel és szúnyoghálóval
- Modern, 1 DB inverteres hűtő-fűtő klíma
- Elektromos kapu motor előkészítés, riasztórendszer előkészítés
Választható burkolatok, szaniterek, beltéri ajtók – formálja saját ízlésére!
Családbarát környezet:
Erdőkertes nyugodt, zöldövezeti része, mégis minden fontos szolgáltatás csak pár percre: bolt, kozmetika, virágbolt, zöldséges, iskola, óvoda, tömegközlekedés. Budapest mindössze 30 perc autóval!
Megbízható, tapasztalt kivitelező gondoskodik arról, hogy ne csak egy ház, hanem egy valódi otthon szülessen.
Várható átadás: 2026. I. negyedév
Most még lehetősége van beleszólni a burkolatokba – ez az otthon az Ön elképzelései szerint valósulhat meg!
Hívjon most, és tekintse meg személyesen!
IRODÁNK INGYENES HITEL ÜGYINTÉZÉSSEL, TANÁCSADÁSSAL, SZÁMOS BANK AJÁNLATÁVAL ÉS AZ ÚJ CSOK FOLYÓSÍTÁSÁVAL VÁRJA ÜGYFELEIT.