Dunaharaszti, Bezerédi-lakópark
-
Kínálati ár: 164 700 000 Ft
Kalkulált ár: 453 719 Є -
122 m2
Alapterület
-
405 m2
Telekterület
-
5
Szobaszám
- Alapterület 122 m2
- Telekterület 405 m2
- Szobaszám 5
- Web www.ingatlantajolo.hu/9210945
- Négyzetméter ár 1 350 000 Ft/m2
- Értékesítés típusa Eladó / Kínál
- Kategória Ház- házrész
- Típus Ikerház
- Szintek száma 1
- Építés éve 2026
- Belső szintek 1
- Tetőtér beépíthető nincs megadva
- CSOK igénybe vehető nincs megadva
- Kilátás nincs megadva
- Tájolás nincs megadva
- Ingatlan komfort nincs megadva
- Parkolási lehetőség nincs megadva
- Építőanyag nincs megadva
- Bútorozott nincs megadva
- Akadálymentesített nincs megadva
- Erkély, terasz nincs megadva
- Klíma nincs megadva
- Szigetelt nincs megadva
- Havi rezsiköltség nincs megadva
- Lakásbiztosítás nincs megadva
- Kábelszolgáltató nincs megadva
- Elektromos autó töltés nincs megadva
Energetikai besorolás:
Az ingatlan leírása
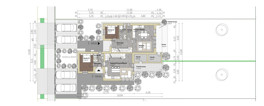
Ritka lehetőség a Bezerédi lakóparkban, az első ütem területén a már gyönyörűen kialakított, átmenő forgalom mentes utcában eladó ikerház, saját elkerített kerttel, kocsi beállókkal. Több évtizedes tapasztalattal rendelkező kivitelező legújabb projektje! Az épület magas műszaki tartalommal készül, mai kornak és elvárásoknak megfelelően. A két lakás között DUPLA hang-gátló fal készül és külön kerül kiöntésre a födém is. Magas hangsúlyt fektettek a két lakás külön választására, hogy mindkettő lakó funkció önálló ház életérzését nyújtsa! Átadás 2026. június - július Elhelyezése kiváló, csendes családi házas utca, pár perc sétára bölcsőde, óvoda, játszótér, vonat állomás, buszmegálló, kis bolt. Lakás 1 Alapterület: 122,13 m² Elosztás: Saját kert rész 400m² 2 fürdőszoba 4 hálószoba 2 fürdőszoba 1 gardrób Ár: 164 700 000 Ft Lakás 2 Alapterület: 107,97 m² Elosztás: Sajtát kert rész 400m² 2 fürdőszoba 4 hálószoba 2 fürdőszoba Ár: 156 600 000 Ft ( Most 149.900.000 Ft AKCIÓS ÁR) -Korszerű hőszivattyús fűtés és hűtés -Padló, mennyezeti és fal fűtés-hűtés -Építési mód: 30-as POROTHERM tégla -Szigetelés: 15 cm EPS szigetelés -Födém: monolit beton -Tetőszerkezet: TERRÁN Zenit Resistor cserép, carbon grafit színben -Nyílászárók: műanyag, 3 rétegű, antracit színű kívül-belül.
-elektromos redőnyök -Energiatakarékos A+ besorolás -Választható burkolatok, a műszaki tartalomban meghatározott kereten belül. -Szerkezete vasbetonnal erősített Prémium műszaki tartalom kérhető extra felár ellenében: - Napelem alapszerelése - Okos otthon kialakítása - Prémium burkolatok - Épített kerítés - Fedett terasz - Tároló - Térkövezés - Üvegkorlát Jöjjön el, tekintse meg az ingatlant! Szívből ajánlom minden olyan érdeklődőnek, akinek fontos a minőség és kényelem, a jó közlekedés és valamint a központhoz való pár perc alatti közelség, mégis megnyugtató szigetként funkcionáló meghitt családi otthon! Várom hívását! Amennyiben nem tudom felvenni a telefont, hamarosan visszahívom! Hétvégén és esténként is nyugodtan kereshet bizalommal! Független, ingyenes hitel-CSOK ügyintézéssel segítem kedves Ügyfeleimet, igen kedvező hitelekkel 2025-ben is! Mivel ingatlanirodánk építész és ingatlanfejlesztő irodával párosul, így minden hiteles szakmai segítséget meg tudunk adni, mellyel segíteni tudjuk döntését (könyvelő, ügyvéd, energetikai tanúsítvány, kivitelezők, szakértői vélemények....)! Ha a vásárláshoz el szeretné adni a jelenleg meglévő ingatlanját, ebben is nagyon szívesen segítek. Az Ingatlancorner kft. igen alacsony közvetítői díjjal, a legmagasabb színvonalon képviseli az Ön érdekeit. Ellenőrzött prémium partnerként várom megtisztelő bizalmát!