Debrecen, Fészek lakópark, Fészek lakópark
-
Kínálati ár: 125 000 000 Ft
Kalkulált ár: 345 304 Є -
144 m2
Alapterület
-
300 m2
Telekterület
-
4
Szobaszám
- Alapterület 144 m2
- Telekterület 300 m2
- Szobaszám 4
- Web www.ingatlantajolo.hu/9321791
- Négyzetméter ár 868 056 Ft/m2
- Értékesítés típusa Eladó / Kínál
- Kategória Ház- házrész
- Típus Ikerház
- Fűtés Gáz (cirkó)
- Építés éve 2027
- Belső szintek nincs megadva
- Tetőtér beépíthető nem
- CSOK igénybe vehető nem
- Kilátás nincs megadva
- Tájolás nincs megadva
- Ingatlan komfort nincs megadva
- Parkolási lehetőség nincs megadva
- Építőanyag nincs megadva
- Bútorozott nincs megadva
- Akadálymentesített nincs megadva
- Erkély, terasz nincs megadva
- Klíma nem
- Szigetelt nem
- Havi rezsiköltség nincs megadva
- Lakásbiztosítás nincs megadva
- Kábelszolgáltató nincs megadva
- Elektromos autó töltés nincs megadva
Energetikai besorolás:
Ez a hirdetés megfelelhet a FIX 3%-os programnak. Tudj meg többet a részletekről itt.
Az ingatlan leírása
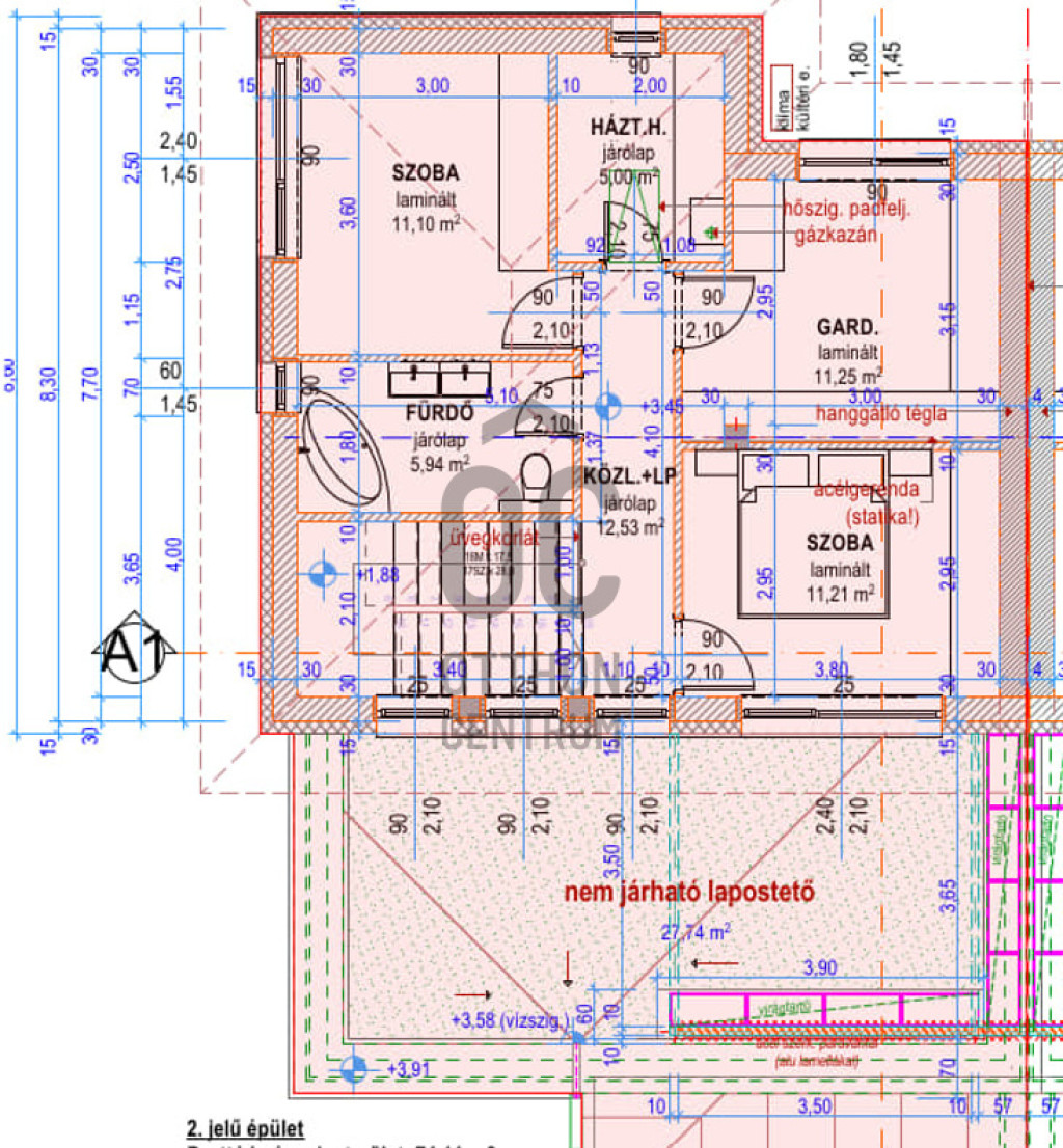
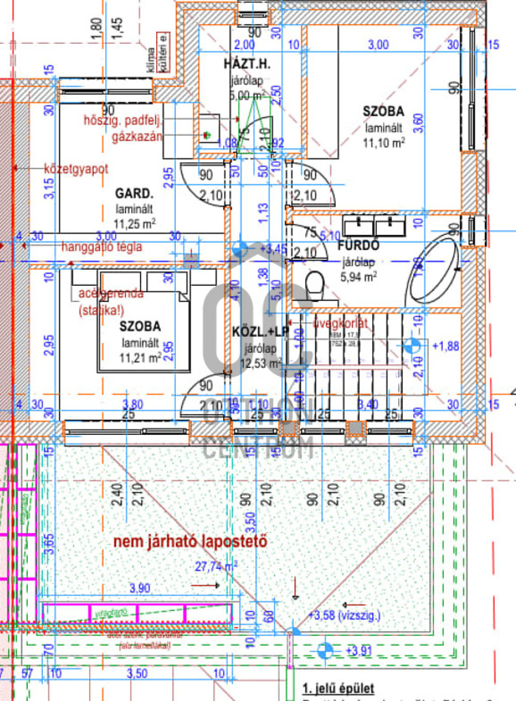
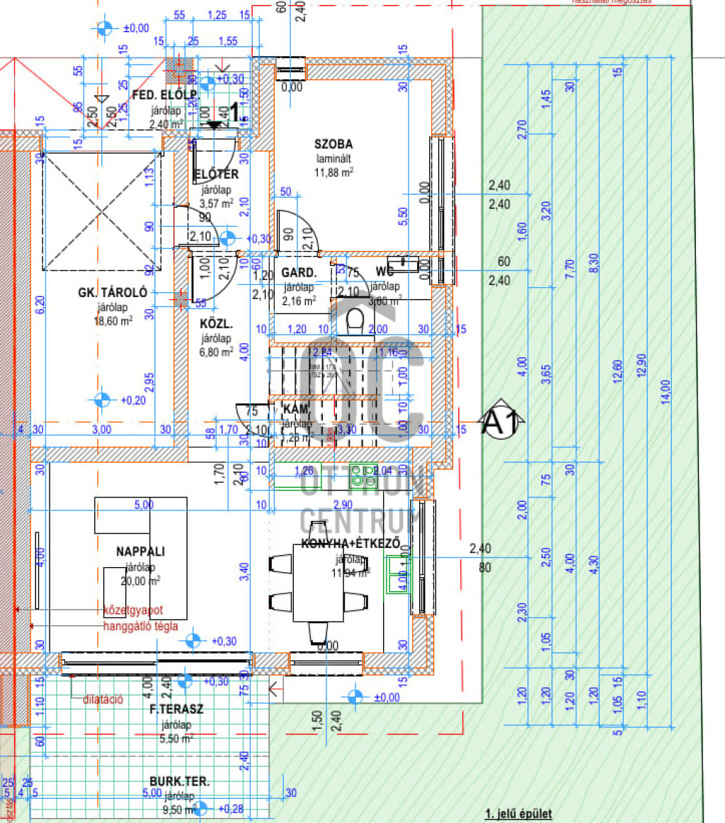
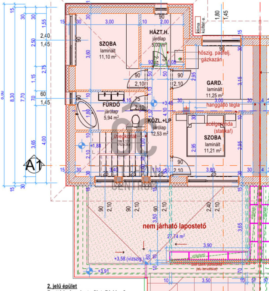
Az ingatlan 144,8 m2 alapterületű, saját udvarral.Projekt bemutatása
A megépítésre kerülő otthonok, a mai kornak megfelelő magas műszaki tartalommal , és modern technólógiával készülnek, átgondolt alprajzzal, élhető terekkel.
A lakások praktikus elrendezése egy világos egybenyíló konyha - étkező - nappali életteret biztosítanak, 3 különnyíló szobát, gardrobot, háztartási helyiségeket foglal magába, így ideális választás családok számára.
Alapterülete : 144,8 m2
Minden lakáshoz saját kert és garázs tartozik, amely biztosítja a kertvárosi életérzést.
Műszaki jellemzői :
- Immergas 24 kw gondenzációs kazán
- padlófűtés
- porotherm falazat
- 15 cm homlokzati szigetelés
- 3 rtg hő - hangszigetelt nyílászárók
- modern épületgépészet
- minőségi burkolatok
- motoros garázskapu
- hőszivattyú csövezés, előkészítés későbbi telepítéshez
- stb ....
Ha felkeltettem az érdeklődését, kérem , hívjon bizalommal.