Budapest XXIII. kerület
-
Kínálati ár: 125 000 000 Ft
Kalkulált ár: 318 066 Є -
168 m2
Alapterület
-
650 m2
Telekterület
-
5 + 1 fél
Szobaszám
- Alapterület 168 m2
- Telekterület 650 m2
- Szobaszám 5 + 1 fél
- Web www.ingatlantajolo.hu/9266289
- Négyzetméter ár 744 048 Ft/m2
- Értékesítés típusa Eladó / Kínál
- Kategória Ház- házrész
- Típus Ikerház
- Emelet földszint
- Fűtés Geotermikus
- Szintek száma 3
- Építés éve 2024
- Belső szintek 3
- Tetőtér beépíthető nem
- CSOK igénybe vehető nem
- Kilátás nincs megadva
- Tájolás nincs megadva
- Ingatlan komfort nincs megadva
- Parkolási lehetőség nincs megadva
- Építőanyag nincs megadva
- Bútorozott nincs megadva
- Akadálymentesített nincs megadva
- Erkély, terasz nincs megadva
- Klíma nem
- Szigetelt nem
- Havi rezsiköltség nincs megadva
- Lakásbiztosítás nincs megadva
- Kábelszolgáltató nincs megadva
- Elektromos autó töltés nincs megadva
Energetikai besorolás:
Ez a hirdetés megfelelhet a FIX 3%-os programnak. Tudj meg többet a részletekről itt.
Az ingatlan leírása
Eladó Ikerház Budapest 23. kerületében – Modern Életforma Kertvárosi Környezetben. Nagycsaládosoknak vagy több generáció számára is kényelmes életteret biztosít.Főbb jellemzők:
- Telek méret: 650m2
- Saját kert: 160m2
- Hasznos lakótér: 168 m2
- Építés éve: 2024
- A ház prémium minőségű anyagok felhasználásával készült. Még nem lakták így Ön lehet az első lakója.
- Falazat: Ytong (30cm) + 10cm Drywit hőszigetelés
- Energetikai besorolás: BB
- 5 légkamrás, 3 rétegű üvegezésű Fenstherm nyílászárók
- 5 ponton záródó biztonsági bejárati ajtó
- Fűtésrendszer: Hőszivattyú (Loria Duo 6000, 10 kW levegő–víz) - padlófűtés
- Minden helyiségben külön termosztáttal szabályozható a hőmérséklet
- Hűtés előkészítés megtörtént (fan-coil rendszerhez)
- Praktikus elosztás, élhető terek.
- Terasz
- Erkélyek
- Riasztó rendszer
- Motoros kapu
- Azonnal költözhető
Elrendezés:
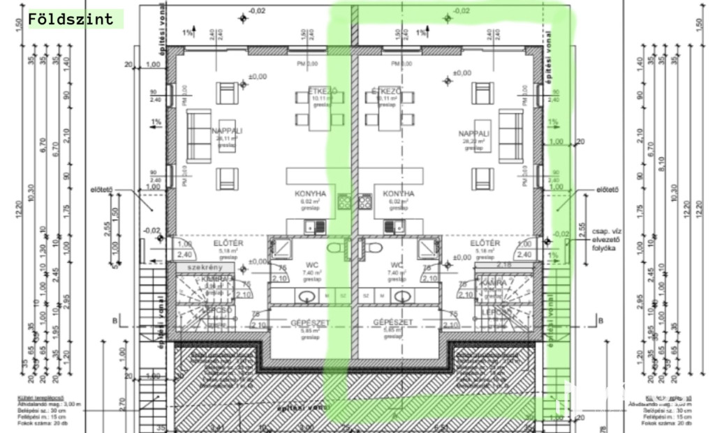
- Földszint: Amerikai-konyhás Nappali, fürdő+wc, gépészeti helyiség, kamra, terasz
- Emelet: 4db hálószoba, Fürdő+wc, erkély
- Tetőtér: Szoba, fürdőszoba+wc, gardrób, erkély (Önnáló lakrészként is használható!)
Parkolás:
- 2 autónak zárt udvari beállón
- Utcán ingyenes
Elhelyezkedés:
- Soroksár-Orbánhegy, nyugodt kertvárosi környezetben
Közelben található:
- Iskola, óvoda, bölcsőde, Lidl, Aldi, gyógyszertár, sportpályák, játszótér, boltok-üzletek
Közlekedés:
- HÉV -buszmegálló a közelben
- Boráros tér 15 perc alatt elérhető
- M0 körgyűrű, M5 autópálya, 5-ös és 51-es utak 8 perc alatt elérhetőek
Ha kérdése merülne fel vagy szeretné megtekinteni az ingatlant, forduljon hozzám bizalommal! Kattintson ide a hirdető iroda weboldalának megtekintéséhez!