Bogács
-
Kínálati ár: 39 800 000 Ft
Kalkulált ár: 109 642 Є -
1 500 m2
Telekterület
- Alapterület 0 m2
- Telekterület 1 500 m2
- Szobaszám -
- Web www.ingatlantajolo.hu/9254969
- Négyzetméter ár 26 533 Ft/m2
- Értékesítés típusa Eladó / Kínál
- Kategória Telek
- Típus Építési telek
- Kilátás nincs megadva
- Tájolás nincs megadva
- Víz nincs megadva
- Gáz nincs megadva
- Csatorna nincs megadva
- Villany nincs megadva
Az ingatlan leírása
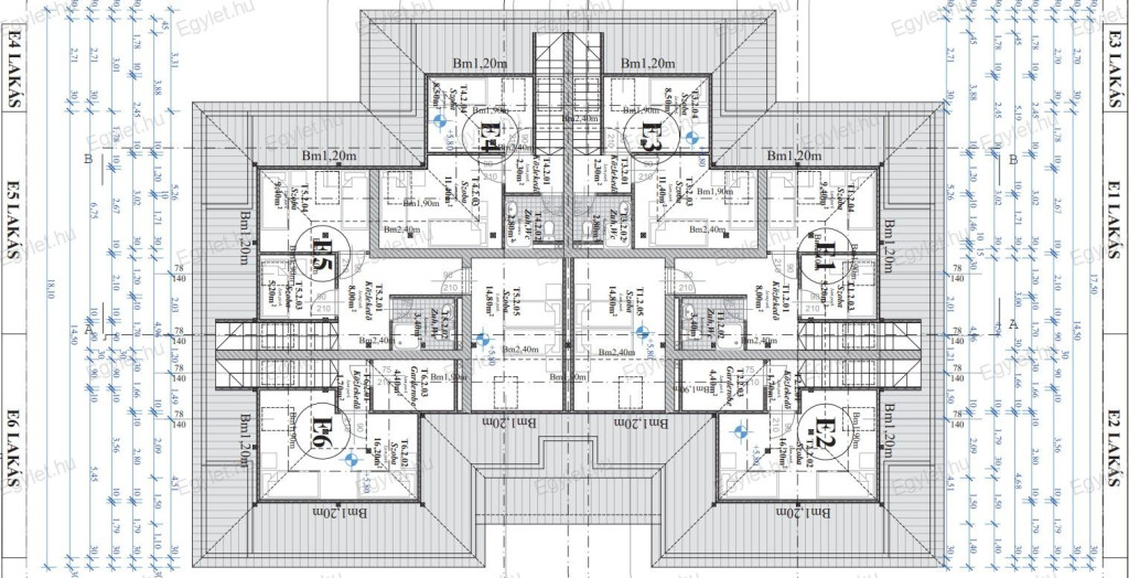
Megvételre kínálunk Borsod-Abaúj-Zemplén megyében, Bogácson, 1500 nm-es építési telket egy 12 lakásos társasház érvényes építési engedélyével együtt.A telek összközműves, tehát megtalálható a víz, villany, gáz, csatorna, és a TERMÁLVÍZ.
Beépítési mód: Szabadon álló
ÉPÍTÉSI ÖVEZET: Lke. 4. (Kertvárosi, lakóházas övezet)
Az újonnan kialakítható építési telek legkisebb területe (m2) 1500 Legnagyobb beépítettség terepszint felett (%) 25
Legnagyobb beépítettség terepszint alatt (%) 25
Legnagyobb szintterületi mutató (épület m2 / telek m2) 0,6 Legnagyobb építménymagasság (m) 6,0
Legkisebb zöldfelületi arány (%) 50
Telek beépítési terheléseinek tervezett paraméterek összefoglalása:
Telek mérete (m2) 1500m2 megfelel
Beépítettség terepszint felett (%) 24,80
Beépítettség terepszint alatt (%) 0,0
Szintterületi mutató (épület m2 / telek m2) 0,53
Építménymagasság (m) 5,87m
Zöldfelületi arány (%) 50,43%
A zöldfelületi arány számításánál figyelembe vettük az utcai kerítést, a gépkocsi behajtót és területen belüli lehetséges járdákat is.
A Bükk-hegység lábánál a Hór és Szoros patak völgyében fekvő Bogács egyre népszerűbb üdülőhely. A település a Bükkaljai Borvidék központja, a térség riolittufába vájt pincéinek borait a fürdő látogatói is megkóstolhatják. Emellett gyönyörködhetnek a Bükki Nemzeti Park egyedülálló természeti kincseiben, madár- és állatvilágában.
A termálfürdő gyógyvízét az 1950-es években tárták fel kőolajkutatás közben. A fürdő 76 fokos hévize közel 500 méter mélyről tör fel, ami 2001-ben kapta meg a hivatalos gyógyvíz minősítést.
Hitel, CSOK igénylésben díjmentes ügyintézéssel állunk rendelkezésére! Nálunk kiválaszthatja az Ön számára legkedvezőbb ajánlatot.
Várom megtisztelő érdeklődésüket.