Szentendre
-
Kínálati ár: 75 000 000 Ft
Kalkulált ár: 190 840 Є -
100 m2
Alapterület
-
833 m2
Telekterület
-
3
Szobaszám
- Alapterület 100 m2
- Telekterület 833 m2
- Szobaszám 3
- Web www.ingatlantajolo.hu/9272162
- Négyzetméter ár 750 000 Ft/m2
- Értékesítés típusa Eladó / Kínál
- Kategória Ház- házrész
- Típus Családi ház
- Állapot Felújítandó
- Építés éve 1985
- Belső szintek nincs megadva
- Tetőtér beépíthető nem
- CSOK igénybe vehető nem
- Kilátás nincs megadva
- Tájolás nincs megadva
- Ingatlan komfort nincs megadva
- Parkolási lehetőség nincs megadva
- Építőanyag nincs megadva
- Bútorozott nincs megadva
- Akadálymentesített nincs megadva
- Erkély, terasz nincs megadva
- Klíma nem
- Szigetelt nem
- Havi rezsiköltség nincs megadva
- Lakásbiztosítás nincs megadva
- Kábelszolgáltató nincs megadva
- Elektromos autó töltés nincs megadva
Energetikai besorolás:
Ez a hirdetés megfelelhet a FIX 3%-os programnak. Tudj meg többet a részletekről itt.
Az ingatlan leírása
Ez a szentendrei ház sem. Csendben áll a Tyúkosdűlőn, és hagyja, hogy a panoráma beszéljen helyette.A telek 833 nm üdülőövezeti, ÜH1 övezeti besorolású , 10%-os beépíthetőséggel. Aszfaltos úton, két irányból is kényelmesen megközelíthető telken egy 50 nm-es, kétszintes hétvégi ház áll – ami egy új kezdet alapja.
Az alsó szint masszív beton és tégla, monolit födémmel, új, háromrétegű nyílászárókkal. A felső szint könnyűszerkezetes faház, gk beállóval, terasszal – azzal a fajta kilátással, amit nem lehet fotón visszaadni. Ott kell állni. Ott kell belélegezni.
A ház téliesített, jelenleg is lakott. Fűtése elektromos panelekkel történik, a melegvizet bojler biztosítja vezérelt áramról. Az ingatlan 1x32A áramforrás és vezetékes víz közművekkel rendelkezik, gáz az utcában. Csatorna nincs, nagy méretű emésztő szolgálja a szennyvízelvezetést. Tehermentes, így gyorsan birtokba vehető.
Ez nem egy „mindent azonnal” ingatlan. Itt még van tér az álmainak. Felújítás, átalakítás? Igen. De éppen ez adja meg a lehetőséget, hogy ne egy kész sablonba költözzön bele, hanem valóban a saját otthonát hozza létre.
A buszmegálló 1300 méterre található – gyalog egy húsz perces séta, autóval három perc. Elég közel a városhoz, elég távol a zajtól.
Ha Ön is úgy érzi, hogy az igazi érték nem mindig a falakban, hanem a fekvésben, a levegőben és a kilátásban rejlik, akkor ezt az ingatlant érdemes személyesen megnézni.
Megtekintés előre egyeztetett időpontban, akár hétvégén is.
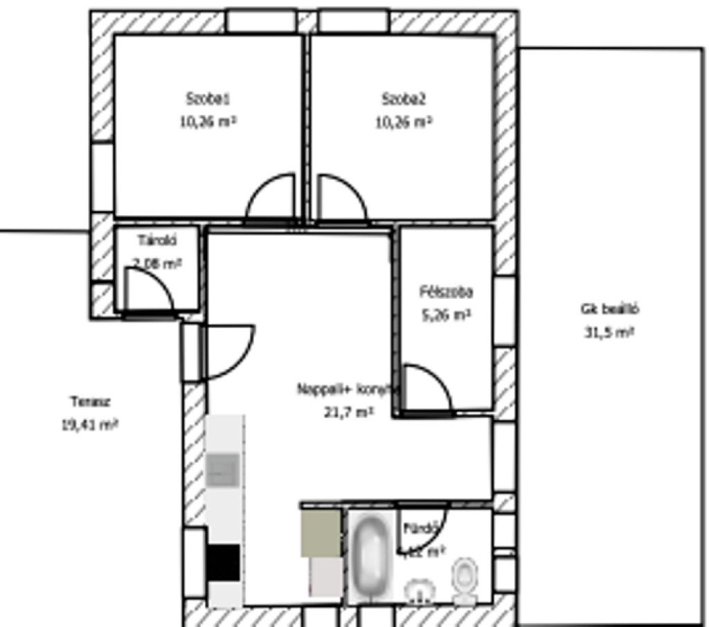
Méretezett alaprajzot kérésre e-mailben küldök.
A vásárláshoz ingyenes hitelügyintézést és ügyvédi tanácsadást biztosítunk.
Várom hívását – lehet, hogy ez a hely már most Önt várja.