Szeged, Rókus, , Rókus
-
Kínálati ár: 117 999 000 Ft
Jelenlegi ár: 117 999 000 Ft
Korábbi ár: 114 999 000 Ft
Kalkulált ár: 300 252 Є114 999 000 Ft
-
100 m2
Alapterület
-
400 m2
Telekterület
-
4
Szobaszám
- Alapterület 100 m2
- Telekterület 400 m2
- Szobaszám 4
- Web www.ingatlantajolo.hu/9170501
- Négyzetméter ár 1 179 990 Ft/m2
- Értékesítés típusa Eladó / Kínál
- Kategória Ház- házrész
- Típus Családi ház
- Állapot Új építésű
- Fűtés Geotermikus
- Építés éve 2026
- Belső szintek nincs megadva
- Tetőtér beépíthető nem
- CSOK igénybe vehető nem
- Kilátás nincs megadva
- Tájolás nincs megadva
- Ingatlan komfort nincs megadva
- Parkolási lehetőség nincs megadva
- Építőanyag nincs megadva
- Bútorozott nincs megadva
- Akadálymentesített nincs megadva
- Erkély, terasz nincs megadva
- Klíma nem
- Szigetelt nem
- Havi rezsiköltség nincs megadva
- Lakásbiztosítás nincs megadva
- Kábelszolgáltató nincs megadva
- Elektromos autó töltés nincs megadva
Energetikai besorolás:
Ez a hirdetés megfelelhet a FIX 3%-os programnak. Tudj meg többet a részletekről itt.
Az ingatlan leírása
Home&People azonosító: #22805
Országh Gábor Vezető referens
AMENNYIBEN KOLLÉGÁNK ELFOGLALT, KÉRJEN VISSZAHÍVÁST A SMS-BEN A es TELEFONSZÁMON AZ INGATANAZONOSÍTÓ MEGJELÖLÉSÉVEL!
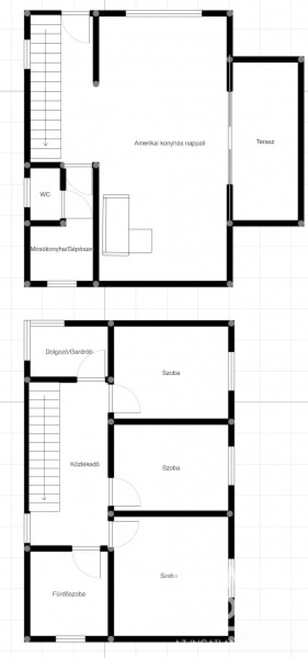
ELADÓ CSALÁDI HÁZ, SZEGED!
Eladásra kínálom Szegeden az alábbi paraméterekkel rendelkező új építésű ingatlant:
Lokáció: Szeged kertváros
Elosztása:
Földszint: előtér, nappali, konyha, wc, szoba/mosókonyha, terasz
Emelet: 3 db hálószoba, dolgozószoba/gardrób, fürdőszoba, wc, közlekedő
Telek: cc. 400 m2
Kulcsrakész átadás: ‘26 III. Negyedév
Falazat: tégla
Hőszivattyú /padlófűtés/
Választható belső design
Minőségi kivitelezés, magas műszaki tartalom, megtekinthető referencia házak
Cégünk az ügyfeleink részére ingyenesen vállalja, a megegyezés sikeres lebonyolítását, jogi tanácsadást, illetve teljeskörü CSOK és hitel ügyintézést!
Kérje ingyenes tájékoztatásunkat telefonon, vagy személyesen irodánkban a Bécsi krt. 18. szám alatt!
Amennyiben felkeltettem érdeklődését, kérem hívjon bizalommal.
A kínálatában található összes ingatlannal kapcsolatban felvilágosítást tudunk nyújtani, a Home and People Ingatlanügynökség szegedi irodájában a Bécsi krt. 18. szám alatt.
Szolgáltatásaink vevőink részére díjmentesek.
Irányár: 117.999.000 Ft
H&P azonosító: #22805