Szarvas
-
Kínálati ár: 33 000 000 Ft
Jelenlegi ár: 33 000 000 Ft
Korábbi ár: 29 900 000 Ft
Kalkulált ár: 83 969 Є29 900 000 Ft
-
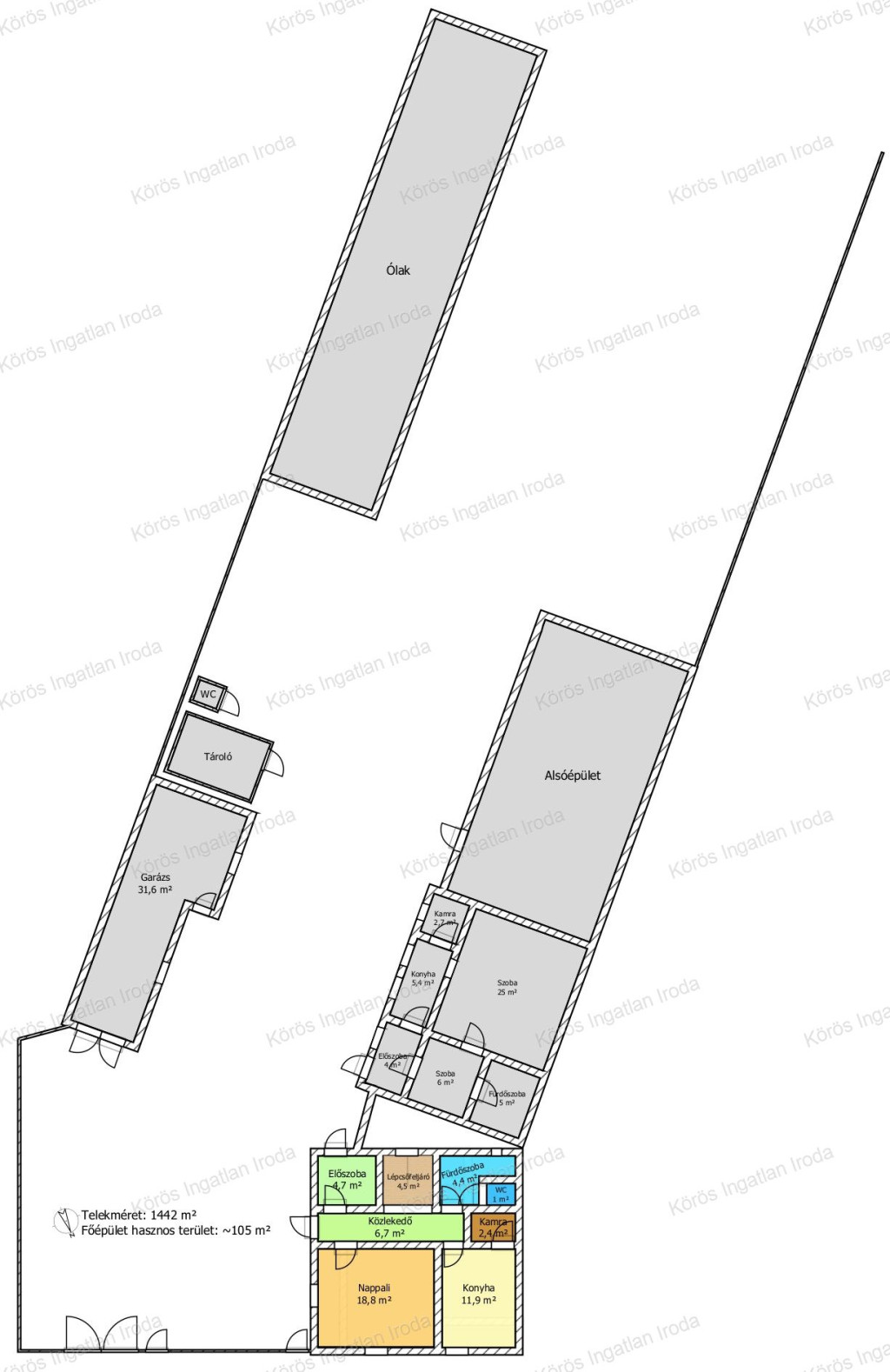
130 m2
Alapterület
-
1 442 m2
Telekterület
-
1
Szobaszám
- Alapterület 130 m2
- Telekterület 1 442 m2
- Szobaszám 1
- Web www.ingatlantajolo.hu/9286697
- Négyzetméter ár 253 846 Ft/m2
- Értékesítés típusa Eladó / Kínál
- Kategória Ház- házrész
- Típus Családi ház
- Állapot Átlagos
- Fűtés Gáz (cirkó)
- Építés éve 1982
- Belső szintek nincs megadva
- Tetőtér beépíthető nincs megadva
- CSOK igénybe vehető nincs megadva
- Kilátás nincs megadva
- Tájolás nincs megadva
- Ingatlan komfort nincs megadva
- Parkolási lehetőség nincs megadva
- Építőanyag nincs megadva
- Bútorozott nincs megadva
- Akadálymentesített nincs megadva
- Erkély, terasz nincs megadva
- Klíma nincs megadva
- Szigetelt nincs megadva
- Havi rezsiköltség nincs megadva
- Lakásbiztosítás nincs megadva
- Kábelszolgáltató nincs megadva
- Elektromos autó töltés nincs megadva
Energetikai besorolás:
Ez a hirdetés megfelelhet a FIX 3%-os programnak. Tudj meg többet a részletekről itt.
Az ingatlan leírása
Szarvas város kiemelkedő túrisztikai célpont, a Kákafoki holtág bal partján helyezkedik el. A Magyar Királyság (történelmi nagy Magyarország) földrajzi középpontjában ennek tiszteletére emlékművet állítottak, A négyszárnyú vitorlával ellátott malmot emlékhellyé nyilvánították, mely a trianoni békeszerződésben rögzített részekre szakadásra emlékeztet.A városközpont É-Nyugati szélén eladásra kínálunk egy kétszintes + tetőtérbeépítéses lehetőséggel kialakított családi házat!
Az ingatlan téglából épült, másfél méter mély beton alapzatra. Statikailag kifogástalan állapoú, stabil épületszerkezettel. Korának megfelelő állapotú, egyéni igényeknek kialakítható, korszerűsítést igénylő épület.
Összközműves, duplakomfortos. Fűtése gáz ,-és vegyes cirkó. Nyílászárói dupla szárnyú egyrétegű üvegezéssel ellátott faablakok. Az emeleti két nagyobb méretű szoba erkéllyel rendelkezik. Mindkét szinten a fürdő és a wc külön helyiségben kapott helyet. Alsó szinten tusolós, a felső szinten kádas kialakítással épült a vizesblokk. A szintek közti feljáró kialakítása kényelmes, stabil vasvázon, keményfával borított lépcsőzet.
A szobák halszálkás faparkettái kifogástalan állapotúak.
Az ingatlan három fázissal ellátott, összesen 114 Amper álll rendelkezésre.
A telek mérete 1440m2, melyen még egy külön lakrész kialakítható. Ebben az épületben is a víz, és a villany bevezetésre került. Az épület hátsó része, mely alatt pince van, elbontandó.
A nagykapuval szemben álló garázs téglából épült, egy autó kényelmesen elfér benne. A lábszomszédig nyúló lábas jószág tartására alkalmas épület szintén téglából épült, betonozott aljzattal, kifutóval kialakítva.
Összegezve az ingatlant: jó helyen, könnyen megközelíthető aszfaltozott út mellett elhelyezkedő, egyéni ízlésnek, biztonságnak megfelelő, jól alakítható!
Az ára: 29 900 000FT
Per,-teher,-igény mentes!
Szarvas város a Hármas-Körös Kákafoki-holtága, továbbá a Mini Magyarország Makettpark, az Arborétum, a Szarvasi Vizi Színház, és még számos látnivaló fogadja az idelátogató turistákat. Két felsőfokú intézmény üzemel városunkban, Gál Ferenc Egyetem Pedagógiai Kar, és a Szent István Campus (MATE). Budapest-Kecskemét-Gyula vonalán, a 44-es főútról, vagy az M44-es autóútról közvetlen lehajtóval rendelkezik.
Az ingatlanról, a hirdetésekben szereplő információk a megbízótól kapott adatok alapján készítettük, irodánk azokért felelősséget nem vállal!.