Siklós
-
Kínálati ár: 99 900 000 Ft
Kalkulált ár: 278 273 Є -
108 m2
Alapterület
-
901 m2
Telekterület
-
4
Szobaszám
- Alapterület 108 m2
- Telekterület 901 m2
- Szobaszám 4
- Web www.ingatlantajolo.hu/9276878
- Négyzetméter ár 925 000 Ft/m2
- Értékesítés típusa Eladó / Kínál
- Kategória Ház- házrész
- Típus Családi ház
- Állapot Felújított
- Fűtés Egyéb fűtés
- Belső szintek nincs megadva
- Tetőtér beépíthető nem
- CSOK igénybe vehető nem
- Kilátás nincs megadva
- Tájolás nincs megadva
- Ingatlan komfort nincs megadva
- Parkolási lehetőség nincs megadva
- Építőanyag nincs megadva
- Bútorozott nincs megadva
- Akadálymentesített nincs megadva
- Erkély, terasz nincs megadva
- Klíma nem
- Szigetelt nem
- Havi rezsiköltség nincs megadva
- Lakásbiztosítás nincs megadva
- Kábelszolgáltató nincs megadva
- Elektromos autó töltés nincs megadva
Energetikai besorolás:
Ez a hirdetés megfelelhet a FIX 3%-os programnak. Tudj meg többet a részletekről itt.
Az ingatlan leírása
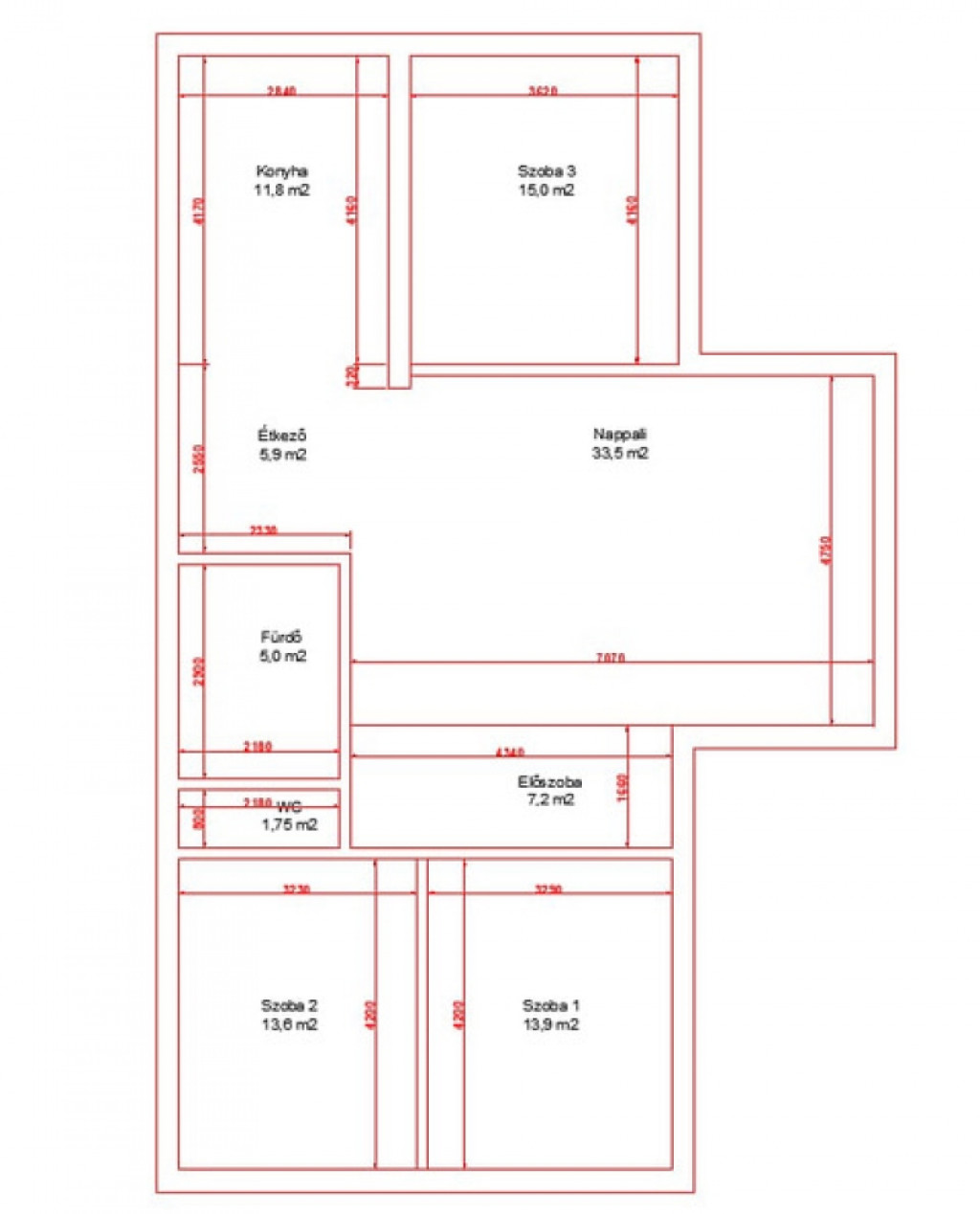
Eladó Máriagyűd egyik rendezett utcájában egy 1996-ban épült, folyamatosan karbantartott és modernizált családi ház.Az ingatlan 108 m?, 3 szoba, külön WC és fürdőszoba, valamint egy tágas amerikai konyhás nappali található benne.
Az épület Porotherm 38-as téglából készült, amely teljes körű homlokzati, lábazati és födém hőszigetelést is kapott, így energetikailag rendkívül stabil. Külön értéknövelő tényező a beton födém, amelynek köszönhetően a tetőtér beépíthető, így a lakótér a jövőben tetszés szerint bővíthető.
Az ingatlan fenntartási költségei minimálisak, köszönhetően az 5 kW-os napelemrendszernek, amely a teljes áramfogyasztást fedezi. A rendszer 7,5 kW-ig bővíthető, és ami a legfontosabb: még 8 évig kedvező szaldó elszámolásban marad.
A fűtési rendszer több lábon áll, gázkazánnal és vegyes tüzelésű kazánnal is üzemeltethető, a helyiségekben komfortos padlófűtéssel. A gépészeti kialakítás lehetővé teszi a hőszivattyús fűtésre való egyszerű átállást is. A ház hűtéséről és kiegészítő fűtéséről klímák gondoskodnak.
A telken egy 32 m?-es tégla melléképület is található, amelyben egy 22 m?-es szerelőaknás garázs, valamint egy 10 m?-es tároló és kazánház kapott helyet.
Az épület mögött egy statikailag előkészített, betonozott terület található, amely ideális medence elhelyezésére.
Az ingatlan (beleértve az összes nyílászárót és a garázst is) teljes körű, távfelügyeletre bekötött riasztórendszerrel védett.
Ez a kiváló műszaki állapotú ház ideális választás azoknak, akik értékállóságot és alacsony rezsiköltségeket keresnek.
Amennyiben felkeltette érdeklődését, keressen bizalommal!