Siklós
-
Kínálati ár: 40 900 000 Ft
Kalkulált ár: 113 928 Є -
120 m2
Alapterület
-
728 m2
Telekterület
-
4 + 1 fél
Szobaszám
- Alapterület 120 m2
- Telekterület 728 m2
- Szobaszám 4 + 1 fél
- Web www.ingatlantajolo.hu/9274807
- Négyzetméter ár 340 833 Ft/m2
- Értékesítés típusa Eladó / Kínál
- Kategória Ház- házrész
- Típus Családi ház
- Állapot Felújítandó
- Fűtés Egyéb fűtés
- Belső szintek nincs megadva
- Tetőtér beépíthető nem
- CSOK igénybe vehető nem
- Kilátás nincs megadva
- Tájolás nincs megadva
- Ingatlan komfort nincs megadva
- Parkolási lehetőség nincs megadva
- Építőanyag nincs megadva
- Bútorozott nincs megadva
- Akadálymentesített nincs megadva
- Erkély, terasz nincs megadva
- Klíma nem
- Szigetelt nem
- Havi rezsiköltség nincs megadva
- Lakásbiztosítás nincs megadva
- Kábelszolgáltató nincs megadva
- Elektromos autó töltés nincs megadva
Energetikai besorolás:
Ez a hirdetés megfelelhet a FIX 3%-os programnak. Tudj meg többet a részletekről itt.
Az ingatlan leírása
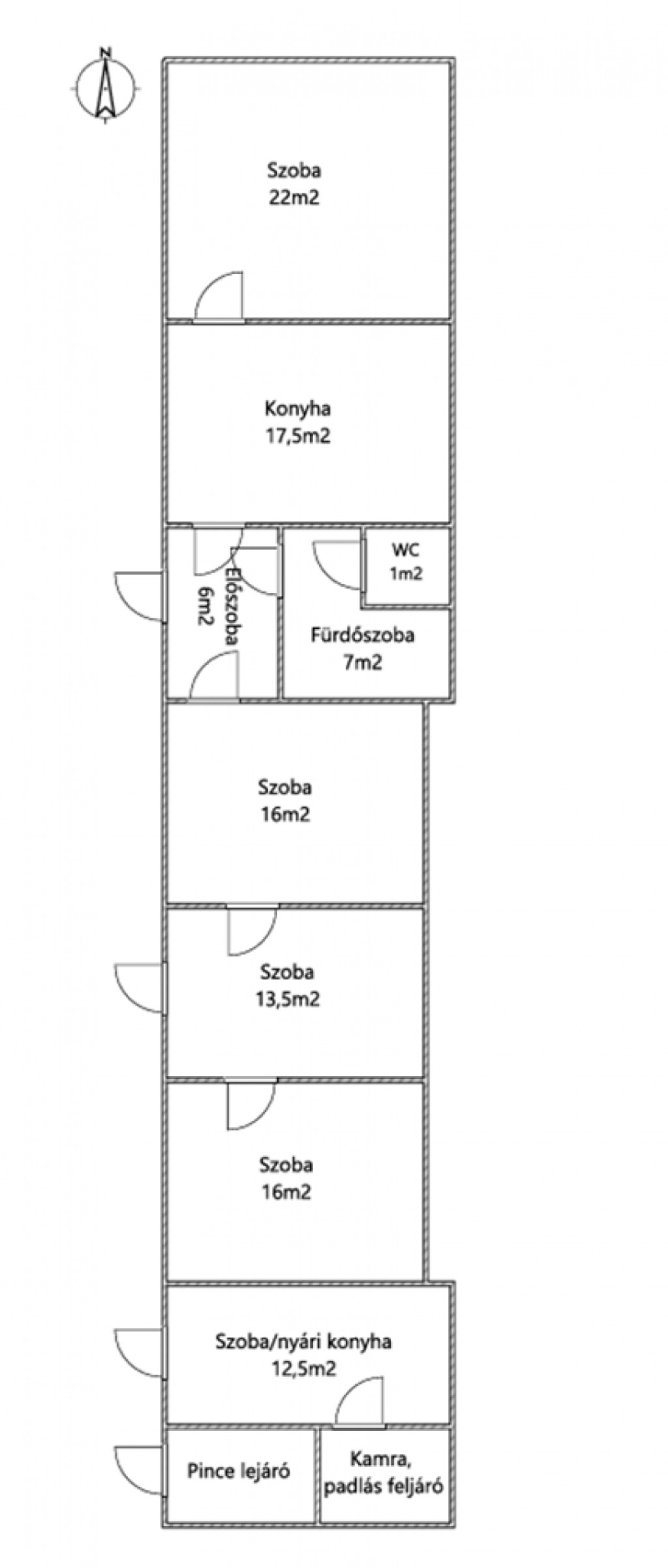
Eladásra kínálok Siklóson, a Kanizsai Dorottya utcában, egy felújítandó, 120m2 alapterületű, 4 szobás családi házat, garázzsal az udvarban.A családi házról:
Az ingatlan vegyes falazatú, stabil szerkezetű ház. Szobái alapvetően egybe nyílóak, de kívülről, kulcsos ajtón keresztül is megközelíthetőek. A ház első fele lakható, konyha-étkező, fürdőszoba és két szobája azonnal költözhető. A ház hátsó fele felújításra szorul. Ajánlott: festés, hőszigetelés, aljzatkiegyenlítés, új padló. Rengeteg lehetőség, akár nyári konyha kialakítása is alkalmas. Az ingatlanhoz tartozik pince és garázs is. A hátsó udvarban pedig egy kisebb melléképület kapott helyet.
Siklós kedvelt részén, csendes környéken, mégis közel a központhoz található. Boltok, parkok, autóbusz állomás 10 perc sétára az ingatlantól.
Különösen ajánlom nagy családosoknak, fiatal pároknak, nagyobb társaságoknak.
Ha felkeltette érdeklődését, keressen bizalommal!