Perőcsény, Perőcsény
-
Kínálati ár: 54 900 000 Ft
Kalkulált ár: 151 240 Є -
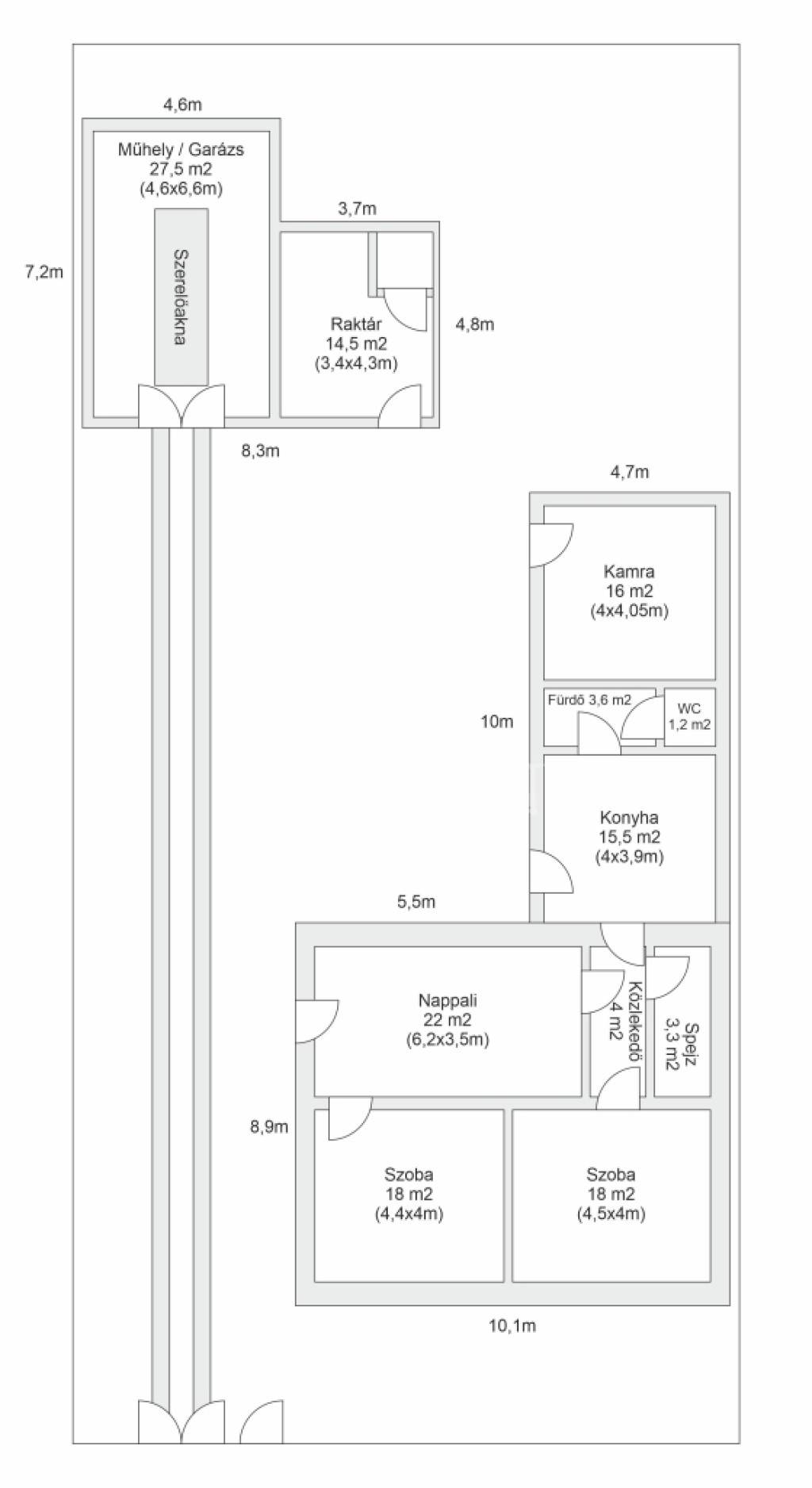
135 m2
Alapterület
-
2 314 m2
Telekterület
-
3 + 1 fél
Szobaszám
- Alapterület 135 m2
- Telekterület 2 314 m2
- Szobaszám 3 + 1 fél
- Web www.ingatlantajolo.hu/9327537
- Négyzetméter ár 406 667 Ft/m2
- Értékesítés típusa Eladó / Kínál
- Kategória Ház- házrész
- Típus Családi ház
- Állapot Átlagos
- Fűtés Gáz (konvektor)
- Belső szintek nincs megadva
- Tetőtér beépíthető nem
- CSOK igénybe vehető nem
- Kilátás nincs megadva
- Tájolás nincs megadva
- Ingatlan komfort nincs megadva
- Parkolási lehetőség nincs megadva
- Építőanyag nincs megadva
- Bútorozott nincs megadva
- Akadálymentesített nincs megadva
- Erkély, terasz nincs megadva
- Klíma nem
- Szigetelt nem
- Havi rezsiköltség nincs megadva
- Lakásbiztosítás nincs megadva
- Kábelszolgáltató nincs megadva
- Elektromos autó töltés nincs megadva
Energetikai besorolás:
Ez a hirdetés megfelelhet a FIX 3%-os programnak. Tudj meg többet a részletekről itt.
Az ingatlan leírása
Remek ajánlat a Börzsöny ölelésében!Budapesttől alig egy órára, Pest megye egyik legszebb szegletében, a festői zsákfaluban, Perőcsényben kínálunk eladásra egy 135 m²-es, bővíthető, jó állapotú, bájos, 3,5 szobás családi házat.
Ez a ház nemcsak egy ingatlan, hanem egy menedék a természet szívében:
ahol a mókusok ébresztenek,
ahol a kertben borospince várja a gondoskodó kezeket.
A ház kiváló állapotnak örvend.
– A tetőt felújították
– minőségi nyílászárókat építettek be.
– 2 hangulatos cserépkályha és konvektorok gondoskodnak a melegről.
A 2314 m²-es, sík telek bőséges teret ad kertészkedéshez, gazdálkodáshoz vagy egyszerűen a pihenéshez.
Innen PAZAR KILÁTÁS nyílik környező hegyekre.
- tágas, jól kihasználható terület
- gyümölcsfák (alma, körte, meggy, őszibarack, sárgabarack, dió, szilva)
- málna, ribizli, egres
- állatok (akár lovak) tartására is megfelelő méret.
A kertben szerelőaknás garázs, nyári konyha gáztűzhellyel, fásszín, füstölő, állattartásra alkalmas épületek lettek kialakítva.
Perőcsény maga a romantika: ősi település a Börzsöny ölelésében a túraösvények minden nap új kalandot ígérnek.
A falut barátságos emberek lakják, a közbiztonság példás, a levegő tiszta, a csillagos ég szinte kézzel fogható.
Kiemelkedő ár-érték arány!
Támogatások: Falusi CSOK és Otthon Start hitel igényelhető.
Legyen szó állandó otthonról, nyaralóról vagy kulcsosházról – ez a ház remek választás.
Hívjon bizalommal – hétvégén is örömmel állok rendelkezésére!
Bankfüggetlen hitelcentrumunk minden elérhető bank és hitelintézet ajánlatát versenyezteti az Ön kedvéért, ráadásul díjmentesen. Önnek nincs más dolga, mint elbeszélgetni munkatársunkkal, aki a hallott információk alapján versenyre hívja a bankokat, hogy Ön hosszú távon is a legjobb konstrukciót kaphassa. A legjobb ajánlatokból végül Ön választhatja ki a nyertest. Munkatársaink sokéves szakmai tapasztalattal várják Önt, előre egyeztetve akár a normál munkaidő után is. ...TOVÁBBI, TÖBBEZRES INGATLAN KÍNÁLAT: - GDN azonosító: 395339 Kattintson ide a hirdető iroda weboldalának megtekintéséhez!