Nyékládháza
Ez a hirdetés lehet, hogy már nem aktuális. A hirdetés nem aktív.
Hasonló ingatlanokat találtunk itt: Eladó családi ház Nyékládháza
Hasonló ingatlanokat találtunk itt: Eladó családi ház Nyékládháza
-
140 m2
Alapterület
-
1 771 m2
Telekterület
-
4 + 1 fél
Szobaszám
- Alapterület 140 m2
- Telekterület 1 771 m2
- Szobaszám 4 + 1 fél
- Web www.ingatlantajolo.hu/9123318
- Négyzetméter ár 285 000 Ft/m2
- Értékesítés típusa Eladó / Kínál
- Kategória Ház- házrész
- Típus Családi ház
- Állapot Felújítandó
- Építés éve 1985
- Belső szintek nincs megadva
- Tetőtér beépíthető nem
- CSOK igénybe vehető nem
- Kilátás nincs megadva
- Tájolás nincs megadva
- Ingatlan komfort nincs megadva
- Parkolási lehetőség nincs megadva
- Építőanyag nincs megadva
- Bútorozott nincs megadva
- Akadálymentesített nincs megadva
- Erkély, terasz nincs megadva
- Klíma nem
- Szigetelt nem
- Havi rezsiköltség nincs megadva
- Lakásbiztosítás nincs megadva
- Kábelszolgáltató nincs megadva
- Elektromos autó töltés nincs megadva
Energetikai besorolás:
A+++
A++
A+
A
B
C
D
E
F
G
H
I
Az ingatlan leírása
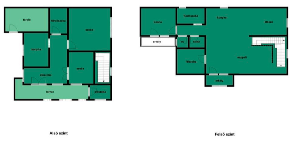
Eladó két szintes, két generáció számára is ideális családi ház Nyékládházán!Nyékládháza kedvelt, ládházi oldalán kínálok megvásárlásra egy 140 m²-es, két szintes, külön bejárattal rendelkező családi házat, amely kiváló lehetőség akár több generáció együttélésére is.
Az ingatlan szilikát falazatú, tetőzetét jó állapotú, minőségi cserép borítja.
Az alsó szint felújítást igényel, míg a felső szint jó állapotú, azonnal lakható.
Elrendezése:
Alsó szint: tágas előszoba, 2 szoba, folyosó, konyha, fürdőszoba
Felső szint: előszoba, nagy méretű amerikai konyhás nappali, szoba, félszoba, folyosó, fürdőszoba, külön WC, 2 erkély
A fűtés gázkazánnal és vegyes tüzelésű kazánnal is megoldható, ráadásul szintenként külön szabályozható, ami gazdaságos üzemeltetést biztosít.
A 1771 m²-es telek igazi vidéki nyugalmat kínál:
melléképületek, tárolók, garázs, fedett beálló, filagória és szalonnasütő is helyet kapott. A hátsó kert sík, füvesített, gyümölcsfákkal – tökéletes pihenéshez, kertészkedéshez vagy családi összejövetelekhez.
Nyékládháza egy folyamatosan fejlődő, barátságos kisváros, ahol a nyugodt kertvárosi élet és a jó infrastruktúra találkozik.
Óvoda, orvosi rendelő, üzletek, buszmegálló és vasútállomás mindössze 10 perc sétával elérhetők.
Elhelyezkedése kiváló:
Miskolc: 10 km
Tiszaújváros: 20 km
Autópálya-felhajtó néhány percen belül elérhető
Ajánlom mindazoknak, akik csendes, zöld környezetben szeretnének élni, mégis fontos számukra Miskolc vagy Tiszaújváros közelsége – legyen szó családról, több generációról vagy hosszú távú befektetésről.
Vevőink részére ingyenes banksemleges hiteltanácsadás és ügyintézés biztosított!
Ha párhuzamosan szeretné eladni ingatlanát, de nem tudja, hol kezdje, hívjon bizalommal!