Kőszegszerdahely, Kőszegszerdahely
-
Kínálati ár: 79 900 000 Ft
Jelenlegi ár: 79 900 000 Ft
Korábbi ár: 69 900 000 Ft
Kalkulált ár: 220 110 Є69 900 000 Ft
-
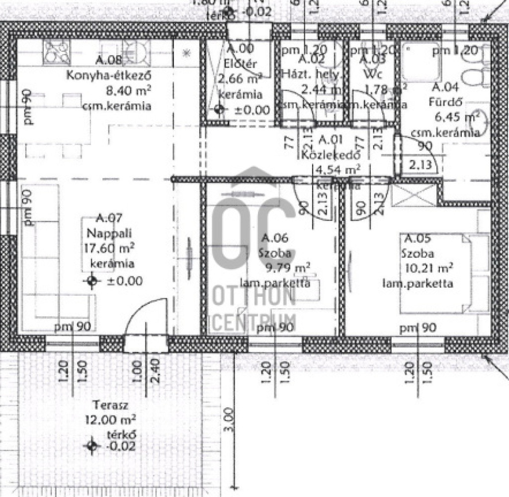
77 m2
Alapterület
-
499 m2
Telekterület
-
3
Szobaszám
- Alapterület 77 m2
- Telekterület 499 m2
- Szobaszám 3
- Web www.ingatlantajolo.hu/9251655
- Négyzetméter ár 1 037 662 Ft/m2
- Értékesítés típusa Eladó / Kínál
- Kategória Ház- házrész
- Típus Családi ház
- Építés éve 2023
- Belső szintek nincs megadva
- Tetőtér beépíthető nem
- CSOK igénybe vehető nem
- Kilátás nincs megadva
- Tájolás nincs megadva
- Ingatlan komfort nincs megadva
- Parkolási lehetőség nincs megadva
- Építőanyag nincs megadva
- Bútorozott nincs megadva
- Akadálymentesített nincs megadva
- Erkély, terasz nincs megadva
- Klíma nem
- Szigetelt nem
- Havi rezsiköltség nincs megadva
- Lakásbiztosítás nincs megadva
- Kábelszolgáltató nincs megadva
- Elektromos autó töltés nincs megadva
Energetikai besorolás:
Ez a hirdetés megfelelhet a FIX 3%-os programnak. Tudj meg többet a részletekről itt.
Az ingatlan leírása
Fedezze fel álmai otthonát Vas vármegye szívében, Kőszegszerdahely csendes, mégis élénk környezetében! Ez a kivételes, 2023-ban épült fém vázas könnyűszerkezetes ingatlan tökéletes választás fiatal felnőttek számára, akik egy kényelmes és modern otthonra vágynak, vagy akár befektetési céllal keresnek lehetőséget. A ház alapterülete 77 nm, amely 2 háló szobát kínál, ideális teret biztosítva a mindennapi élethez. Az amerikai konyhás nappali kellő teret ad egy családi összejövetelekre. Az ingatlan állapota jó, a prémium kivitelezés pedig garantálja a hosszú távú elégedettséget. A 499 nm-es telek rendezett kerttel rendelkezik, ahol a természet közelsége és a vízparti élmények garantáltak. A 12 nm-es terasz tökéletes helyszín a pihenésre, egy pohár bor mellett eltöltött estékre, miközben a környék panorámáját élvezheti. Az ingatlan fűtése elektromos infrafilm padlófűtés rendszerrel megoldott, amely környezetbarát megoldást is kínál. Nyílászárók hő és hangszigeteltek, elektromos redőnnyel szúnyoghálóval szereltek. Az ingatlan tehermentes, így azonnal birtokba vehető, és Falusi Csok kompatibilis, ami lehetőséget biztosít a kedvezményes állami támogatások igénybevételére. Kőszegszerdahely nem csupán egy nyugodt település, hanem kiváló közlekedési lehetőségekkel is rendelkezik. A közeli városok és az osztrák határ könnyen elérhetők autóval, tömegközlekedéssel. A környék biztonságos, csendes, ideális választás családok, fiatal párok és idősebbek számára egyaránt. Ne habozzon, ha bármilyen kérdése van az ingatlannal kapcsolatban, bizalommal kereshet minket! Szívesen válaszolunk minden felmerülő kérdésére, és segítünk Önnek abban, hogy megtalálja a tökéletes otthont vagy befektetési lehetőséget. Kérjük, ne késlekedjen, hiszen az ilyen lehetőségek gyorsan elkelnek!Energetikai tanúsítvány beszerzése folyamatban!