Királyszentistván, Rózsadomb utca
-
Kínálati ár: 99 000 000 Ft
Jelenlegi ár: 99 000 000 Ft
Korábbi ár: 95 100 000 Ft
Kalkulált ár: 251 908 Є95 100 000 Ft
-
134 m2
Alapterület
-
417 m2
Telekterület
-
4
Szobaszám
- Alapterület 134 m2
- Telekterület 417 m2
- Szobaszám 4
- Web www.ingatlantajolo.hu/9278230
- Négyzetméter ár 738 806 Ft/m2
- Értékesítés típusa Eladó / Kínál
- Kategória Ház- házrész
- Típus Családi ház
- Állapot Új építésű
- Szintek száma 2
- Építés éve 2026
- Belső szintek 2
- Tetőtér beépíthető nincs megadva
- CSOK igénybe vehető nincs megadva
- Kilátás nincs megadva
- Tájolás nincs megadva
- Ingatlan komfort nincs megadva
- Parkolási lehetőség nincs megadva
- Építőanyag nincs megadva
- Bútorozott nincs megadva
- Akadálymentesített nincs megadva
- Erkély, terasz nincs megadva
- Klíma nincs megadva
- Szigetelt nincs megadva
- Havi rezsiköltség nincs megadva
- Lakásbiztosítás nincs megadva
- Kábelszolgáltató nincs megadva
- Elektromos autó töltés nincs megadva
Energetikai besorolás:
Ez a hirdetés megfelelhet a FIX 3%-os programnak. Tudj meg többet a részletekről itt.
Az ingatlan leírása
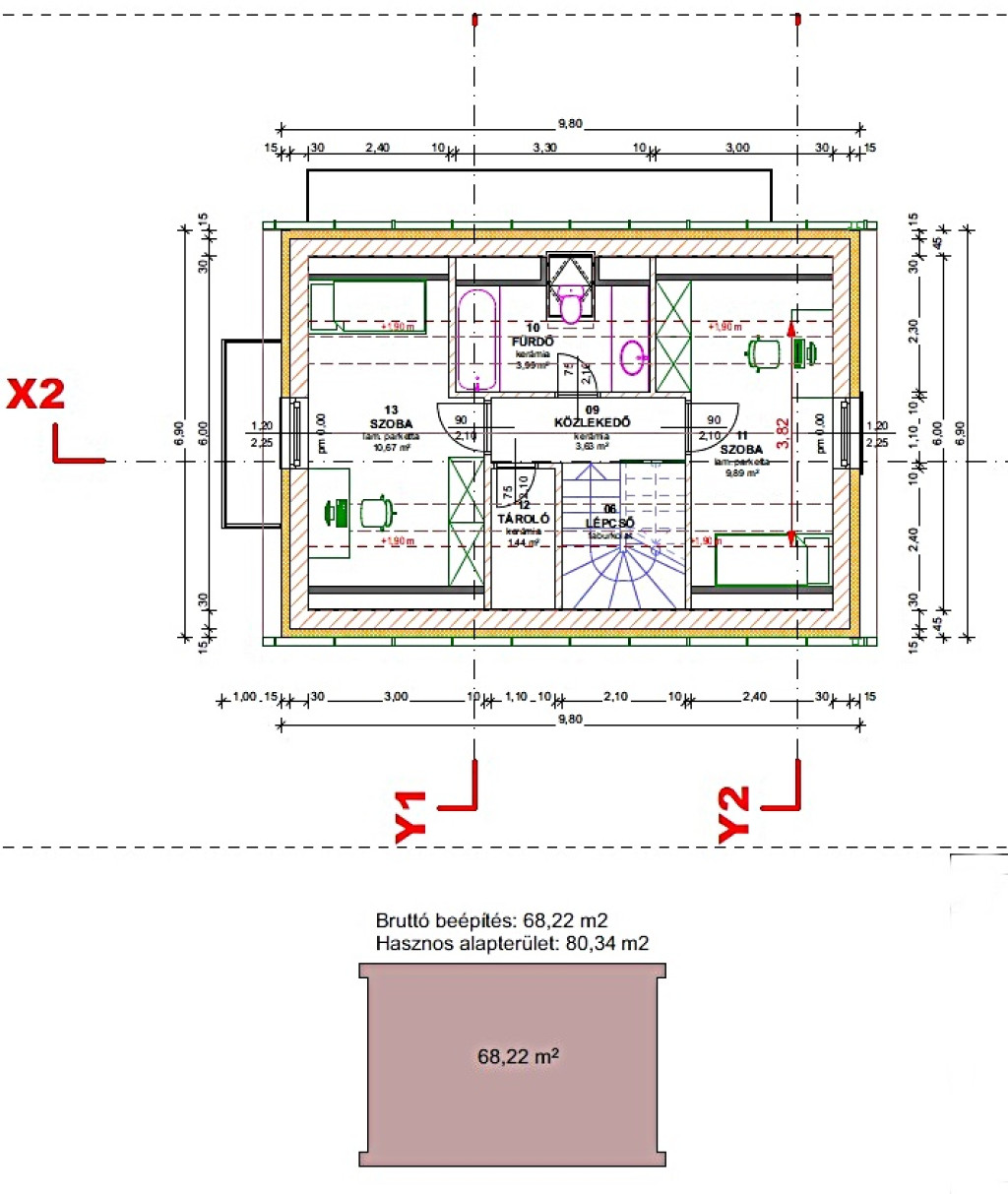
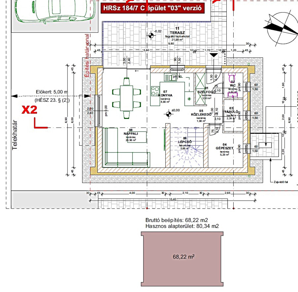
ÚJ ÉPÍTÉSŰ, ENERGIA TAKARÉKOS, tetőteres családi ház eladó Királyszentistvánon.A MODERN, 80,34 m2-es hasznos alapterületű, bruttó 134,34 nm-es, tetőtér beépítéses családi ház külön utcáról megközelíthető, 417 m²-es telken valósul meg. Kulcsrakész átadása 2027. tavaszra várható. A kiváló tájolású telekről körbe tekintve POMPÁS PANORÁMÁBAN gyönyörködhetünk a bakonyi dombokra és a Balatonra egyaránt.
A házba belépve egy kényelmes méretű előszobába érkezünk. Az előtérből nyílik egy külön WC kézmosóval. Jobbra egy IGAZÁN TÁGAS NAPPALI KONYHA-ÉTKEZŐVEL egy légtérben, ahonnan közvetlenül léphetünk ki a TÁGAS, 22 M2-NYI, NYUGATI FEKVÉSŰ, BURKOLT TERASZRA. A konyhával szemben a tőtérbe vezető lépcső érhető el. A közlekedő végéből nyílik egy tároló helyiség, mellette a háztartási helyiség, melyben a gépészet kap helyet.
A tetőtérbe felérve jobbra az egyik, VALÓBAN TÁGAS SZOBA van, balra pedig a másik JÓL BÚTOROZHATÓ, SZINTÉN KÉNYELMESEN NAGY SZOBA található. A baloldali szobából közvetlenül léphetünk ki a hozzá tartozó ERKÉLYRE, ahonnan kitekintve még PAZARABB PANORÁMÁBAN gyönyörködhetünk. A két szoba között egy fürdőszoba WC-vel és egy GARDRÓBKÉNT is használható tároló helyiség van.
Az ENERGIATAKARÉKOS HÁZ korszerű műszaki tartalommal és szerkezettel épül:
- 30 cm-es Ytong falazat
- 15 cm-es homlokzati hőszigetelés
- 30 cm-es kőzetgyapot födémszigetelés
- 15 cm-es hőszigetelés az aljzatban
- Cserép fedésű tető
- Hőszivattyús padlófűtésű rendszer
- Háromrétegű műanyag nyílászárók, a redőnyökhöz elektromos előkészítéssel
- Hideg- és meleg burkolatok egyedi kiválasztási lehetőséggel
- (meleg burkolat 8.000 Ft/m², hidegburkolat 11.000 Ft/m²)
- Beltéri ajtók 70.000ft-/db áron szerepelnek az árban
- tartalmazza az 5kW teljesítményű, sziget rendszerű napelem rendszert
- 1 db 3,5kw hűtő-fűtő klíma
Igény esetén lehetőség van garázs vagy féltető megvalósítására is, illetve a belső térkialakítás személyre szabására külön megállapodás alapján.
HIBÁTLAN VÁLASZTÁS ez a RENDKÍVÜL ALACSONY REZSIVEL rendelkező, modern családi otthon.
HÍVJON, hogy Öné legyen ez a remek adottságú ingatlan!
A kivitelező két évtizedes építési tapasztalattal rendelkezik, így megbízható, rugalmas és magas minőségű kivitelezést biztosít.
A vásárláshoz CSOK PLUSZ, FALUSI CSOK, ILLETÉKMENTESSÉG, OTTHON START HITEL igényelhető.
Bankfüggetlen INGYENES hitelügyintézés, INGYENES CSOK ügyintézés. Ön csak kitalálja, mire keres megoldást és nyugodtan hátra dőlhet, a többit elintézzük.