Hévíz, Hévíz
-
Kínálati ár: 92 266 650 Ft
Kalkulált ár: 254 880 Є -
75 m2
Alapterület
-
174 m2
Telekterület
-
4
Szobaszám
- Alapterület 75 m2
- Telekterület 174 m2
- Szobaszám 4
- Web www.ingatlantajolo.hu/9322046
- Négyzetméter ár 1 230 222 Ft/m2
- Értékesítés típusa Eladó / Kínál
- Kategória Ház- házrész
- Típus Családi ház
- Építés éve 2023
- Belső szintek nincs megadva
- Tetőtér beépíthető nem
- CSOK igénybe vehető nem
- Kilátás nincs megadva
- Tájolás nincs megadva
- Ingatlan komfort nincs megadva
- Parkolási lehetőség nincs megadva
- Építőanyag nincs megadva
- Bútorozott nincs megadva
- Akadálymentesített nincs megadva
- Erkély, terasz nincs megadva
- Klíma nem
- Szigetelt nem
- Havi rezsiköltség nincs megadva
- Lakásbiztosítás nincs megadva
- Kábelszolgáltató nincs megadva
- Elektromos autó töltés nincs megadva
Energetikai besorolás:
Ez a hirdetés megfelelhet a FIX 3%-os programnak. Tudj meg többet a részletekről itt.
Az ingatlan leírása
Panorámás, modern sorházi lakás Hévíz csendes zöldövezetében – napelemmel, hőszivattyúval!Legyen Ön a háromlakásos sorház első otthonának boldog tulajdonosa!
Ez az ízlésesen kialakított, azonnal költözhető, egyszintes lakás Hévíz nyugodt, zöldövezeti részén található, délkeleti fekvésű, dombos panorámás telken.
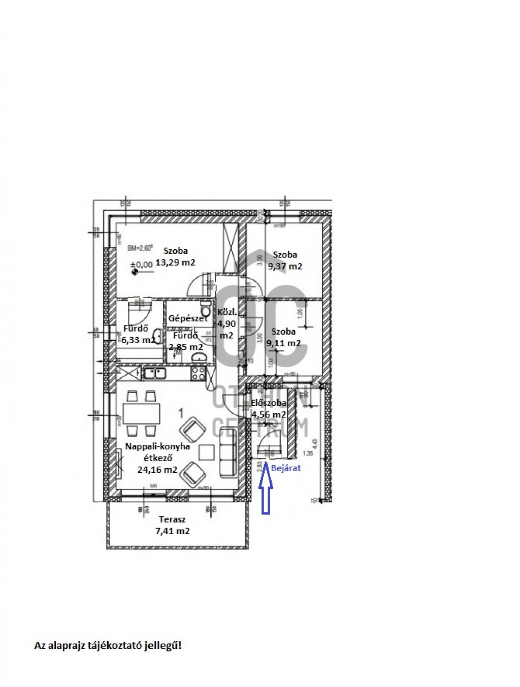
A 75 m² hasznos alapterületű otthon praktikus elrendezésének köszönhetően ideális választás családok számára is.
Helyiségek:
-előszoba
-tágas nappali – étkező – konyha egy légtérben
-háztartási helyiség
-közlekedő
-3 hálószoba
-zuhanyzós fürdőszoba WC-vel
-kádas fürdőszoba WC-vel
A világos nappaliból közvetlen kertkapcsolatos, épített terasz nyílik, amelyhez gondozott zöldfelület és automata locsolórendszer tartozik.
Az udvaron 2 autó számára viacolor burkolatú parkoló került kialakításra, valamint kerti tároló is rendelkezésre áll.
Műszaki jellemzők:
-modern 3 rétegű üvegezésű műanyag nyílászárók
-elektromos redőnyök és szúnyoghálók
-20 cm vastag homlokzati hőszigetelés
-hőszivattyús hűtés–fűtés minden helyiségben, külön szabályozással
-6 kW-os napelemrendszer szaldós elszámolással
-mobiltelefonról vezérelhető fűtés, hűtés és napelemes rendszer
-padlófűtés a kerámia burkolatú helyiségekben
-héjvédelemmel ellátott riasztórendszer
A modern technológiának és a napelemes rendszernek köszönhetően az ingatlan fenntartási költsége rendkívül alacsony.
Elhelyezkedés:
-csendes, zöldövezeti környezet
-panorámás, dombos fekvés
-Hévíz központja és a világhírű tófürdő autóval néhány percen belül elérhető
Ne maradjon le róla – hívjon még ma, és tekintse meg személyesen!
Az adatok kizárólag a megbízóink által rendelkezésünkre bocsátott információkon alapulnak. Az adatok teljességéért, pontosságáért és aktualitásáért felelősséget nem vállalunk. Az árváltoztatás, adatmódosítás és közbeni értékesítés jogát fenntartjuk.