Héreg
-
Kínálati ár: 95 000 000 Ft
Kalkulált ár: 260 989 Є -
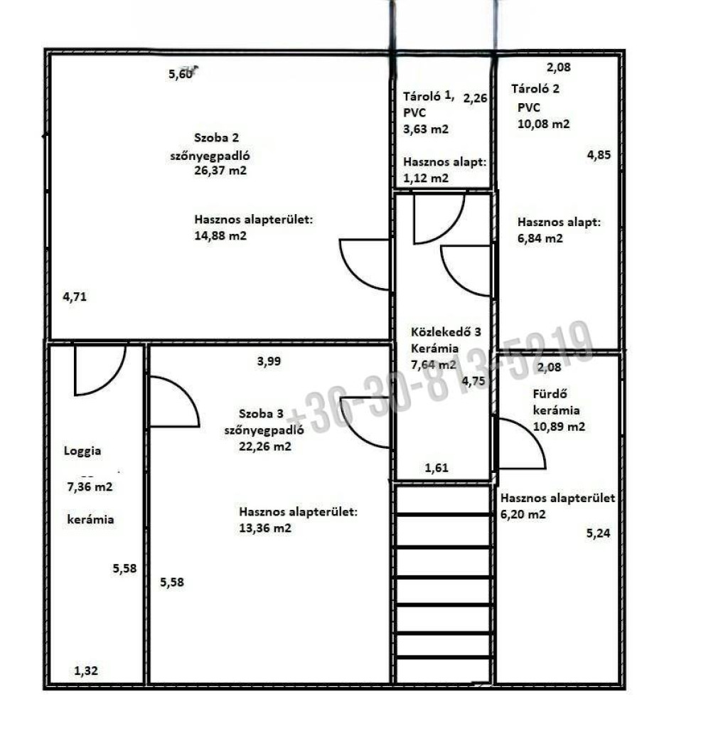
165 m2
Alapterület
-
3 100 m2
Telekterület
-
4 + 1 fél
Szobaszám
- Alapterület 165 m2
- Telekterület 3 100 m2
- Szobaszám 4 + 1 fél
- Web www.ingatlantajolo.hu/9304030
- Négyzetméter ár 575 758 Ft/m2
- Értékesítés típusa Eladó / Kínál
- Kategória Ház- házrész
- Típus Családi ház
- Állapot Átlagos
- Fűtés Gáz (cirkó)
- Építés éve 2013
- Belső szintek nincs megadva
- Tetőtér beépíthető nem
- CSOK igénybe vehető nem
- Kilátás nincs megadva
- Tájolás nincs megadva
- Ingatlan komfort nincs megadva
- Parkolási lehetőség nincs megadva
- Építőanyag nincs megadva
- Bútorozott nincs megadva
- Akadálymentesített nincs megadva
- Erkély, terasz nincs megadva
- Klíma nem
- Szigetelt nem
- Havi rezsiköltség nincs megadva
- Lakásbiztosítás nincs megadva
- Kábelszolgáltató nincs megadva
- Elektromos autó töltés nincs megadva
Energetikai besorolás:
Ez a hirdetés megfelelhet a FIX 3%-os programnak. Tudj meg többet a részletekről itt.
Az ingatlan leírása
Többfunkciós birtok a Gerecse lábánál – Gazdaság, vendégház vagy családi fészek Héregen165 m2 4+1 szobás családi ház eladó 3100 m2 telekkel - igazi ritkaság a piacon!
Összefoglaló:
Eladó egy rendkívüli adottságokkal bíró, akár többgenerációs ingatlanegyüttes Héreg szívében. A 3100 m² telek, a frissen modernizált főépület és a melléképületként épített kisebb parasztház számtalan lehetőséget rejt: legyen szó önellátó gazdálkodásról, falusi turizmusról vagy vállalkozásról.
Miért érdemes ezt választania? – Értékek és előnyök:
• Hatalmas, élettel teli telek (3000+ m²): A kert végében saját nádas és tó található, 24 termő gyümölcsfával és kúttal az önellátáshoz.
• Frissen modernizált főépület (165 m²): 2024-ben megújult villanyhálózat és 2025-ben kialakított tágas, amerikai konyhás nappali várja.
• Kiváló szerkezeti állapot: A tető 2020-ban teljes felújításon esett át, a falak stabilak, a ház azonnal lakható.
• Kettős fűtési rendszer: Gázkazán a kényelemért + 2023-as építésű, hangulatos cserépkályha a nappaliban a rezsicsökkentésért.
• Plusz egy Parasztház: A telken álló felújítandó állapotú kisház külön lakrészként vagy vendégházként is hasznosítható.
• Központi, mégis csendes lokáció: Boltok, iskola, orvos karnyújtásnyira, miközben a Gerecse túraútvonalai a szomszédban indulnak.
Ingatlan struktúra:
1. Főépület (Pince + Földszint + Tetőtér):
Az 1987-es építésű tégla ház szintenként átgondolt elosztású. A földszinten a terek egybenyitásával modern közösségi tér jött létre. A tetőtér beépítése révén akár két generáció szeparált együttélése is megoldott. Alacsony fenntartási költség jellemzi.
2. Melléképületek és Tárolás:
• Két garázs: Egy az utcafrontról, egy az udvarról nyílik – ideális műhelynek is.
• Gazdasági épületek: Állattartásra, raktározásra vagy kisüzemi tevékenységre alkalmas, felújítandó helyiségek.
Lokáció – Ahol megáll az idő:
Héreg egy zsákfalu biztonságát és nyugalmát nyújtja, miközben Budapest (54 km) és Tatabánya (20 km) is gyorsan elérhető. Szombatonként helyi termelői piac, tiszta levegő és összetartó közösség várja az ideköltözőket.
Infrastruktúra:
2 bolt, óvoda, iskola, orvosi rendelő, vendéglő, sportpálya, mobilposta, fitneszpark is szolgálja az itt lakók kényelmét.
Ez az ingatlan a lehetőségek tárháza. Itt nem csak egy értékálló befektetést, de nyugodt életet biztosíthat családjának egy kiemelkedően szép környezetben!
Ha felkeltette érdeklődését, hívjon bizalommal!
Irodánk bankfüggetlen és ingyenes hitelügyintézéssel támogatja az Önök vásárlását!
Komárné Koszper Helga