Enying
-
Kínálati ár: 57 000 000 Ft
Kalkulált ár: 156 593 Є -
120 m2
Alapterület
-
2 956 m2
Telekterület
-
5
Szobaszám
- Alapterület 120 m2
- Telekterület 2 956 m2
- Szobaszám 5
- Web www.ingatlantajolo.hu/9239464
- Négyzetméter ár 475 000 Ft/m2
- Értékesítés típusa Eladó / Kínál
- Kategória Ház- házrész
- Típus Családi ház
- Állapot Felújított
- Fűtés Gáz (cirkó)
- Építés éve 1975
- Belső szintek nincs megadva
- Tetőtér beépíthető nem
- CSOK igénybe vehető nem
- Kilátás nincs megadva
- Tájolás nincs megadva
- Ingatlan komfort nincs megadva
- Parkolási lehetőség nincs megadva
- Építőanyag nincs megadva
- Bútorozott nincs megadva
- Akadálymentesített nincs megadva
- Erkély, terasz nincs megadva
- Klíma nem
- Szigetelt nem
- Havi rezsiköltség nincs megadva
- Lakásbiztosítás nincs megadva
- Kábelszolgáltató nincs megadva
- Elektromos autó töltés nincs megadva
Energetikai besorolás:
Ez a hirdetés megfelelhet a FIX 3%-os programnak. Tudj meg többet a részletekről itt.
Az ingatlan leírása
Felújított családi ház nagy telekkel Balatonbozsokon!Eladó Enying-Balatonbozsok csendes utcájában egy 120 m²-es, felújított családi ház, 2965 m²-es, gazdálkodásra is alkalmas telekkel, mindössze 5 km-re a Balatontól.
Az ingatlan tégla falazatú, külsőleg nagyrészt hőszigetelt, tetőszerkezete 2021-ben megújult, cserép borítással. A ház jó elosztású és kényelmes, ideális nagyobb család számára is.
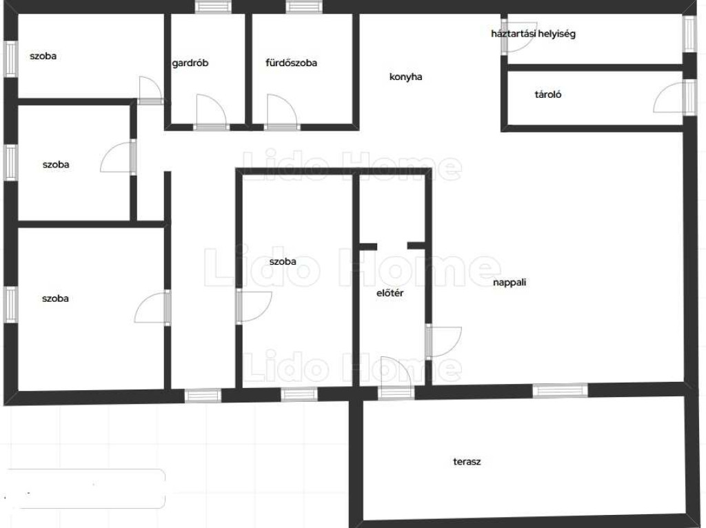
Helyiségek:
fedett terasz
előszoba
nappali
konyha-étkező
közlekedő
4 külön nyíló szoba
fürdőszoba
gardrób
háztartási helyiség
tároló
Az ingatlan felújított állapotú, a vételár kifizetését követően azonnal költözhető.
Műszaki jellemzők:
fűtés: gázkazán radiátoros hőleadással + klíma
műanyag külső nyílászárók
redőny és szúnyogháló
teljesen új utcafronti kerítés
A nagy, rendezett kert kiválóan alkalmas gazdálkodásra, állattartásra vagy pihenésre, a telek végében kis patak található, ami különleges hangulatot ad az ingatlannak.
Nyugodt, falusias környezet, jó megközelíthetőség, a Balaton közelsége pedig befektetésnek vagy állandó otthonnak is vonzóvá teszi.
Csend, tér, természet – mindez karnyújtásnyira a Balatontól.
Az ingatlan előzetes telefonos időpont egyeztetés után személyesen is megtekinthető!
LIDO HOME - INGATLANOK EGY ÉLETEN ÁT!