Emőd
-
Kínálati ár: 32 000 000 Ft
Kalkulált ár: 88 154 Є -
116 m2
Alapterület
-
1 469 m2
Telekterület
-
5
Szobaszám
- Alapterület 116 m2
- Telekterület 1 469 m2
- Szobaszám 5
- Web www.ingatlantajolo.hu/9273735
- Négyzetméter ár 275 862 Ft/m2
- Értékesítés típusa Eladó / Kínál
- Kategória Ház- házrész
- Típus Családi ház
- Állapot Felújítandó
- Építés éve 1987
- Belső szintek nincs megadva
- Tetőtér beépíthető nem
- CSOK igénybe vehető nem
- Kilátás nincs megadva
- Tájolás nincs megadva
- Ingatlan komfort nincs megadva
- Parkolási lehetőség nincs megadva
- Építőanyag nincs megadva
- Bútorozott nincs megadva
- Akadálymentesített nincs megadva
- Erkély, terasz nincs megadva
- Klíma nem
- Szigetelt nem
- Havi rezsiköltség nincs megadva
- Lakásbiztosítás nincs megadva
- Kábelszolgáltató nincs megadva
- Elektromos autó töltés nincs megadva
Energetikai besorolás:
Ez a hirdetés megfelelhet a FIX 3%-os programnak. Tudj meg többet a részletekről itt.
Az ingatlan leírása
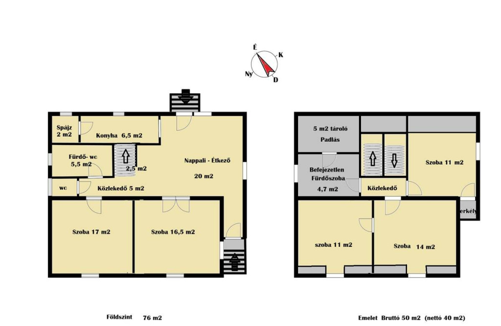
Miskolc közelében Emődön, a Margit utcában tetőtér beépítéses családi ház eladó.Az ingatlan felújításra szorul. Étkezős nappalival, konyhával, 5 szobával,116 m2-es fűtött lakótérrel rendelkezik. Az udvaron kazánházzal, és tárolóval várja új tulajdonosát. A lakótér bővíthető, a tetőtér egy részének befejezésével.
Említést érdemlő extrák:
– Hőszigetelt műanyag ablakok cserélve több helyiségben.
– Beépített, gépesített egyedi konyhabútor.
– Vegyes tüzelésű kazán, és régi típusú gázkazán, központi fűtés.
– Étkezős nappali, konyha, spájz.
– Cserép fedéses, jó állapotú tető. B30-as tégla falazat. 1987-ben épült.
– Nagy 1469 m2-es gondozott kert. Dupla tároló, pince, és kazánház.
– Klímaberendezés, ami jelenleg javításra szorul.
– Villamos hálózat egy minimális része cserélve, érintésvédelmi relével. (Éjszakai áram, bővített 3 fázis).
– Összközműves + fúrt kút.
– Statikailag, és szerkezetileg remek állapot.
– Remek tájolás, egyedi hangulatú, világos, tágas lakótér.
Az épület beköltözhető, lakható állapotban várja új tulajdonosát, aki ízlése szerint kialakíthatja. A gépészete modernizálásra, és belső- külső esztétikai felújításra, befejezésre szorul.
Szimpatikus szomszédok. Emőd központja, iskola,
óvoda, orvosi rendelő, élelmiszerbolt pár perc alatt elérhető.
Rendezett, biztonságos település.
A kedvező ingatlan árak miatt kedvelt település Emőd. Miskolc közelsége, és a dinamikusan fejlődő település magával ragadó hangulata miatt sokan választják a környéket.
Így várhatóan, rövid ideig lesz elérhető a ház, az ingatlanpiacon.
Az ingatlan per, és tehermentes, szinte azonnal birtokba vehető.
További információért keressen bizalommal!
Irodánkban bank független hitellehetőségekkel, ingyenes Csok, Csok +, Fix 3%-os hitel, és Babaváró ügyintézéssel várjuk. Teljes körű ingyenes szolgáltatás!