Elek, Herés
-
Kínálati ár: 25 900 000 Ft
Kalkulált ár: 71 154 Є -
110 m2
Alapterület
-
800 m2
Telekterület
-
3
Szobaszám
- Alapterület 110 m2
- Telekterület 800 m2
- Szobaszám 3
- Web www.ingatlantajolo.hu/9287564
- Négyzetméter ár 235 455 Ft/m2
- Értékesítés típusa Eladó / Kínál
- Kategória Ház- házrész
- Típus Családi ház
- Állapot Átlagos
- Építés éve 1983
- Belső szintek nincs megadva
- Tetőtér beépíthető nincs megadva
- CSOK igénybe vehető nincs megadva
- Kilátás nincs megadva
- Tájolás nincs megadva
- Ingatlan komfort nincs megadva
- Parkolási lehetőség nincs megadva
- Építőanyag nincs megadva
- Bútorozott nincs megadva
- Akadálymentesített nincs megadva
- Erkély, terasz nincs megadva
- Klíma nincs megadva
- Szigetelt nincs megadva
- Havi rezsiköltség nincs megadva
- Lakásbiztosítás nincs megadva
- Kábelszolgáltató nincs megadva
- Elektromos autó töltés nincs megadva
Energetikai besorolás:
Ez a hirdetés megfelelhet a FIX 3%-os programnak. Tudj meg többet a részletekről itt.
Az ingatlan leírása
Eleken, eladó egy 2 szoba + nappalis, felújított, téglaépítésű családi ház, 30 nm-es fedett terasszal, 21 nm-es garázzsal. (D)Irányár: 25,9 MFt
Tel:
Elek Herésen, egy csendes utcában található, a nyolcvanas években épült, kockaház. Jó szerkezti állapotú, beton alapon, téglafalazattal és betongerendás, kerámia béléstestes födémmel. Amit nem rég le is hőszigeteltek.
A megépítése óta, folyamatosan korszerűsítették. 2022-ben, a fürdőszobába, és a különálló WC-be, modern csempét és új szanitereket, valamint új műanyag ablakokat tettek. A nappalit és a szobákat is újra burkolták járólappal, illetve laminált padlóval.
A fűtést 2 éve korszerűsítették. Szép, új lapraditárokra cserélték a régi lemezradiátorokat, és környezetkímélő kondenzációs gázkazánt szereltek fel. Emellett, egy hatalmas tűzterű vegyeskazánnal is működtethető a központi fűtésrendszer.
A villanyvezetékerendszert is felújították részlegesen, ott, ahol nagyobb terhelésnek volt kitéve. Múlt évben inverteres hűtő-fűtő spitklímát szereltek fel a jobb komfortérzetért.
A külső nyílászárókat 2018-ban cserélték le, hőszigetelt fa ajtókra és ablakokra. A teraszt utólag beépítették előszobának, ide már műanyag ablakokat és bejárati ajtót tettek, ahogy a fürdőbe és WC-be is.
A ház különlegessége, hogy az udvaron áll, egy kb. 30 nm-es fedett terasz. Ide nem csak egy kerti grillezőt és bográcsozót építettek, hanem kemencét, üstházat, sparheltet is. Aki szeret a szabadban főzni, sütögetni, annak ez egy álom... nem kell kompromisszumot kötnie semmiben! Az alja térkövezett, a felső része fából készült. Szemetgyönyörködtető a lazúrozott faszerkezet. Előtte is térkő van, ami a garázs előtt is folytatódik. A nagykapuig mutatós, fehérkavicsos, betonozott kocsibejáró vezet.
A filagória és garázs mögött sok tároló illletve gazdasági épület (ólak, füstölő) kapott helyet, ezek mögött pedig egy kisebb kert van, ahová fiatal gyümölcsfákat telepítettek.
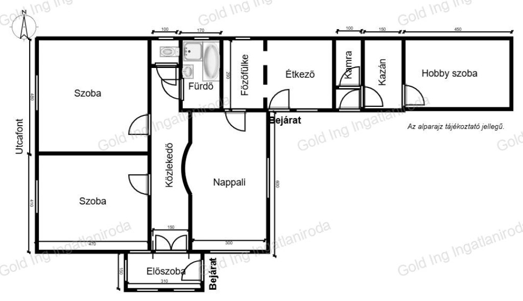
Az előszoba napos, világos, akár egy télikert. A lakás elrendezése modern. A közlekedőből nyílik a két szoba, külön bejárattal, valamint a fürdőszoba és a mellékhelyiség. A nappali egy szögletes boltívvel kapcsolódik a folyosóhoz. Igazán látványos a szeletelt tégla díszburkolat, amit ezen a falon láthatunk. A nappali egyik sarkában, épített bárpult van, hogy kellemesebb legyen a pihenés, ne kelljen minden pohár italért kimenni a konyhába.
A nappaliból nyílik a főzőfülke, amit egy átadópult választ el az étkezőtől. Az étkezőnél van a lakás hátsó kijárata. Innen rövid, fedett út vezet a melléképületben található kamráig, kazánházig és a sok célra alkalmas hobbyszobáig. Ebben a helyiségben, a család nyugalmának zavarása nélkül lehet például zenélni - ahogyan ezt most is teszik -, barkácsolni, modellezni... vagy bármi olyan tevékenységet folytatni, ami némi elvonulást kíván.
Az értékeket biztonsági kamera védi.
Az óvoda, iskola, orvosi rendelő 1400 méterre van. A buszmegálló csak 700 méter. A legközelebbi bolt 1 km. A polgármesteri hivatal és a posta 1500 méter csupán.
Békéscsaba központja jó minőségű közúton érhető el, amit az elmúlt évben újítottak fel, mindössze 24 km! Gyula is végig jó úton közelíthető meg, a méltán híres Gyulai Várfürdő csupán 17 km-re van.
Aki csendes, biztonságos környezetben szeretne egy megbízható állapotú, kertes otthont magának, Csabához és Gyulához is közel, az hívjon, és nézze meg! Kisebb családoknak ideális, de akár pároknak is, akiknek nagy a baráti köre, vagy alkalmanként járnak haza a gyerekek. A nagy nappali és a nagy kerthelyiség bőven ad teret a baráti, családi összejövetelekre. Tekintse meg!