Ecséd
-
Kínálati ár: 24 000 000 Ft
Jelenlegi ár: 24 000 000 Ft
Korábbi ár: 25 000 000 Ft
Kalkulált ár: 66 116 Є25 000 000 Ft
-
65 m2
Alapterület
-
1 127 m2
Telekterület
-
3
Szobaszám
- Alapterület 65 m2
- Telekterület 1 127 m2
- Szobaszám 3
- Web www.ingatlantajolo.hu/9212382
- Négyzetméter ár 369 231 Ft/m2
- Értékesítés típusa Eladó / Kínál
- Kategória Ház- házrész
- Típus Családi ház
- Állapot Átlagos
- Fűtés Gáz (konvektor)
- Belső szintek nincs megadva
- Tetőtér beépíthető nem
- CSOK igénybe vehető nem
- Kilátás nincs megadva
- Tájolás nincs megadva
- Ingatlan komfort nincs megadva
- Parkolási lehetőség nincs megadva
- Építőanyag nincs megadva
- Bútorozott nincs megadva
- Akadálymentesített nincs megadva
- Erkély, terasz nincs megadva
- Klíma nem
- Szigetelt nem
- Havi rezsiköltség nincs megadva
- Lakásbiztosítás nincs megadva
- Kábelszolgáltató nincs megadva
- Elektromos autó töltés nincs megadva
Energetikai besorolás:
Ez a hirdetés megfelelhet a FIX 3%-os programnak. Tudj meg többet a részletekről itt.
Az ingatlan leírása
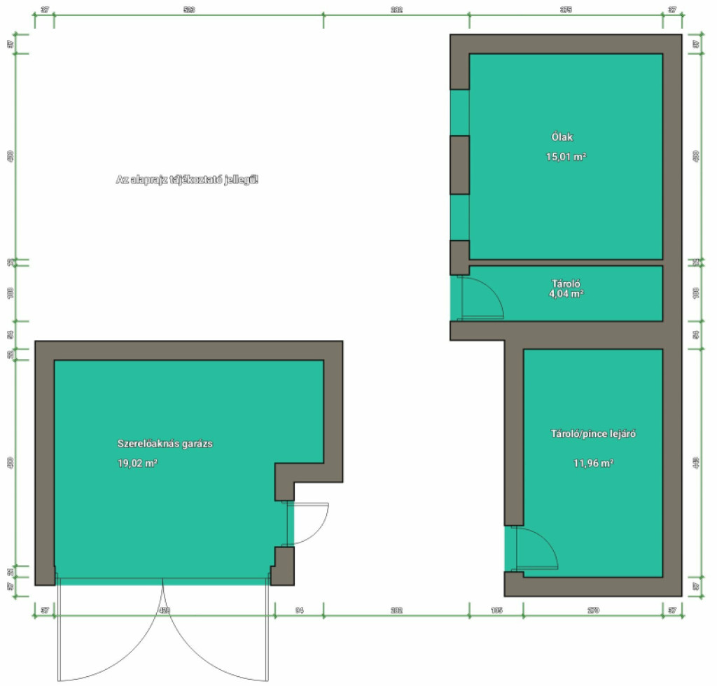
Ecséd szívében, a csendes utcában vár rád egy igazán különleges lakóingatlan, amely tökéletes választás fiatal felnőttek számára, akik otthont keresnek vagy befektetési lehetőséget szeretnének találni. Ez a használt ingatlan 65 négyzetméteren terül el, és egy 1127 négyzetméteres telken helyezkedik el, ami bőséges lehetőséget biztosít a saját elképzeléseid megvalósítására. A ház jó állapotú, így azonnal költözhető, és a gázkonvektoros fűtésnek köszönhetően a téli hónapokban is kellemes meleg vár rád.A lakásban két tágas szoba található, amelyek világosak és barátságosak. Kialakítható egy hangulatos nappali és étkező. A kerti tároló pedig praktikus megoldást kínál a kertrendezéshez szükséges eszközök tárolására, így mindig rendben tarthatod a környezetedet. A 20 m2-es szerelőaknás garázsban akár még autószerelés is megoldható.
Extrák:
-új nyílászárók
-új elektromos vezeték
-parkettás szobák
-gyűrűs kút
-19 m2-es pince
-ólak és tárolók
A környék csendes és biztonságos, ami ideális helyszín a nyugodt életvitelhez. Ecséd közlekedése kiváló, hiszen a közeli buszmegállóból könnyen elérhetők a nagyobb városok,(Hatvan,Gyöngyös) így a napi ingázás sem jelent problémát. A közeli bolt és egyéb szolgáltatások mindössze pár perc sétára találhatók, így minden szükséges kényelem a közelben elérhető.
Ez az ingatlan tehermentes, így gyorsan és problémamentesen megvásárolható. Ne hagyd ki ezt a remek lehetőséget, hogy egy igazán különleges otthonra lelj Ecséden!
Ha bármilyen kérdésed lenne az ingatlannal kapcsolatban, vagy szeretnéd megtekinteni, bátran keresd meg a megadott elérhetőségek egyikén. Az ingatlanpiac folyamatosan változik, ezért érdemes minél előbb lépni. Ne habozz, hiszen ez a lehetőség nem tart örökké!