Dunaharaszti, Sportsziget
-
Kínálati ár: 299 000 000 Ft
Kalkulált ár: 760 814 Є -
230 m2
Alapterület
-
650 m2
Telekterület
-
5
Szobaszám
- Alapterület 230 m2
- Telekterület 650 m2
- Szobaszám 5
- Web www.ingatlantajolo.hu/9304048
- Négyzetméter ár 1 300 000 Ft/m2
- Értékesítés típusa Eladó / Kínál
- Kategória Ház- házrész
- Típus Családi ház
- Állapot Új építésű
- Szintek száma 1
- Építés éve 2026
- Belső szintek 1
- Tetőtér beépíthető nincs megadva
- CSOK igénybe vehető nincs megadva
- Kilátás nincs megadva
- Tájolás nincs megadva
- Ingatlan komfort nincs megadva
- Parkolási lehetőség nincs megadva
- Építőanyag nincs megadva
- Bútorozott nincs megadva
- Akadálymentesített nincs megadva
- Erkély, terasz nincs megadva
- Klíma nincs megadva
- Szigetelt nincs megadva
- Havi rezsiköltség nincs megadva
- Lakásbiztosítás nincs megadva
- Kábelszolgáltató nincs megadva
- Elektromos autó töltés nincs megadva
Energetikai besorolás:
Az ingatlan leírása
Luxus okosotthon DunaharasztinDuna-part néhány lépésre!!!
Tágas terek, modern technológia, alacsony rezsi
Ha olyan otthont keres, amely modern, energiatakarékos és hosszú távon is értékálló, akkor ez az ingatlan ideális választás.
Dunaharaszti egyik legkedveltebb részén épül ez a 230 nm-es prémium családi ház, amely okosotthon technológiával, hőszivattyús rendszerrel és napelemes energiatermeléssel biztosítja a maximális kényelmet és gazdaságos fenntartást.
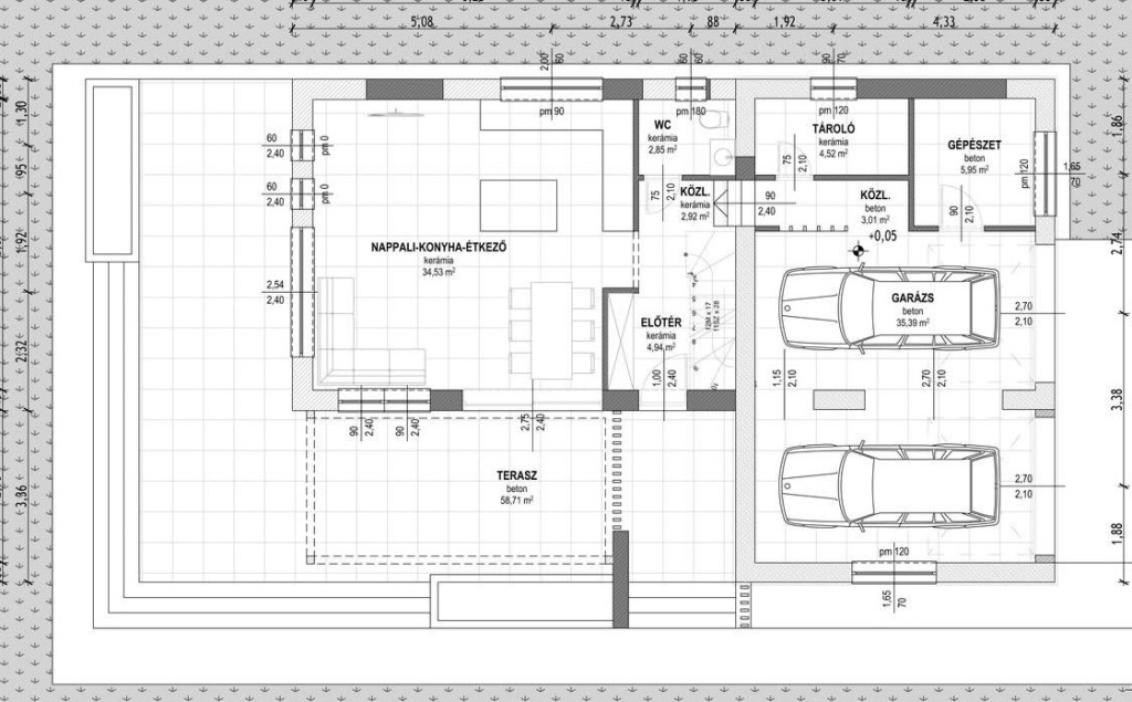
A 650 nm-es telken elhelyezkedő ház tágas terekkel és átgondolt elrendezéssel készült.
A nappali és a konyha együtt egy nagy, világos közösségi teret alkot, amely akár 60 nm-re bővíthető, így tökéletes családi és baráti összejövetelekhez.
Az emeleten található:
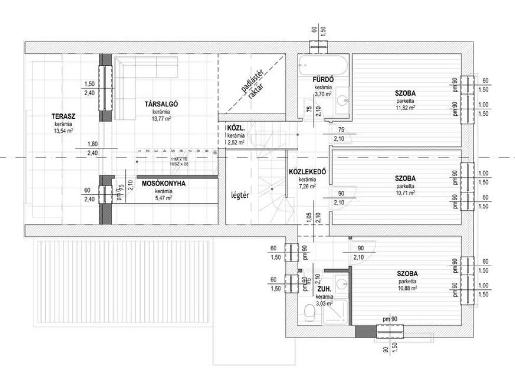
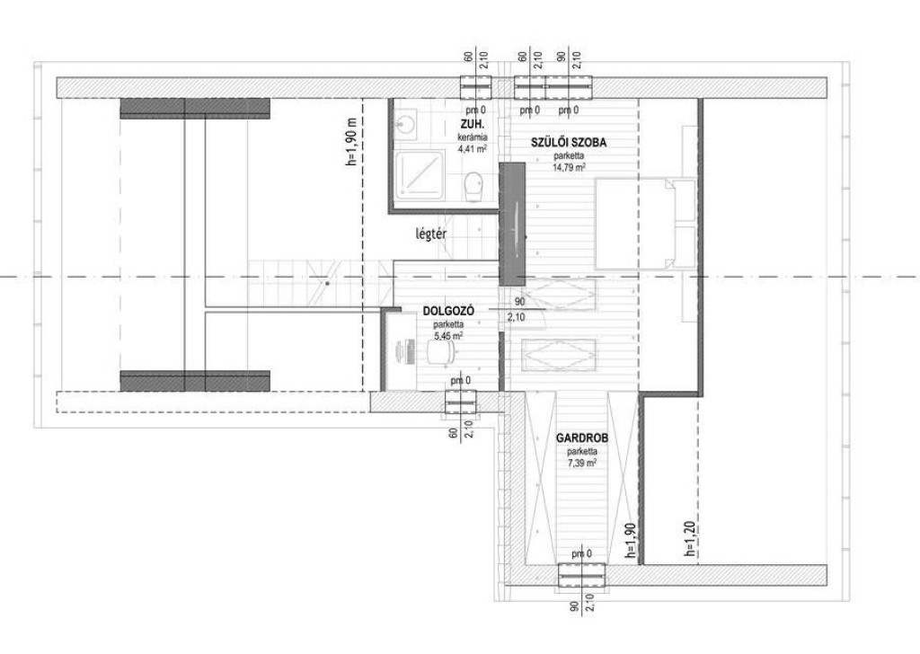
3 külön hálószoba
2 fürdőszoba
egy külön nappali vagy dolgozó
valamint egy privát szülői lakrész saját gardróbbal és fürdővel
A modern gépészet gondoskodik a kényelemről:
14 kW levegő-víz hőszivattyú
padló- és falfűtés
hővisszanyerős szellőztetés
zónánként szabályozható hőmérséklet
A ház teljes okosotthon rendszerrel működik, így a fűtés, hűtés, árnyékolás és kapu mobiltelefonról vezérelhető.
Energiahatékonyság:
5 kW napelem
10 kW inverter
H tarifa
elektromos autótöltő
A prémium kivitelezést tovább emelik:
7 kamrás nyílászárók
elektromos alumínium redőnyök
választható burkolatok
egyedi konyhabútor
rendezett kert
Ez az otthon ideális családoknak, akik kompromisszumok nélkül szeretnének élni modern környezetben.
Privát megtekintés egyeztetés alapján.
Szívből ajánlom minden olyan érdeklődőnek, akinek fontos a minőség és kényelem feltétlen párosítása, az esztétikus, élhető méretű kert, valamint a városhoz való pár perc alatti közelség, mégis megnyugtató szigetként funkcionáló meghitt családi otthon!
Várom hívását! Amennyiben nem tudom felvenni a telefont, hamarosan visszahívom! Hétvégén és esténként is nyugodtan kereshet bizalommal!
Független, ingyenes hitel-CSOK ügyintézéssel segítem kedves Ügyfeleimet, igen kedvező hitelekkel 2025-ben is! Mivel ingatlanirodánk építész és ingatlanfejlesztő irodával párosul, így minden hiteles szakmai segítséget meg tudunk adni, mellyel segíteni tudjuk döntését (könyvelő, ügyvéd, energetikai tanúsítvány, kivitelezők, szakértői vélemények....)!
Ha a vásárláshoz el szeretné adni a jelenleg meglévő ingatlanját, ebben is nagyon szívesen segítek. Az Ingatlancorner kft. igen alacsony közvetítői díjjal, a legmagasabb színvonalon képviseli az Ön érdekeit.
Ellenőrzött prémium partnerként várom megtisztelő bizalmát!