Az ingatlan leírása
HOLTÁG KÖZELI , BIZTONSÁGOS , BÉKÉS , FALUSIAS KÖRNYEZETBEN , FIGYELMES SZOMSZÉDSÁG közt - ahol mindenki ismeri egymást - KÁDÁRKOCKA ELADÓ
Lokáció : Békés vármegye , Csárdaszállás , Arany János utca
Félhalmi holtág és pecázóhelyek pár km-re , Gyomaendrőd fürdőváros és Mezőberény közt félúton , M44-s csatlakozó 35 km , nagyobb városok : Békéscsaba , Mezőtúr , Szarvas 30-40 km távolságon belül
Kinek ajánlom : horgászat fanoknak , fiataloknak , energikus idősebbeknek , a nyugalom szigetére vágyóknak , 7végi háznak - a nagyvárosi zajból kiszakadni vágyóknak
Adottságok , tulajdonságok :
- 78-ban épült kádár kocka , beton alappal és lábazattal , tégla falszerkezettel és fagerendás sárfödémmel , jó tetőszerkezettel
- korának megfelelően , jó állapotú , ízlés szerint formálható
- gázkonvektor fűtéses ( a jó állapotú kémények egyéb fűtést is lehetővé tesznek ) , a meleg vizet kedvezményes éjszakai áramról üzemelő villanybojler biztosítja
- 1472 m2-es széles , kerítéssel határolt fúrt kútból locsolható DK-i tájolású , kellemes szomszédság közt lévő telken fekszik
- előkertes építésmód , ami kedves kis virágoskertnekad helyet
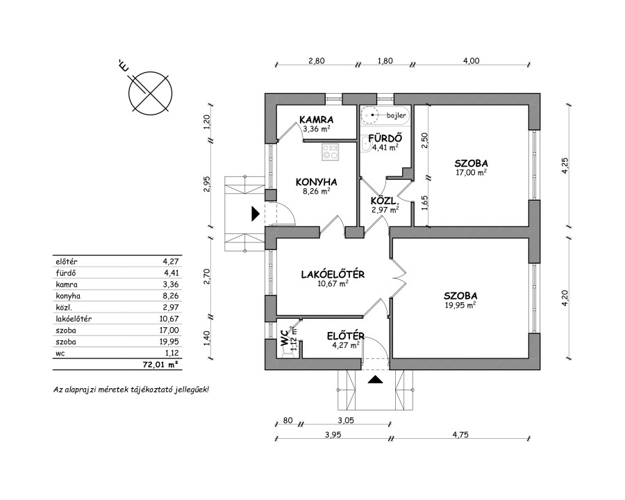
- 73 m2-es , jó elosztású lakótér áll rendelkezésre , amiben megtalálható : 2 db tágas , jó állapotú faparkettás szoba , előtér , étkező/ nappali , kádas fürdőszoba , WC , konyha és kamra ( padlásfeljáró ) helyiség
- 3x16 Amper ipari és éjszakai áram áll rendelkezésre , müa. csőben futó ( könnyebben és költséghatékonyabban áthúzható ) villamos hálózattal
- 2 bejárata van , a hátsó ajtó egy jó kilépő lehet a majdani teraszhoz
- a szennyvízhálózat afaluban nincs kiépítve
- kis melléképületében nyári konyha , tároló és istálló található ill. 4 téglaól , egy kia gazdálkodásra is lehetőséget ad
- a telek végével szomszédos erdősáv biztosítja a tiszta , friss levegőt , a hátsó kert kiváló gyümölcsös vagy veteményes alapja lehet
Kellemes környezet , barátságos kis otthon , ahová jó érzés hazatérni és feltöltődni !
Korabeli , felújítandó állapotából adódóan saját ízlésre alakítható !
Amiben segítség lehet az 5+5 M Ft-os energetikai korszerűsítésre szóló támogatás és 0%-os hitel
Finanszírozható : FALUSI CSOK ( 1 gyermekre ) , CSOK+ , OSP ( 3% ) , BABAVÁRÓ vagy piaci hitel segítségével
( díjmentes bankfüggetlen profi ! hitelügyintéző biztosított )
Igény szeint teljes bútorzattal együtt !
Rendezett tulajdoni viszonyok és közművek , tehermentes
Kommunális adó : 3000 Ft/ év , Szemét : 1783 Ft / negyed év
Internet : ONE és OVERNET
A faluban : bölcsi-ovi , vegyesbolt , dohánybolt , hivatal , ált. iskolába sulibusz hordja a közeli Gyomaendrődre a kis diákokat , vasútállomás , buszjáratok , posta , játszótér , focipálya , edzőterem , a közeli Gyomán és Mezőberényben bevásárlási lehetőségek , fürdő , étterem, szolgáltatók , bankok , piac stb.
A közelekedés autóval a legrugalmasabb .
Érd. és személyes megtekintés kérhető a es számon
H-P : 9-19 , Sz : 9-14 óra között