Ceglédbercel
-
Kínálati ár: 115 000 000 Ft
Kalkulált ár: 322 129 Є -
124 m2
Alapterület
-
1 100 m2
Telekterület
-
4
Szobaszám
- Alapterület 124 m2
- Telekterület 1 100 m2
- Szobaszám 4
- Web www.ingatlantajolo.hu/9273949
- Négyzetméter ár 927 419 Ft/m2
- Értékesítés típusa Eladó / Kínál
- Kategória Ház- házrész
- Típus Családi ház
- Állapot Átlagos
- Fűtés Központi fűtés
- Szintek száma 2
- Belső szintek 2
- Tetőtér beépíthető nincs megadva
- CSOK igénybe vehető nincs megadva
- Kilátás nincs megadva
- Tájolás nincs megadva
- Ingatlan komfort nincs megadva
- Parkolási lehetőség nincs megadva
- Építőanyag nincs megadva
- Bútorozott nincs megadva
- Akadálymentesített nincs megadva
- Erkély, terasz nincs megadva
- Klíma nincs megadva
- Szigetelt nincs megadva
- Havi rezsiköltség nincs megadva
- Lakásbiztosítás nincs megadva
- Kábelszolgáltató nincs megadva
- Elektromos autó töltés nincs megadva
Energetikai besorolás:
Ez a hirdetés megfelelhet a FIX 3%-os programnak. Tudj meg többet a részletekről itt.
Az ingatlan leírása
Ceglédbercel egyik kedvelt, rendezett részén kínálom megvételre ezt a tégla falazatú, beton alapra épült, 124 nm hasznos alapterületű, kétszintes családi házat.Az ingatlan összközműves, hitelképes, duplakomfortos kialakítású, lakótere praktikus elrendezésű, kiváló lehetőség nagyobb családok számára is.
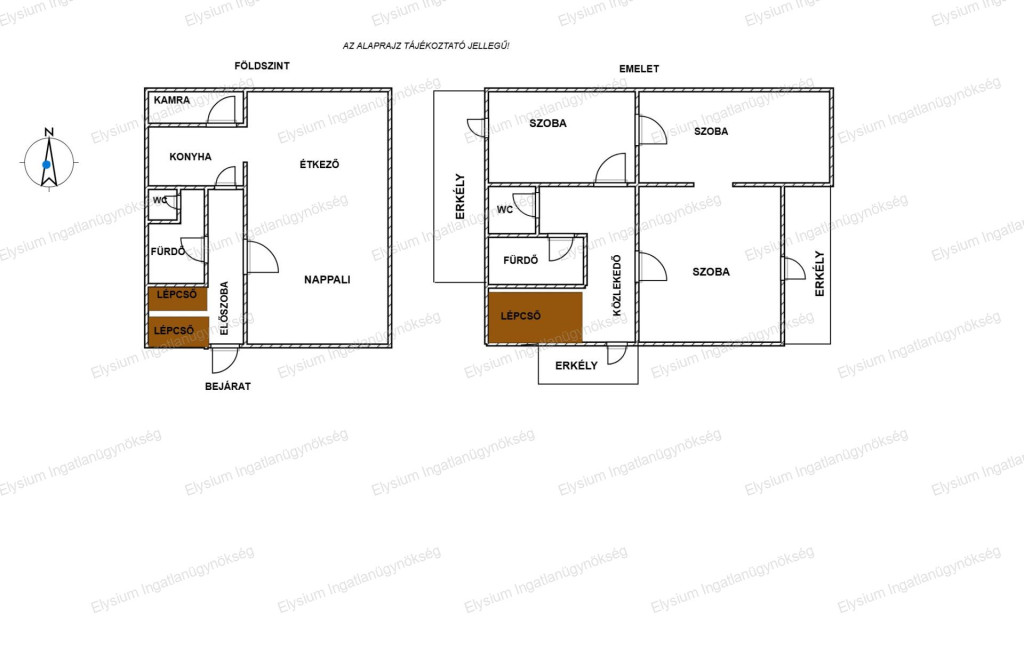
Helyiségek elosztása:
Földszint:
előszoba
tágas nappali–étkező
konyha
kamra
fürdőszoba/WC
Emelet:
3 szoba
közlekedő
fürdőszoba
külön WC
3 erkély
A melegvizet a földszinten gázbojler, az emeleten villanybojler biztosítja.
Műszaki jellemzők:
Tégla falazat
Beton alap
Lindab lemez tetőfedés
Gázkazán + vegyes tüzelésű kazán (radiátoros hőleadással)
2 db hűtő-fűtő klíma
Jó állapotú, redőnnyel ellátott, duplaszárnyú fatokos nyílászárók
A lakótér alatt egy 60 nm-es szuterén található, amely magában foglalja:
garázst
mosókonyhát
pincét
A szuterén a lakótéren belülről és az udvar felől is megközelíthető.
Telek:
Az 1 100 nm-es, kerített porta rendezett, parkosított.
Az udvaron egy könnyűszerkezetes szerszámtároló is helyet kapott.
Az ingatlan állapota átlagos, stabil szerkezeti háttérrel és jó adottságokkal rendelkezik – igény szerint korszerűsíthető, alakítható.
Irányára: 115 000 000 Ft
Érdeklődését megadott elérhetőségeim egyikén várom a hét bármely napján. Az ingatlant rugalmasan tudom mutatni. Tel.: vagy
Amennyiben az ingatlan megvásárlásához hitelre van szüksége, ingyenes hitel tanácsadással és teljes körű ügyintézéssel állunk rendelkezésére. Közreműködésünknek köszönhetően kedvezményesebb hitelre tehet szert, mintha önállóan a bankban intézné ügyeit, továbbá az ingatlan megvásárlásával kapcsolatos teljes körű ügyintézést is biztosítunk.
Jelzáloghitel, babaváró hitel, CSOK, személyi kölcsön igényét vásárlástól függetlenül díjtalanul elintézzük Önnek.