Alsónémedi
-
Kínálati ár: 85 000 000 Ft
Jelenlegi ár: 85 000 000 Ft
Korábbi ár: 95 000 000 Ft
Kalkulált ár: 233 516 Є95 000 000 Ft
-
151 m2
Alapterület
-
311 m2
Telekterület
-
5
Szobaszám
- Alapterület 151 m2
- Telekterület 311 m2
- Szobaszám 5
- Web www.ingatlantajolo.hu/9246623
- Négyzetméter ár 562 914 Ft/m2
- Értékesítés típusa Eladó / Kínál
- Kategória Ház- házrész
- Típus Családi ház
- Állapot Újszerű állapotú
- Fűtés Gáz (cirkó)
- Szintek száma 2
- Belső szintek 2
- Tetőtér beépíthető nem
- CSOK igénybe vehető nem
- Kilátás Utcai
- Tájolás Délnyugat
- Ingatlan komfort Összkomfortos
- Parkolási lehetőség Önálló garázs
- Építőanyag Tégla
- Bútorozott nincs megadva
- Akadálymentesített nincs megadva
- Erkély, terasz Terasz
- Klíma igen
- Szigetelt nem
- Havi rezsiköltség nincs megadva
- Lakásbiztosítás nincs megadva
- Kábelszolgáltató nincs megadva
- Elektromos autó töltés nincs megadva
Energetikai besorolás:
Ez a hirdetés megfelelhet a FIX 3%-os programnak. Tudj meg többet a részletekről itt.
Az ingatlan leírása
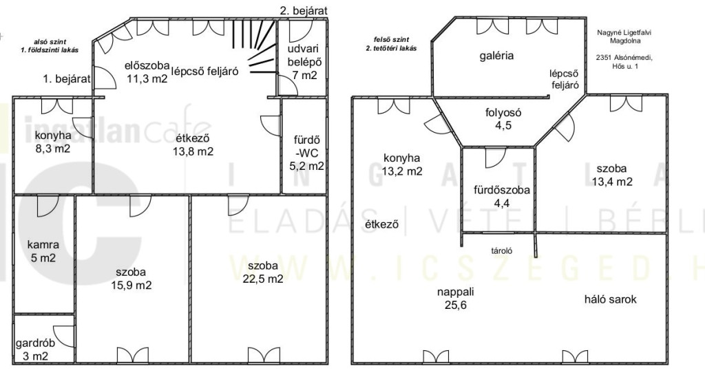
Alsónémedi fő utcáján, az egyik legközpontibb helyen akár 2 generáció lakhatására, vagy üzleti elképzelés megvalósítására is alkalmas családi ház eladó.Itt aztán karnyújtásnyira van minden, amit egy település központja nyújthat: buszmegálló, Polgármesteri Hivatal, bankfiók, posta, boltok, pékség, cukrászda, étterem, jégpálya csak néhány percnyire.
A 311 m2-es telekre téglából épült belső 2 szintes, 151 m2-es ház többszöri bővítés, modernizálás során nyerte el mai elrendezését. Az alsó szinten 2 szoba, gardrób, tágas előszoba-étkező, konyha, kamra, fürdő és udvari bejáratot is biztosító kazánház található. A felső szinten fürdőszoba, jelenleg egy térben kialakított konyha, étkező, nappali és hálósarok, valamint 1 külön szoba van.
Fűtése gáz-cirkó, padlófűtéssel és radiátorokkal, az utcai szobákban konvektorokkal. Alternatív lehetőségként működő cserépkályha is rendelkezésre áll. Hűtése 2 klímával megoldott.
Bejárati ajtó és az ablakok műanyagra lettek cserélve, melyeket redőny, szúnyogháló véd.
Az udvaron, távirányítós kapun behajtva, külön épületben 20 m2-es garázs szolgál az autó tárolására.
Az udvar füvesített, 1-2 díszfával, a garázs és a lakóépület között térkővel borított privát terasz szolgál a kinti pihenéshez.
Az ingatlan tehermentes, a költözés rövid időn belül megoldható.