Alap, Alap
-
Kínálati ár: 20 000 000 Ft
Kalkulált ár: 54 945 Є -
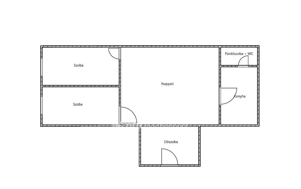
69 m2
Alapterület
-
1 903 m2
Telekterület
-
2
Szobaszám
- Alapterület 69 m2
- Telekterület 1 903 m2
- Szobaszám 2
- Web www.ingatlantajolo.hu/9317623
- Négyzetméter ár 289 855 Ft/m2
- Értékesítés típusa Eladó / Kínál
- Kategória Ház- házrész
- Típus Családi ház
- Állapot Felújítandó
- Fűtés Egyéb fűtés
- Szintek száma 1
- Építés éve 1950
- Belső szintek 1
- Tetőtér beépíthető nem
- CSOK igénybe vehető nem
- Kilátás nincs megadva
- Tájolás nincs megadva
- Ingatlan komfort nincs megadva
- Parkolási lehetőség nincs megadva
- Építőanyag nincs megadva
- Bútorozott nincs megadva
- Akadálymentesített nincs megadva
- Erkély, terasz nincs megadva
- Klíma nem
- Szigetelt nem
- Havi rezsiköltség nincs megadva
- Lakásbiztosítás nincs megadva
- Kábelszolgáltató nincs megadva
- Elektromos autó töltés nincs megadva
Energetikai besorolás:
Az ingatlan leírása
Fejér vármegyében, Alapon eladóvá vált egy 69m2-es vegyes falazatú, cseréptetővel ellátott családi ház. Az ingatlan jogilag rendezett, teher- és tartozásmentes.A házban az abalakok illetve ajtók cserélve lettek. Az ingatlan felújítást igényel. Víz, villany és szennyvíz akna van.
A házhoz tartozik egy melléképület is.
A telek 1903m2-es.
Székesfehérvár csupán 50 km, a Balaton legközelebbi pontja pedig mindössze 40 km távolságra érhető el.
Az OTP Ingatlanpont teljeskörű ügyintézéssel áll az eladók és a vevők rendelkezésére! A kínálatunkból választott ingatlan finanszírozásához kedvezményes hitel- és pénzügyi konstrukciókat kínálunk. Az adásvételi szerződés megkötéséhez igény szerint megbízható ügyvédi közreműködést és a kapcsolódó ügyek intézéséhez segítséget nyújtunk.
Amennyiben megtetszett Önnek a hirdetés és bármi kérdése lenne, kérem keressen bizalommal. Köszönöm!