Pécs, Kertváros, Kertváros
-
Kínálati ár: 39 100 000 Ft
Kalkulált ár: 99 491 Є -
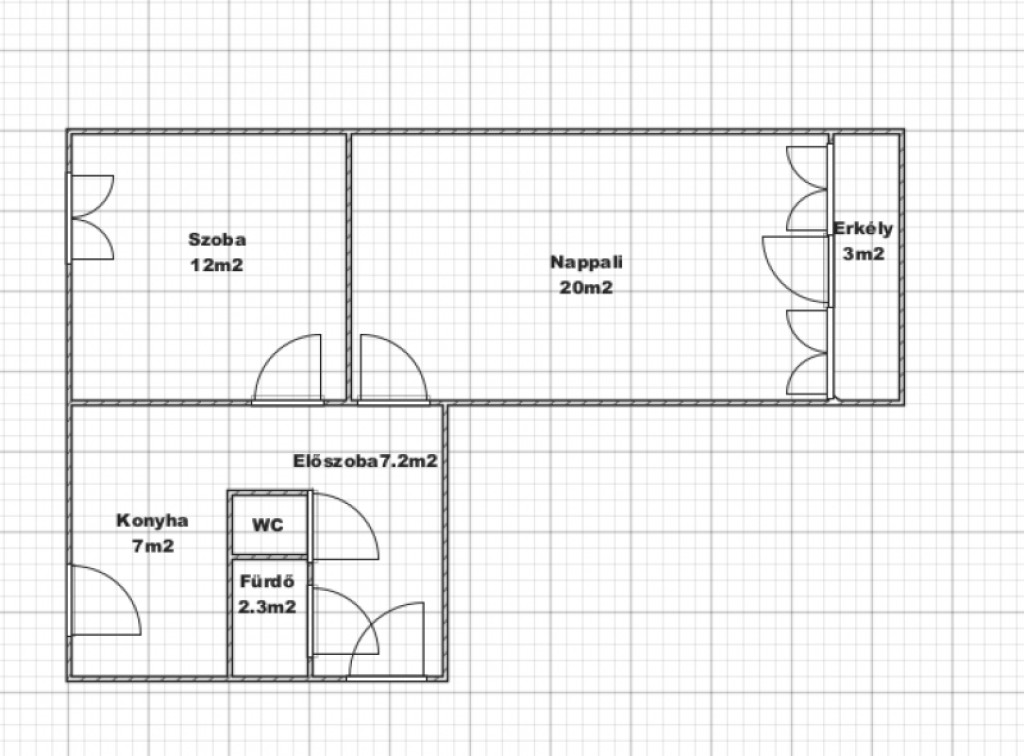
52 m2
Area size
-
2
Szobaszám
- Area size 52 m2
- Plot size -
- Szobaszám 2
- Web www.ingatlantajolo.hu/9278740
- Négyzetméter ár 751 923 Ft/m2
- Offer For sale / Offer
- Category Flat
- Type Panel flat
- Floor 4.
- Condition Average
- Heating District heating with individual measuring
- CSOK igénybe vehető nem
- Kilátás nincs megadva
- Tájolás nincs megadva
- Ingatlan komfort nincs megadva
- Parkolási lehetőség nincs megadva
- Építőanyag nincs megadva
- Bútorozott nincs megadva
- Akadálymentesített nincs megadva
- Erkély, terasz nincs megadva
- Kert kapcsolat nincs megadva
- Klíma nem
- Szigetelt nem
- Havi rezsiköltség nincs megadva
- Lakásbiztosítás nincs megadva
- Kábelszolgáltató nincs megadva
- Elektromos autó töltés nincs megadva
Energetikai besorolás:
Ez a hirdetés megfelelhet a FIX 3%-os programnak. Tudj meg többet a részletekről itt.