Tarján
-
Kínálati ár: 119 900 000 Ft
Kalkulált ár: 305 089 Є -
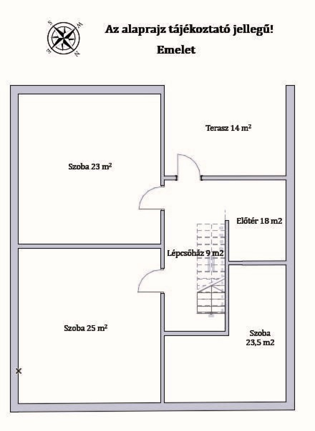
220 m2
Area size
-
719 m2
Plot size
-
5
Szobaszám
- Area size 220 m2
- Plot size 719 m2
- Szobaszám 5
- Web www.ingatlantajolo.hu/9237363
- Négyzetméter ár 545 000 Ft/m2
- Offer For sale / Offer
- Category House, part of a house property
- Type House
- Heating Central heating
- Number of levels 2
- Year of construction 1990
- Belső szintek 2
- Tetőtér beépíthető nincs megadva
- CSOK igénybe vehető nincs megadva
- Kilátás nincs megadva
- Tájolás nincs megadva
- Ingatlan komfort nincs megadva
- Parkolási lehetőség nincs megadva
- Építőanyag nincs megadva
- Bútorozott nincs megadva
- Akadálymentesített nincs megadva
- Erkély, terasz nincs megadva
- Klíma nincs megadva
- Szigetelt nincs megadva
- Havi rezsiköltség nincs megadva
- Lakásbiztosítás nincs megadva
- Kábelszolgáltató nincs megadva
- Elektromos autó töltés nincs megadva
Energetikai besorolás:
Ez a hirdetés megfelelhet a FIX 3%-os programnak. Tudj meg többet a részletekről itt.