Héreg
-
Kínálati ár: 95 000 000 Ft
Kalkulált ár: 241 730 Є -
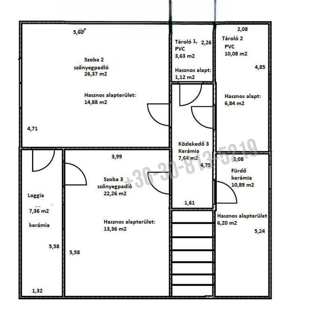
165 m2
Area size
-
3 100 m2
Plot size
-
4 + 1 half
Szobaszám
- Area size 165 m2
- Plot size 3 100 m2
- Szobaszám 4 + 1 half
- Web www.ingatlantajolo.hu/9304030
- Négyzetméter ár 575 758 Ft/m2
- Offer For sale / Offer
- Category House, part of a house property
- Type House
- Condition Average
- Heating Circulational heater
- Year of construction 2013
- Belső szintek nincs megadva
- Tetőtér beépíthető nem
- CSOK igénybe vehető nem
- Kilátás nincs megadva
- Tájolás nincs megadva
- Ingatlan komfort nincs megadva
- Parkolási lehetőség nincs megadva
- Építőanyag nincs megadva
- Bútorozott nincs megadva
- Akadálymentesített nincs megadva
- Erkély, terasz nincs megadva
- Klíma nem
- Szigetelt nem
- Havi rezsiköltség nincs megadva
- Lakásbiztosítás nincs megadva
- Kábelszolgáltató nincs megadva
- Elektromos autó töltés nincs megadva
Energetikai besorolás:
Ez a hirdetés megfelelhet a FIX 3%-os programnak. Tudj meg többet a részletekről itt.