Budakalász
-
Kínálati ár: 210 000 000 Ft
Kalkulált ár: 534 351 Є -
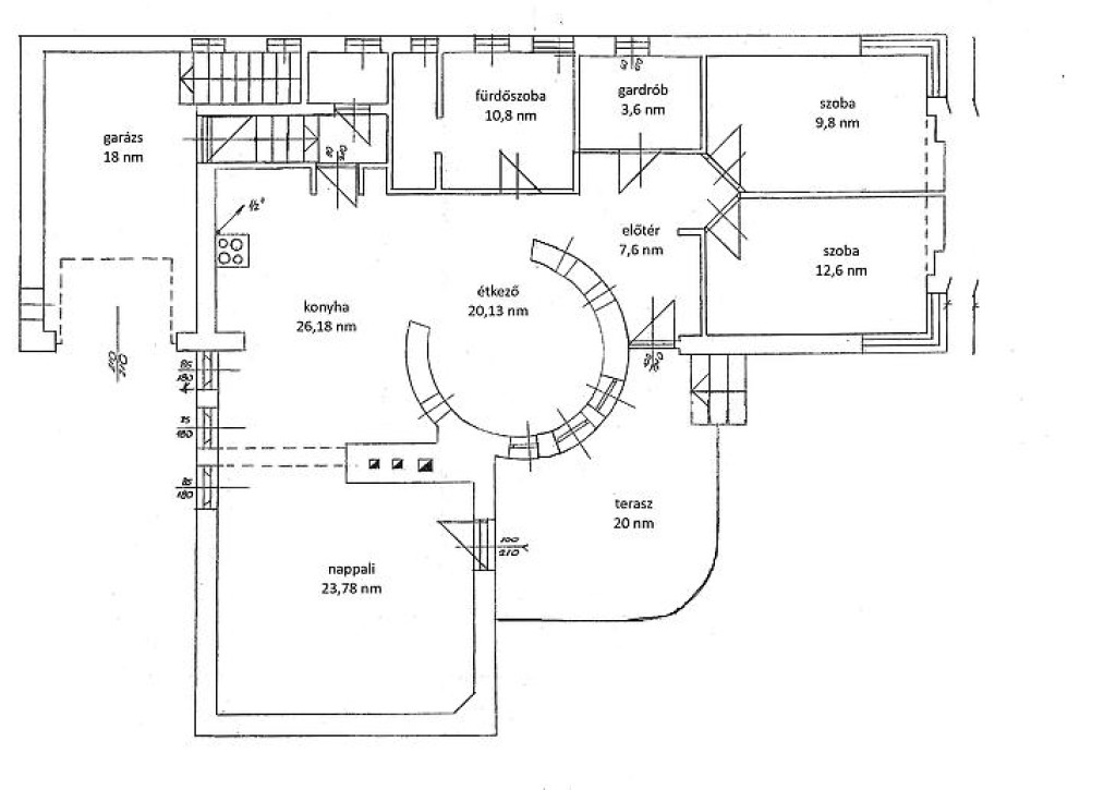
139 m2
Area size
-
765 m2
Plot size
-
3
Szobaszám
- Area size 139 m2
- Plot size 765 m2
- Szobaszám 3
- Web www.ingatlantajolo.hu/9286443
- Négyzetméter ár 1 510 791 Ft/m2
- Offer For sale / Offer
- Category House, part of a house property
- Type House
- Condition Renovated
- Belső szintek nincs megadva
- Tetőtér beépíthető nem
- CSOK igénybe vehető nem
- Kilátás nincs megadva
- Tájolás nincs megadva
- Ingatlan komfort nincs megadva
- Parkolási lehetőség nincs megadva
- Építőanyag nincs megadva
- Bútorozott nincs megadva
- Akadálymentesített nincs megadva
- Erkély, terasz nincs megadva
- Klíma nem
- Szigetelt nem
- Havi rezsiköltség nincs megadva
- Lakásbiztosítás nincs megadva
- Kábelszolgáltató nincs megadva
- Elektromos autó töltés nincs megadva
Energetikai besorolás: