Szeged
-
Kínálati ár: 79 800 000 Ft
Kalkulált ár: 203 053 Є -
57 m2
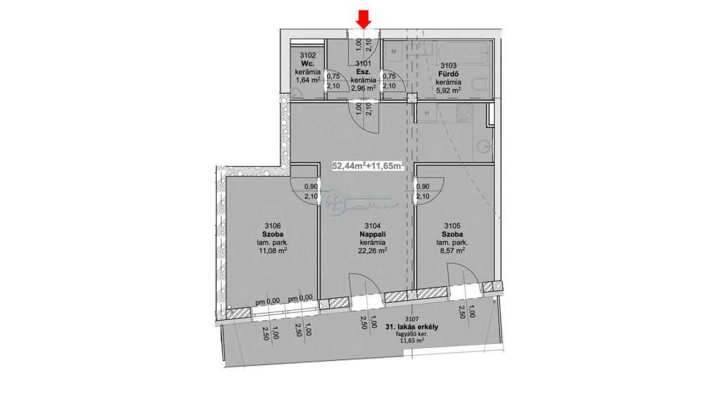
Area size
-
2 827 m2
Plot size
-
3
Szobaszám
- Area size 57 m2
- Plot size 2 827 m2
- Szobaszám 3
- Web www.ingatlantajolo.hu/9274912
- Négyzetméter ár 1 400 000 Ft/m2
- Offer For sale / Offer
- Category Flat
- Type Brick flat
- Floor 3.
- Condition Recently built
- Number of levels 5
- Year of construction 2025
- CSOK igénybe vehető nem
- Kilátás nincs megadva
- Tájolás nincs megadva
- Ingatlan komfort nincs megadva
- Parkolási lehetőség nincs megadva
- Építőanyag nincs megadva
- Bútorozott nincs megadva
- Akadálymentesített nincs megadva
- Erkély, terasz nincs megadva
- Kert kapcsolat nincs megadva
- Klíma nem
- Szigetelt nem
- Havi rezsiköltség nincs megadva
- Lakásbiztosítás nincs megadva
- Kábelszolgáltató nincs megadva
- Elektromos autó töltés nincs megadva
Energetikai besorolás:
Ez a hirdetés megfelelhet a FIX 3%-os programnak. Tudj meg többet a részletekről itt.