Levél
-
Kínálati ár: 50 900 000 Ft
Kalkulált ár: 129 517 Є -
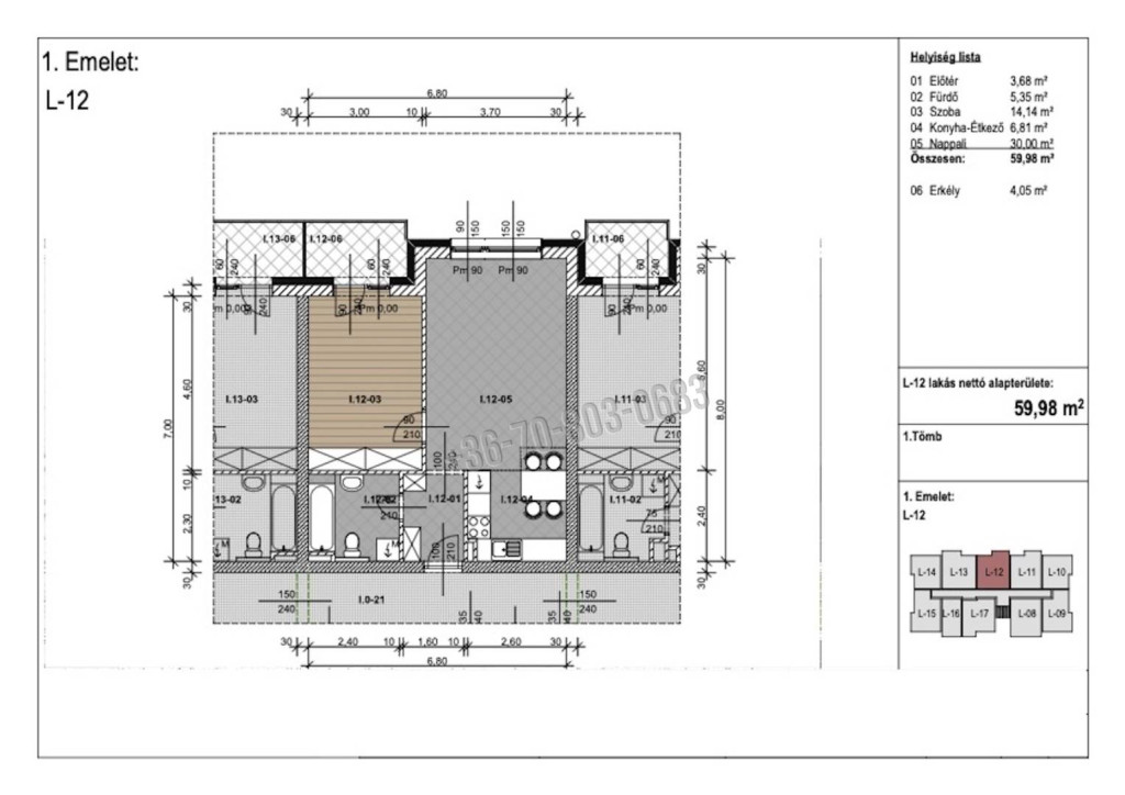
49 m2
Area size
-
2
Szobaszám
- Area size 49 m2
- Plot size -
- Szobaszám 2
- Web www.ingatlantajolo.hu/9271410
- Négyzetméter ár 1 038 776 Ft/m2
- Offer For sale / Offer
- Category Flat
- Type Brick flat
- Floor 1.
- Condition Recently built
- Heating Geothermal
- Number of levels 3
- Year of construction 2026
- CSOK igénybe vehető nem
- Kilátás nincs megadva
- Tájolás nincs megadva
- Ingatlan komfort nincs megadva
- Parkolási lehetőség nincs megadva
- Építőanyag nincs megadva
- Bútorozott nincs megadva
- Akadálymentesített nincs megadva
- Erkély, terasz nincs megadva
- Kert kapcsolat nincs megadva
- Klíma nem
- Szigetelt nem
- Havi rezsiköltség nincs megadva
- Lakásbiztosítás nincs megadva
- Kábelszolgáltató nincs megadva
- Elektromos autó töltés nincs megadva
Energetikai besorolás:
Ez a hirdetés megfelelhet a FIX 3%-os programnak. Tudj meg többet a részletekről itt.