Tépe
-
Kínálati ár: 73 000 000 Ft
Kalkulált ár: 200 549 Є -
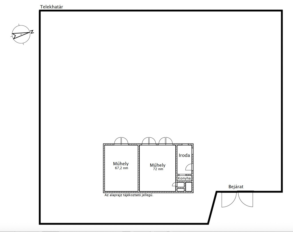
200 m2
Area size
-
3 665 m2
Plot size
- Area size 200 m2
- Plot size 3 665 m2
- Szobaszám -
- Web www.ingatlantajolo.hu/9314429
- Négyzetméter ár 19 918 Ft/m2
- Offer For sale / Offer
- Category c1-9-name
- Type c2-51-name
- Condition Average
- Heating Fireplace
- Number of levels 1
- Kilátás nincs megadva
- Tájolás nincs megadva
- Víz nincs megadva
- Gáz nincs megadva
- Csatorna nincs megadva
- Villany nincs megadva
