Budapest XVIII. kerület, Ferihegy, Ferihegy
-
Kínálati ár: 139 990 000 Ft
Kalkulált ár: 386 713 Є -
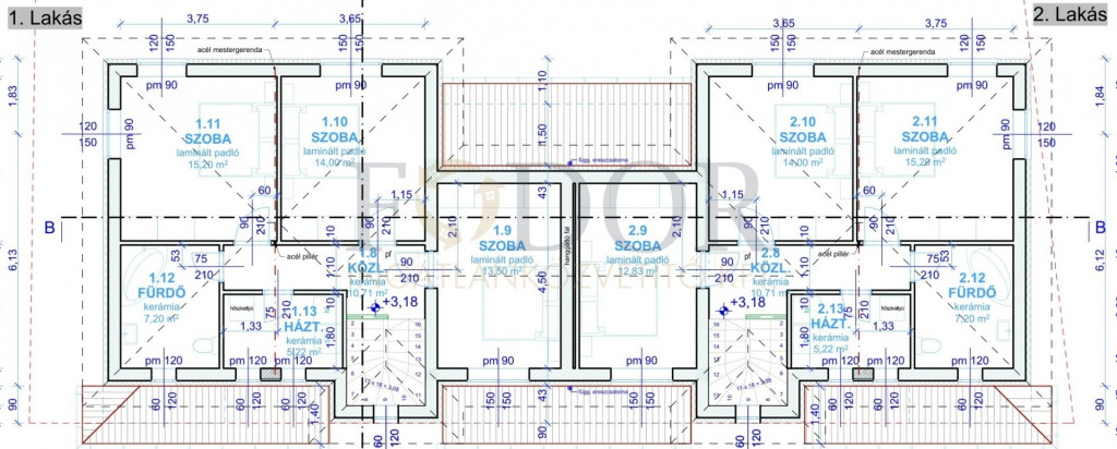
119 m2
Area size
-
270 m2
Plot size
-
4
Szobaszám
- Area size 119 m2
- Plot size 270 m2
- Szobaszám 4
- Web www.ingatlantajolo.hu/9322576
- Négyzetméter ár 1 176 387 Ft/m2
- Offer For sale / Offer
- Category c1-1-name
- Type c2-2-name
- Condition Recently built
- Heating Other
- Number of levels 2
- Year of construction 2026
- Belső szintek 2
- Tetőtér beépíthető nem
- CSOK igénybe vehető nem
- Kilátás Kertre néző
- Tájolás nincs megadva
- Ingatlan komfort Összkomfortos
- Parkolási lehetőség Önálló garázs
- Építőanyag Tégla
- Bútorozott nincs megadva
- Akadálymentesített nincs megadva
- Erkély, terasz Terasz
- Klíma igen
- Szigetelt nem
- Havi rezsiköltség nincs megadva
- Lakásbiztosítás nincs megadva
- Kábelszolgáltató nincs megadva
- Elektromos autó töltés nincs megadva
Energetikai besorolás:
A+++
A++
A+
A
B
C
D
E
F
G
H
I
Ez a hirdetés megfelelhet a FIX 3%-os programnak. Tudj meg többet a részletekről itt.
