Tata
-
Kínálati ár: 69 999 000 Ft
Kalkulált ár: 178 115 Є -
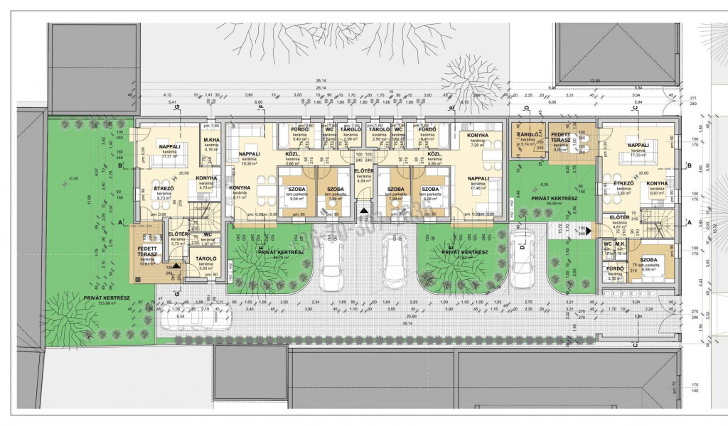
57 m2
Area size
-
47 m2
Plot size
-
3
Szobaszám
- Area size 57 m2
- Plot size 47 m2
- Szobaszám 3
- Web www.ingatlantajolo.hu/9252818
- Négyzetméter ár 1 228 053 Ft/m2
- Offer For sale / Offer
- Category c1-4-name
- Type c2-19-name
- Floor Ground floor
- Condition Recently built
- Heating Other
- Year of construction 2013
- CSOK igénybe vehető nem
- Kilátás nincs megadva
- Tájolás nincs megadva
- Ingatlan komfort nincs megadva
- Parkolási lehetőség nincs megadva
- Építőanyag nincs megadva
- Bútorozott nincs megadva
- Akadálymentesített nincs megadva
- Erkély, terasz nincs megadva
- Kert kapcsolat nincs megadva
- Klíma nem
- Szigetelt nem
- Havi rezsiköltség nincs megadva
- Lakásbiztosítás nincs megadva
- Kábelszolgáltató nincs megadva
- Elektromos autó töltés nincs megadva
Energetikai besorolás:
A+++
A++
A+
A
B
C
D
E
F
G
H
I
Ez a hirdetés megfelelhet a FIX 3%-os programnak. Tudj meg többet a részletekről itt.
