Fonyód
-
Kínálati ár: 145 500 000 Ft
Kalkulált ár: 399 725 Є -
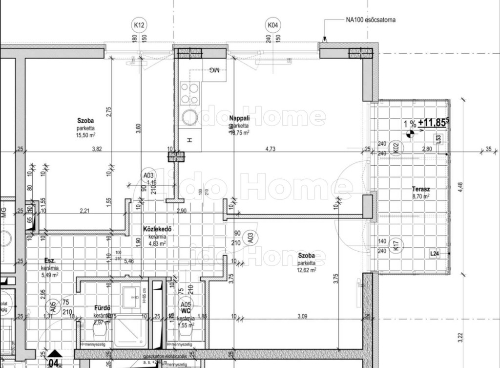
68 m2
Area size
-
3
Szobaszám
- Area size 68 m2
- Plot size -
- Szobaszám 3
- Web www.ingatlantajolo.hu/9324830
- Négyzetméter ár 2 139 706 Ft/m2
- Offer For sale / Offer
- Category c1-4-name
- Type c2-19-name
- Condition Recently built
- Heating House-central heating with individual measuring
- Year of construction 2020
- CSOK igénybe vehető nem
- Kilátás nincs megadva
- Tájolás nincs megadva
- Ingatlan komfort nincs megadva
- Parkolási lehetőség nincs megadva
- Építőanyag nincs megadva
- Bútorozott nincs megadva
- Akadálymentesített nincs megadva
- Erkély, terasz nincs megadva
- Kert kapcsolat nincs megadva
- Klíma nem
- Szigetelt nem
- Havi rezsiköltség nincs megadva
- Lakásbiztosítás nincs megadva
- Kábelszolgáltató nincs megadva
- Elektromos autó töltés nincs megadva
Energetikai besorolás:
A+++
A++
A+
A
B
C
D
E
F
G
H
I
