Vác, Alsóváros
-
Kínálati ár: 99 900 000 Ft
Kalkulált ár: 278 273 Є -
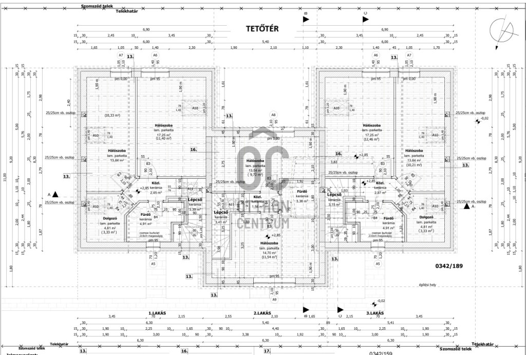
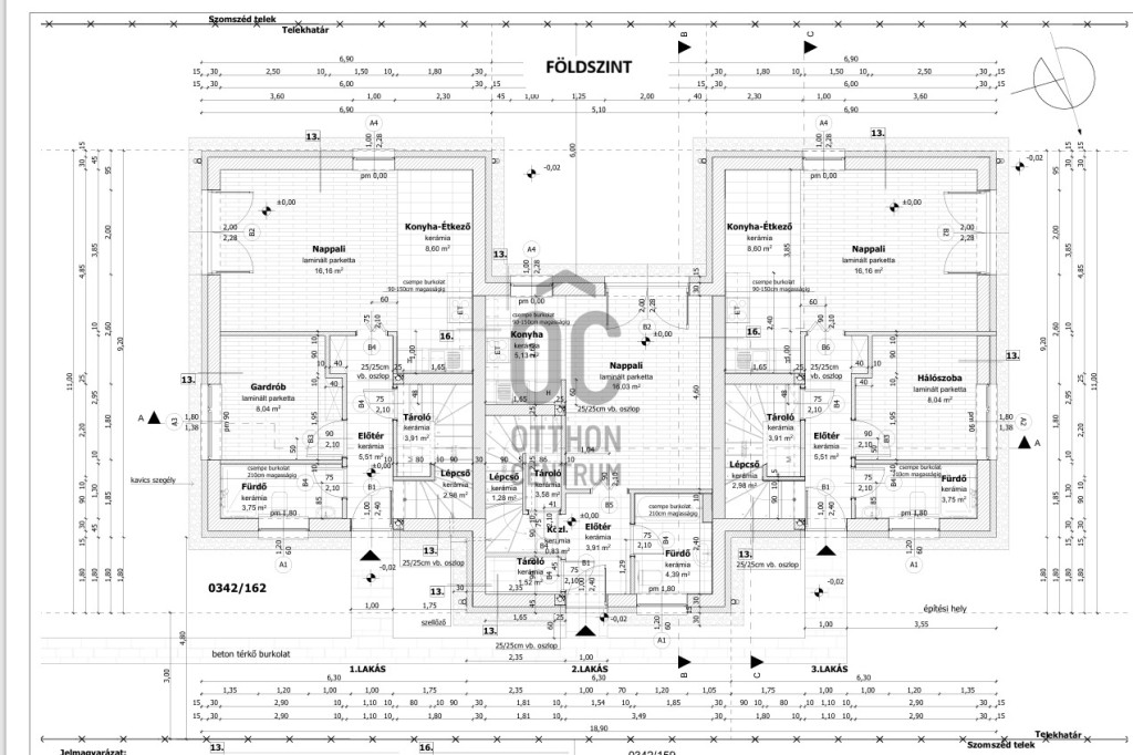
96 m2
Area size
-
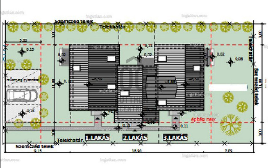
600 m2
Plot size
-
4
Szobaszám
- Area size 96 m2
- Plot size 600 m2
- Szobaszám 4
- Web www.ingatlantajolo.hu/9264682
- Négyzetméter ár 1 040 625 Ft/m2
- Offer Zum Verkauf / Angebot
- Category c1-1-name
- Type c2-82-name
- Year of construction 2026
- Belső szintek nincs megadva
- Tetőtér beépíthető nem
- CSOK igénybe vehető nem
- Kilátás nincs megadva
- Tájolás nincs megadva
- Ingatlan komfort nincs megadva
- Parkolási lehetőség nincs megadva
- Építőanyag nincs megadva
- Bútorozott nincs megadva
- Akadálymentesített nincs megadva
- Erkély, terasz nincs megadva
- Klíma nem
- Szigetelt nem
- Havi rezsiköltség nincs megadva
- Lakásbiztosítás nincs megadva
- Kábelszolgáltató nincs megadva
- Elektromos autó töltés nincs megadva
Energetikai besorolás:
A+++
A++
A+
A
B
C
D
E
F
G
H
I
Ez a hirdetés megfelelhet a FIX 3%-os programnak. Tudj meg többet a részletekről itt.
