Érd
-
Kínálati ár: 99 500 000 Ft
Kalkulált ár: 273 352 Є -
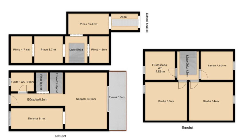
135 m2
Area size
-
193 m2
Plot size
-
4 + 1 half
Szobaszám
- Area size 135 m2
- Plot size 193 m2
- Szobaszám 4 + 1 half
- Web www.ingatlantajolo.hu/9315995
- Négyzetméter ár 737 037 Ft/m2
- Offer Zum Verkauf / Angebot
- Category c1-1-name
- Type c2-1-name
- Condition Renoviert
- Year of construction 2000
- Belső szintek nincs megadva
- Tetőtér beépíthető nem
- CSOK igénybe vehető nem
- Kilátás nincs megadva
- Tájolás nincs megadva
- Ingatlan komfort nincs megadva
- Parkolási lehetőség nincs megadva
- Építőanyag nincs megadva
- Bútorozott nincs megadva
- Akadálymentesített nincs megadva
- Erkély, terasz nincs megadva
- Klíma nem
- Szigetelt nem
- Havi rezsiköltség nincs megadva
- Lakásbiztosítás nincs megadva
- Kábelszolgáltató nincs megadva
- Elektromos autó töltés nincs megadva
Energetikai besorolás:
A+++
A++
A+
A
B
C
D
E
F
G
H
I
Ez a hirdetés megfelelhet a FIX 3%-os programnak. Tudj meg többet a részletekről itt.
